Strona 3 - Spis treści
Spis treści 3 Wskazówki bezpieczeństwa i ostrzeżenia ...................................................... 5 Ochrona środowiska naturalnego ................................................................... 16 Przegląd ..................................................................................
Strona 4 - Programowanie
Spis treści 4 Zabezpieczenie przed przegrzaniem ................................................................... 37 Programowanie ................................................................................................. 38 Czyszczenie i konserwacja ...........................................
Strona 5 - Wskazówki bezpieczeństwa i ostrzeżenia
Wskazówki bezpieczeństwa i ostrzeżenia 5 Ten wok spełnia wymagania obowiązujących przepisów bezpie-czeństwa. Nieprawidłowe użytkowanie może jednak doprowadzićdo wyrządzenia szkód osobowych i rzeczowych. Przed uruchomieniem urządzenia należy uważnie przeczytać in-strukcję użytkowania i montażu. Zawie...
Strona 6 - Użytkowanie zgodne z przeznaczeniem; Ten wok jest przeznaczony do stosowania w gospodarstwie do-
Wskazówki bezpieczeństwa i ostrzeżenia 6 Użytkowanie zgodne z przeznaczeniem Ten wok jest przeznaczony do stosowania w gospodarstwie do- mowym i w otoczeniu domowym. Ten wok nie jest przeznaczony do użytkowania na zewnątrz po- mieszczeń. Stosować wok wyłącznie w warunkach domowych do przyrządz...
Strona 7 - Dzieci w gospodarstwie domowym
Wskazówki bezpieczeństwa i ostrzeżenia 7 Dzieci w gospodarstwie domowym Dzieci poniżej 8 roku życia należy trzymać z daleka od woka, chy- ba że są pod stałym nadzorem. Dzieciom powyżej 8 roku życia wolno używać urządzenia bez nad- zoru tylko wtedy, gdy jego obsługa została im objaśniona w takims...
Strona 8 - Bezpieczeństwo techniczne; Uszkodzenia woka mogą być przyczyną zagrożeń. Skontrolować
Wskazówki bezpieczeństwa i ostrzeżenia 8 Bezpieczeństwo techniczne Nieprawidłowo przeprowadzone prace instalacyjne i konserwacyj- ne lub naprawy mogą się stać przyczyną poważnych zagrożeń dlaużytkownika. Prace instalacyjne i konserwacyjne oraz naprawy mogąbyć przeprowadzane wyłącznie przez fachowc...
Strona 10 - Przy pracach instalacyjnych i konserwacyjnych oraz naprawach
Wskazówki bezpieczeństwa i ostrzeżenia 10 Przy pracach instalacyjnych i konserwacyjnych oraz naprawach wok musi zostać odłączony od sieci elektrycznej. Należy to zapew-nić przez: - Wyłączenie bezpieczników instalacji elektrycznej. - Wykręcenie całkowicie z oprawek bezpieczników topikowych in- stal...
Strona 11 - Prawidłowe użytkowanie
Wskazówki bezpieczeństwa i ostrzeżenia 11 Prawidłowe użytkowanie Wok nagrzewa się podczas pracy i pozostaje gorący jeszcze przez jakiś czas po wyłączeniu. Dopiero po zgaśnięciu wskazań ciepłaresztkowego nie ma więcej niebezpieczeństwa odniesienia oparzeń. Oleje i tłuszcze mogą się zapalić w wyni...
Strona 12 - Przy włączonym urządzeniu, przypadkowym włączeniu lub zalega-
Wskazówki bezpieczeństwa i ostrzeżenia 12 Przy włączonym urządzeniu, przypadkowym włączeniu lub zalega- niu ciepła resztkowego występuje ryzyko, że przedmioty metaloweodłożone na woku ulegną rozgrzaniu. Inne materiały mogą się stopićlub zapalić. Wilgotne pokrywki garnków mogą się zassać. Nie wyko-...
Strona 14 - Wok jest wyposażony w wentylator chłodzący. Jeśli pod zabudo-
Wskazówki bezpieczeństwa i ostrzeżenia 14 Wok jest wyposażony w wentylator chłodzący. Jeśli pod zabudo- wanym urządzeniem znajduje się szuflada, należy zachować wystar-czający odstęp pomiędzy zawartością szuflady i spodem urządzenia,żeby zagwarantowany był wystarczający dopływ powierza chłodzą-ceg...
Strona 15 - Czyszczenie i konserwacja; Para z myjki parowej może się dostać na elementy przewodzące
Wskazówki bezpieczeństwa i ostrzeżenia 15 Czyszczenie i konserwacja Para z myjki parowej może się dostać na elementy przewodzące prąd elektryczny i spowodować zwarcie. Nigdy nie stosować myjki parowej do czyszczenia urządzenia. Jeśli wok jest zabudowany nad piekarnikiem z pirolizą, nie należy go...
Strona 16 - Ochrona środowiska naturalnego; Utylizacja starego urządzenia
Ochrona środowiska naturalnego 16 Utylizacja opakowania trans-portowego Opakowanie chroni urządzenie przeduszkodzeniami podczas transportu. Ma-teriały, z których wykonano opakowaniezostały specjalnie dobrane pod kątemochrony środowiska i techniki utylizacjii dlatego nadają się do ponownego wy-korzys...
Strona 18 - Elementy obsługi i wskazań; Przyciski dotykowe
Przegląd 18 Elementy obsługi i wskazań Przyciski dotykowe a Włączanie/wyłączanie woka b Stop&GoDo zatrzymywania/uruchamiania bieżącego procesu gotowania c Funkcja wycieraniaDo blokowania przycisków dotykowych d Utrzymywanie ciepłaDo aktywacji/dezaktywacji funkcji utrzymywania ciepła e Skala nume...
Strona 19 - Wskazania/Lampki kontrolne; Dane stref grzejnych
Przegląd 19 Wskazania/Lampki kontrolne h Przyporządkowanie stref grzejnych do funkcji automatycznego wyłączaniaFunkcja automatycznego wyłączania dla woka jest uaktywniona i Lampka kontrolna Wskazuje poziom ciepła resztkowego j Funkcja BoosterFunkcja Booster jest uaktywniona k Wskazania timera :...
Strona 21 - Sposób działania; Niebezpieczeństwo oparzeń; Hałasy
Sposób działania 21 Pod wokiem indukcyjnym znajduje sięcewka indukcyjna. Ta cewka wytwarzapole magnetyczne, które oddziałujebezpośrednio na dno naczynia i je roz-grzewa. Niecka woka nagrzewa się tyl-ko pośrednio poprzez ciepło oddawaneprzez patelnię wok. Indukcja funkcjonuje tylko wtedy, gdyznajduje...
Strona 22 - Naczynia do gotowania; Zagrożenie pożarowe przez nie-
Naczynia do gotowania 22 Zagrożenie pożarowe przez nie- odpowiednie patelnie wok.Przy stosowaniu innych patelni wokistnieje ryzyko ekstremalnego prze-grzania tłuszczu lub potrawy, co mo-że doprowadzić do zapalenia.Stosować wyłącznie patelnię wok dostarczoną wraz z urządzeniem. Dostarczona patelnia...
Strona 23 - Pierwsze uruchomienie
Pierwsze uruchomienie 23 Tabliczkę znamionową, znajdującą sięw dokumentacji urządzenia, należynakleić w przewidzianym do tegomiejscu w rozdziale „Serwis“. Usunąć ewentualną folię ochronnąi naklejki. Pierwsze czyszczenie elemen-tu SmartLine Przed pierwszym użyciem należyprzetrzeć wok wilgotną ś...
Strona 24 - Zakresy ustawień
Zakresy ustawień 24 Płyta grzejna ma fabrycznie zaprogramowane 9 poziomów mocy. Gdy życzą sobiePaństwo dokładniejszych ustawień, można rozszerzyć zakres ustawień do 17 po-ziomów mocy (patrz rozdział „Programowanie“). Zakres ustawień fabryczny (9 poziomów) rozszerzony (17 pozio- mów) Utrzymywanie w c...
Strona 25 - Obsługa; Zasady obsługi; ze
Obsługa 25 Zasady obsługi Państwa element SmartLine jest wypo-sażony w elektroniczne przyciski doty-kowe, które reagują na kontakt z pal-cem. Przycisk dotykowy wł./wył. ze względów bezpieczeństwa przy włącza-niu musi być naciskany nieco dłużej niżpozostałe przyciski.Każda reakcja przycisków zosta...
Strona 26 - Zagrożenie pożarowe przez prze-; Włączanie woka; Nacisnąć przycisk dotykowy; Ustawianie poziomu mocy; Umieścić patelnię na woku.; Wyłączanie; Niebezpieczeństwo odniesienia
Obsługa 26 Zagrożenie pożarowe przez prze- grzaną potrawę.Nienadzorowana potrawa może sięprzegrzać i zapalić.Nie zostawiać urządzenia w czasiepracy bez nadzoru. Proszę pamiętać, że w przypadku in-dukcji czas nagrzewania jest bardzokrótki. Włączanie woka Nacisnąć przycisk dotykowy . Zapalają si...
Strona 27 - Automatyka zagotowywania; lub
Obsługa 27 Automatyka zagotowywania Przy uaktywnionej automatyce zagoto-wywania strefa grzejna rozgrzewa sięautomatycznie przy najwyższym pozio-mie mocy, a następnie przełącza się zpowrotem na ustawiony wcześniej do-celowy poziom mocy. Czas zagotowy-wania zależy od ustawionego poziomukontynuacji got...
Strona 28 - Funkcja Booster; Dezaktywacja funkcji TwinBooster
Obsługa 28 Funkcja Booster Wok jest wyposażony w funkcję Twin-Booster. Booster wzmacnia moc przez maksy-malnie 15 minut. Jeśli funkcja Booster zostanie uaktyw-niona, gdy: - nie ustawiono żadnego poziomu mo- cy, po zakończeniu funkcji Boosterlub przy jej wcześniejszej dezaktywa-cji nastąpi automatycz...
Strona 29 - Utrzymywanie ciepła; - Potrawy należy utrzymywać w cieple
Obsługa 29 Utrzymywanie ciepła Funkcja utrzymywania ciepła służy doutrzymywania w cieple gorących po-traw bezpośrednio po przyrządzeniu,a nie do ponownego podgrzewania jużostygniętych potraw. Maksymalny czas utrzymywania ciepławynosi 2 godziny. - Potrawy należy utrzymywać w cieple wyłącznie w naczyn...
Strona 30 - Minutnik; Ustawianie czasu minutnika
Zegar sterujący (Timer) 30 Element SmartLine musi być włączo-ny, gdy zamierza się korzystać z time-ra. Timer może zostać zastosowany dla2 funkcji: - do ustawiania czasu minutnika - do automatycznego wyłączania strefy grzejnej/grzałki/strefy tepan. Można korzystać z tych funkcji jedno-cześnie. Istnie...
Strona 33 - Funkcje dodatkowe; Aktywacja / Dezaktywacja; Recall
Funkcje dodatkowe 33 Stop&Go Przy aktywacji funkcji Stop&Go usta-wiony poziom mocy zostaje zredukowa-ny na 1.Nie można zmienić poziomów mocy aniustawień zegara sterującego, wok możejedynie zostać wyłączony. Minutnik,czas wyłączenia, czas funkcji Booster iczas zagotowywania są odliczane dalej...
Strona 34 - Funkcja wycierania; Aktywacja; Tryb demonstracyjny; Oznaczenie modelu
Funkcje dodatkowe 34 Funkcja wycierania Przyciski dotykowe elementu Smart-Line można zablokować na 20 sekund,żeby np. usunąć zabrudzenia. Przyciskdotykowy nie zostaje zablokowany. Aktywacja Nacisnąć przycisk dotykowy . Na wyświetlaczu zegara sterującegoodliczany jest czas. Dezaktywacja Nacis...
Strona 35 - Zabezpieczenia
Zabezpieczenia 35 Blokada uruchomienia/Bloka-da Przerwa w zasilaniu powoduje dez-aktywację blokady. Państwa element SmartLine został wy-posażony w blokadę uruchomieniai blokadę, żeby nie można było w spo-sób niezamierzony włączyć elementuani zmienić jego ustawień. Blokadę uruchomienia uaktywnia się ...
Strona 36 - Przyciski dotykowe są zakryte
Zabezpieczenia 36 Wyłączenie ze względów bez-pieczeństwa Przyciski dotykowe są zakryte Państwa element SmartLine wyłączy sięautomatycznie, gdy jeden lub kilkaprzycisków dotykowych pozostaje za-kryte dłużej niż ok. 10 sekund, np. przezpalec, wykipiałą potrawę lub odłożoneprzedmioty. Nad przyciskiem d...
Strona 37 - Cewki indukcyjne
Zabezpieczenia 37 Zabezpieczenie przed prze-grzaniem Wszystkie cewki indukcyjne i obwodychłodzące elektronikę są wyposażonew zabezpieczenie przed przegrzaniem.Zanim dojdzie do przegrzania cewek in-dukcyjnych i/lub obwodów chłodzą-cych, funkcja zabezpieczenia przedprzegrzaniem podejmuje jedno z nastę...
Strona 38 - Zmiana programowania
Programowanie 38 Programowanie elementu SmartLinemożna dostosować do swoich osobi-stych preferencji. Można zmodyfikowaćkilka ustawień po kolei. Po wywołaniu programowania pojawiasię symbol oraz na wyświetlaczu zegara sterującego. Po kilku sekundachna wyświetlaczu zegara sterującego mi-ga na zm...
Strona 42 - Uwaga na uszkodzenia przez
Czyszczenie i konserwacja 42 Uwaga na uszkodzenia przez ostre przedmioty.Taśma uszczelniająca pomiędzy ele-mentem SmartLine i blatem robo-czym może zostać uszkodzona.Nie stosować do czyszczenia żad-nych ostrych przedmiotów. Przy czyszczeniu za pomocą płynudo mycia naczyń nie zostaną usunię-te wszy...
Strona 43 - Komunikaty w polach wskazań/na wyświetlaczu; Uaktywniona jest blokada uruchomienia lub blokada.
Co robić, gdy... 43 Większość usterek i błędów, do których dochodzi podczas codziennego użytko-wania, można usunąć samodzielnie. W wielu przypadkach pozwoli to zaoszczędzićczas i koszty, ponieważ nie ma wówczas potrzeby wzywania serwisu. Poniższa tabela powinna być pomocna w ustaleniu przyczyn ewent...
Strona 45 - Nieoczekiwane zachowania; Problem
Co robić, gdy... 45 Nieoczekiwane zachowania Problem Przyczyna i postępowanie Ustawiony poziom mo-cy miga. Patelnia wok nie jest postawiona na urządzeniu. Umieścić patelnię na woku. Przyciski dotykowe re-agują ze zbyt dużą lubzbyt małą wrażliwością. Przestawiła się wrażliwość przycisków dotykowych...
Strona 46 - Problemy ogólne lub usterki techniczne
Co robić, gdy... 46 Problemy ogólne lub usterki techniczne Problem Przyczyna i postępowanie Nie można włączyć ele-mentu SmartLine. Element SmartLine nie ma prądu. Sprawdzić, czy doszło do wyzwolenia zabezpie-czenia instalacji elektrycznej. Wezwać elektrykalub serwis Miele (minimalne zabezpieczenie...
Strona 47 - Wyposażenie dodatkowe; Ściereczka mikrofazowa
Wyposażenie dodatkowe 47 Firma Miele oferuje bogaty asortymentwyposażenia dodatkowego dostosowa-nego do Państwa urządzenia, jak rów-nież środki do czyszczenia i pielęgnacji. Te produkty można łatwo zamówić wsklepie internetowym Miele. Można je również nabyć w serwisieMiele (patrz na końcu tej instru...
Strona 48 - Serwis; Kontakt w przypadku wystąpienia usterki; Okres gwarancji wynosi 2 lata.
Serwis 48 Kontakt w przypadku wystąpienia usterki W razie wystąpienia usterek, których nie można usunąć samodzielnie, proszę po-wiadomić np. sprzedawcę Miele lub serwis Miele. Wizytę technika serwisowego Miele można zamówić online na stroniewww.miele.pl w zakładce Serwis. Dane kontaktowe serwisu Mie...
Strona 49 - Instalacja; Wskazówki bezpieczeństwa do zabudowy; Uszkodzenia przez nieprawidłowy montaż.; Okleiny blatu roboczego muszą być przyklejone klejem odpornym
Instalacja *INSTALLATION* 49 Wskazówki bezpieczeństwa do zabudowy Uszkodzenia przez nieprawidłowy montaż. Element SmartLine może zostać uszkodzony przez nieprawidłowy montaż.Montaż elementu SmartLine powinien być przeprowadzany wyłącznie przez wy-kwalifikowanego specjalistę. Niebezpieczeństwo po...
Strona 50 - Odstępy bezpieczeństwa
Instalacja *INSTALLATION* 50 Odstępy bezpieczeństwa Odstęp bezpieczeństwa nad elemen-tem SmartLine Pomiędzy elementem SmartLine iumieszczonym nad nim wyciągiem ku-chennym należy zachować odstęp bez-pieczeństwa określony przez producen-ta wyciągu. Gdy nad elementem SmartLine zainsta-lowane są łatwo z...
Strona 51 - z tyłu
Instalacja *INSTALLATION* 51 Odstęp bezpieczeństwa z tyłu/po bo-kach Z założenia element SmartLine powi-nien zostać zamontowany z dużą ilościąmiejsca po prawej i lewej stronie. Z tyłu elementu SmartLine musi być za-chowany podany poniżej odstęp mini-malny do wysokiej szafki stojącej lub ściany po...
Strona 52 - Dno pośrednie
Instalacja *INSTALLATION* 52 Odstęp minimalny pod elementemSmartLine Aby zagwarantować wentylację elemen-tu SmartLine, pod elementem wymaga-ny jest odstęp minimalny do piekarnika,dna pośredniego lub szuflady. Odstęp minimalny od dolnej krawędzielementu SmartLine do - górnej krawędzi piekarnika: 15 m...
Strona 53 - Odstęp bezpieczeństwa do okładziny niszy
Instalacja *INSTALLATION* 53 Odstęp bezpieczeństwa do okładziny niszy Jeśli nisza jest okładzinowana, należy zachować odstęp minimalny pomiędzy wy-cięciem w blacie roboczym i okładziną, ponieważ wysokie temperatury mogą do-prowadzić do zmian materiału okładziny lub nawet jego zniszczenia. W przypadk...
Strona 54 - Blat roboczy z płytek ceramicznych
Instalacja *INSTALLATION* 54 Wskazówki dotyczące zabudo-wy przylegającej Uszczelnienie pomiędzy elementemSmartLine i blatem roboczym Element SmartLine i blat roboczymogą zostać ew. uszkodzone w raziekonieczności demontażu elementu,jeśli zostanie on uszczelniony masąuszczelniającą.Nie stosować żadnyc...
Strona 55 - Kombinacja z wyciągiem nablatowym
Instalacja *INSTALLATION* 55 Zabudowa kilkuelementów SmartLine Szczeliny pomiędzy poszczególnymielementami SmartLine należy wypełnićmasą silikonową odporną na wysokietemperatury (min. 160 °C). Przy zabudo-wie zlicowanej należy dodatkowo wy-pełnić szczelinę pomiędzy elementem/elementami SmartLine i b...
Strona 57 - Zabudowa z wyciągiem nablatowym
Instalacja *INSTALLATION* 57 Zabudowa z wyciągiem nablatowym Przykładowe kombinacje Ilość x szerokość [mm] Wymiar B [mm] Elementy grzejne Wyciąg nabla- towy 1 x 378 1 x 120 481 2 x 378 1 x 120 862 1 x 3781 x 620 2 x 120 1226 3 x 378 2 x 120 1365 2 x 3781 x 620 2 x 120 1607 4 x 378 2 x 120 1746 1 x 6...
Strona 58 - Zabudowa bez wyciągu nablatowego
Instalacja *INSTALLATION* 58 Zabudowa bez wyciągu nablatowego Przykładowe kombinacje Ilość x szerokość [mm] Wymiar B [mm] Elementy grzejne 1 x 378 359 2 x 378 740 1 x 3781 x 620 982 3 x 378 1121 2 x 3781 x 620 1363 4 x 378 1502 2 x 3781 x 800 1554 2 x 3781 x 936 1680
Strona 59 - Listwy pośrednie – zabudowa przylegająca; Dostarczone klamry są wymagane wyłącznie do montażu CSDA 700x FL.
Instalacja *INSTALLATION* 59 Listwy pośrednie – zabudowa przylegająca W przypadku montażu kilku urządzeń należy umieścić pomiędzy nimi listwy po-średnie. Dostarczone klamry są wymagane wyłącznie do montażu CSDA 700x FL. Zabudowa 3 elementów i 2 listew pośrednich
Strona 61 - Zabudowa przylegająca; W przypadku
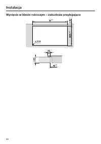
Instalacja *INSTALLATION* 61 Zabudowa przylegająca Przygotowanie blatu roboczego Wykonać wycięcie w blacie robo-czym. Zachować wymagane odstępybezpieczeństwa (patrz rozdział „Insta-lacja“, punkt „Odstępy bezpieczeń-stwa“). W przypadku blatów roboczych z drewna należy zabezpieczyć brzegi wycięcia...
Strona 62 - Zabudowa elementu SmartLine
Instalacja *INSTALLATION* 62 Zabudowa elementu SmartLine Nakleić dostarczoną wraz z urządze-niem taśmę uszczelniającą pod kra-wędzią elementu SmartLine. Nie na-pinać taśmy uszczelniającej przy na-klejaniu. Przeprowadzić przewód zasilającyprzez wycięcie w blacie roboczym dodołu. Włożyć element ...
Strona 63 - Blaty robocze z kamienia naturalnego
Instalacja *INSTALLATION* 63 Wskazówki dotyczące zabudo-wy zlicowanej Zabudowa zlicowana jest możliwa tyl-ko w blatach roboczych z kamienianaturalnego (granitu, marmuru), pełne-go drewna i wykładanych płytkami ce-ramicznymi. W przypadku blatów ro-boczych z innych materiałów należysię dowiedzieć u ic...
Strona 65 - Wycięcie w blacie roboczym – zabudowa zlicowana; Blat roboczy z kamienia naturalnego
Instalacja *INSTALLATION* 65 Wycięcie w blacie roboczym – zabudowa zlicowana B 0 50 A 524 50 0 + 1 + 1 ß R 4 B A 0 2 12 0 1 0 5,5 + 0,5 * / 7 + 0,5 0 2 12 0 1 0 5,5 + 0,5 * / 7 + 0,5 + 1 + 1 + 1 + 1 B A + 1 + 1 Blat roboczy z kamienia naturalnego Blat roboczy z drewna * 7 + 0,5 mm w przypadku CS 76...
Strona 68 - Listwy pośrednie – zabudowa zlicowana
Instalacja *INSTALLATION* 68 Listwy pośrednie – zabudowa zlicowana W przypadku montażu kilku urządzeń należy umieścić pomiędzy nimi listwy po-średnie. Dostarczone klamry są wymagane wyłącznie do montażu CSDA 700x FL. Zabudowa 3 elementów i 2 listew pośrednich
Strona 69 - Wymiary montażowe – zabudowa zlicowana
Instalacja *INSTALLATION* 69 Wymiary montażowe – zabudowa zlicowana Wszystkie wymiary podane są w mm. a Przód b Przewód przyłączeniowy L = 2000 mm c Frezowanie stopniowe (rysunki szczegółowe patrz rozdział „Instalacja“, punkt„Wycięcie w blacie roboczym – zabudowa zlicowana“) d Listwa drewniana 12 mm...
Strona 70 - Zabudowa zlicowana
Instalacja *INSTALLATION* 70 Zabudowa zlicowana Przygotowanie blatu roboczego Wykonać wycięcie w blacie robo-czym. Zachować wymagane odstępybezpieczeństwa (patrz rozdział „Insta-lacja“, punkt „Odstępy bezpieczeń-stwa“). W przypadku blatów roboczych z drewna należy zabezpieczyć brzegi wycięcia sp...
Strona 72 - Podłączenie elektryczne; Uszkodzenia przez nieprawidło-
Instalacja *INSTALLATION* 72 Podłączenie elektryczne Uszkodzenia przez nieprawidło- we podłączenie.Nieprawidłowo przeprowadzone pra-ce instalacyjne i konserwacyjne lubnaprawy mogą się stać przyczynąpoważnych zagrożeń dla użytkowni-ka.Firma Miele nie może zostać pocią-gnięta do odpowiedzialności za...
Strona 73 - Odłączanie od sieci
Instalacja *INSTALLATION* 73 Odłączanie od sieci Niebezpieczeństwo porażenia prądem.Przywrócenie zasilania podczas pracserwisowych i/lub konserwacyjnychmoże doprowadzić do porażenia prą-dem.Po rozłączeniu należy zabezpieczyćsieć przed ponownym włączeniem. Jeśli obwód elektryczny urządzenia mazosta...