Strona 3 - Spis treści
Spis treści 3 Wskazówki bezpieczeństwa i ostrzeżenia ...................................................... 5 Ochrona środowiska naturalnego ................................................................... 15 Przegląd ..................................................................................
Strona 4 - Karty produktów
Spis treści 4 Zabudowa przylegająca ...................................................................................... 48Wskazówki dotyczące zabudowy zlicowanej...................................................... 55Wycięcie w blacie roboczym – zabudowa zlicowana...................................
Strona 5 - Wskazówki bezpieczeństwa i ostrzeżenia
Wskazówki bezpieczeństwa i ostrzeżenia 5 Ten wyciąg nablatowy spełnia wymagania obowiązujących przepi-sów bezpieczeństwa. Nieprawidłowe użytkowanie może jednakdoprowadzić do wyrządzenia szkód osobowych i rzeczowych. Przed uruchomieniem wyciągu należy uważnie przeczytać instruk-cję użytkowania i mont...
Strona 6 - Użytkowanie zgodne z przeznaczeniem
Wskazówki bezpieczeństwa i ostrzeżenia 6 Użytkowanie zgodne z przeznaczeniem Ten wyciąg nablatowy jest przeznaczony do stosowania w gospo- darstwie domowym i w otoczeniu domowym. Ten wyciąg nablatowy nie jest przeznaczony do użytkowania na zewnątrz pomieszczeń. Stosować wyciąg nablatowy wyłącz...
Strona 7 - Dzieci w gospodarstwie domowym
Wskazówki bezpieczeństwa i ostrzeżenia 7 Dzieci w gospodarstwie domowym Dzieci poniżej 8 roku życia należy trzymać z daleka od wyciągu nablatowego, chyba że są pod stałym nadzorem. Dzieciom powyżej 8 roku życia wolno używać urządzenia bez nad- zoru tylko wtedy, gdy jego obsługa została im objaśn...
Strona 8 - Bezpieczeństwo techniczne; Wyciąg nablatowy może być montowany i używany wyłącznie w
Wskazówki bezpieczeństwa i ostrzeżenia 8 Bezpieczeństwo techniczne Nieprawidłowo przeprowadzone prace instalacyjne i konserwacyj- ne lub naprawy mogą się stać przyczyną poważnych zagrożeń dlaużytkownika. Prace instalacyjne i konserwacyjne oraz naprawy mogąbyć przeprowadzane wyłącznie przez fachowc...
Strona 10 - Przy pracach instalacyjnych i konserwacyjnych oraz naprawach
Wskazówki bezpieczeństwa i ostrzeżenia 10 Przy pracach instalacyjnych i konserwacyjnych oraz naprawach wyciąg nablatowy musi zostać odłączony od sieci elektrycznej. Urzą-dzenie jest odłączone od sieci elektrycznej tylko wtedy, gdy: - bezpieczniki instalacji domowej są wyłączone, - bezpieczniki top...
Strona 11 - Niebezpieczeństwo zatrucia przez gazy spalinowe!
Wskazówki bezpieczeństwa i ostrzeżenia 11 Jednoczesne działanie z paleniskiem pobierającym powietrze z pomieszcze-nia Niebezpieczeństwo zatrucia przez gazy spalinowe! Przy jednoczesnym użytkowaniu wyciągu nablatowego i paleniskapobierającego powietrze z pomieszczenia należy zachować naj-wyższą ost...
Strona 13 - Prawidłowe użytkowanie
Wskazówki bezpieczeństwa i ostrzeżenia 13 Prawidłowe użytkowanie Otwarte płomienie stwarzają zagrożenie pożarowe. Nigdy nie gotować potraw obok wyciągu nablatowego, korzystając zotwartego ognia. Np. opalanie lub grillowanie za pomocą otwartegoognia jest zabronione. Włączony wyciąg nablatowy wciągn...
Strona 14 - Czyszczenie i konserwacja; Para z myjki parowej może się dostać na elementy przewodzące; Wyposażenie; Stosować wyłącznie oryginalne wyposażenie Miele. Jeśli zostaną
Wskazówki bezpieczeństwa i ostrzeżenia 14 Czyszczenie i konserwacja Para z myjki parowej może się dostać na elementy przewodzące prąd elektryczny i spowodować zwarcie.Nigdy nie stosować myjki parowej do czyszczenia wyciągu nablato-wego. Jeśli czyszczenie nie zostanie przeprowadzone według instru...
Strona 15 - Ochrona środowiska naturalnego; Utylizacja starego urządzenia
Ochrona środowiska naturalnego 15 Utylizacja opakowania trans-portowego Opakowanie chroni urządzenie przeduszkodzeniami podczas transportu. Ma-teriały, z których wykonano opakowaniezostały specjalnie dobrane pod kątemochrony środowiska i techniki utylizacjii dlatego nadają się do ponownego wy-korzys...
Strona 16 - Przegląd; Wyciąg nablatowy; Kratka zasysania
Przegląd 16 Wyciąg nablatowy a Kratka zasysania b Filtr tłuszczu c Pokrywa z panelem sterowania d Obudowa e Wyjmowana wanienka ociekowa f Kanał powietrzny(wyposażenie dostarczone wraz z urządzeniem) g WentylatorW cokole na podłodze h E-Box
Strona 18 - Kanał powietrzny
Przegląd 18 Wyposażenie dostarczonewraz z urządzeniem W razie potrzeby można zamówić za-równo wyposażenie dostarczone, jaki inne elementy wyposażenia (patrz roz-dział „Wyposażenie dodatkowe“). Kanał powietrzny System kanałów płaskich do doprowa-dzenia powietrza od obudowy do wen-tylatora.
Strona 19 - Sposób działania
Sposób działania 19 Tryb otwartego obiegu powie-trza Zassane powietrze jest oczyszczaneprzez filtr tłuszczu i odprowadzane nazewnątrz budynku. Tryb zamkniętego obiegu po-wietrza (z zestawem do przebudowyDUU 1000(-1)) Zassane powietrze jest oczyszczaneprzez filtr tłuszczu. Następnie powietrzejest pro...
Strona 20 - Wskazówki dotyczące oszczędzania energii; - Przy dużej ilości oparów kuchennych
Wskazówki dotyczące oszczędzania energii 20 Ten wyciąg nablatowy pracuje bardzowydajnie i energooszczędnie. Następu-jące działania są pomocne przyoszczędnym użytkowaniu: - Przy gotowaniu proszę się zatrosz- czyć o dobrą wentylację kuchni. Jeśliw obiegu otwartym nie dopływa wy-starczająca ilość powie...
Strona 21 - Pierwsze czyszczenie elementu SmartLine
Pierwsze czyszczenie elementu SmartLine 21 Tabliczkę znamionową, znajdującą sięw dokumentacji urządzenia, należynakleić w przewidzianym do tegomiejscu w rozdziale „Serwis“. Usunąć ewentualną folię ochronnąi naklejki. Przetrzeć powierzchnię szklano-cera-miczną wilgotną ściereczką i wytrzećją do...
Strona 22 - Obsługa; Funkcja Booster
Obsługa 22 Włączanie wyciągu nablatowe-go Nałożyć kratkę zasysania. Nacisnąć przycisk dotykowy . Zapalają się przyciski dotykowe. Jeżeli nie zostanie podjęta dalsza ob-sługa, wyciąg wyłączy się z powrotempo kilku sekundach. Ustawianie/zmiana poziomuwydajności Do lekkich i silnych oparów kuchen...
Strona 24 - Uwaga na uszkodzenia przez
Czyszczenie i konserwacja 24 Czyszczenie powierzchniszklano-ceramicznej Uwaga na uszkodzenia przez ostre przedmioty.Taśma uszczelniająca pomiędzy ele-mentem SmartLine i blatem robo-czym może zostać uszkodzona.Nie stosować do czyszczenia żad-nych ostrych przedmiotów. Przy czyszczeniu za pomocą płyn...
Strona 25 - Filtr tłuszczu/Kratka zasysania; Zagrożenie pożarowe przez za-
Czyszczenie i konserwacja 25 Czyszczenie wanienki ocieko-wej Wyczyścić wanienkę ociekową, gdyrozchlapane lub wykipiałe płyny dosta-ną się do wyciągu nablatowego. Wyjąć filtr tłuszczu i wyczyścić gozgodnie z opisem w rozdziale „Filtrtłuszczu“. Przytrzymać dobrze wanienkę ocie-kową i otworzyć 2 za...
Strona 26 - - 55 °C dla kratki zasysania
Czyszczenie i konserwacja 26 Ręczne czyszczenie filtra tłuszczui kratki zasysania Wyczyścić kratkę zasysania i filtrtłuszczu za pomocą szczoteczki domycia, w ciepłej wodzie z dodatkiempłynu do mycia naczyń. Nie stosowaćskoncentrowanego płynu do mycianaczyń. Czyszczenie filtra tłuszczu i kratki za-...
Strona 27 - Zakładanie filtra tłuszczu; Wnętrze obudowy
Czyszczenie i konserwacja 27 Zakładanie filtra tłuszczu Założyć filtr tłuszczu w taki sposób,żeby prosta strona filtra tłuszczu znaj-dowała się po stronie przyłącza kana-łu powietrza. Przykład: króciec przyłączeniowy kanałupowietrznego po lewej stronie Wnętrze obudowy Przy wyjętym filtrze tłuszc...
Strona 29 - Wyposażenie dodatkowe; FlameGuard
Wyposażenie dodatkowe 29 Firma Miele oferuje bogaty asortymentwyposażenia dodatkowego dostosowa-nego do Państwa urządzenia, jak rów-nież środki do czyszczenia i pielęgnacji. Te produkty można łatwo zamówić wsklepie internetowym Miele. Można je również nabyć w serwisieMiele (patrz na końcu tej instru...
Strona 30 - Serwis; Kontakt w przypadku wystąpienia usterki; Okres gwarancji wynosi 2 lata.
Serwis 30 Kontakt w przypadku wystąpienia usterki W razie wystąpienia usterek, których nie można usunąć samodzielnie, proszę po-wiadomić np. sprzedawcę Miele lub serwis Miele. Wizytę technika serwisowego Miele można zamówić online na stroniewww.miele.pl w zakładce Serwis. Dane kontaktowe serwisu Mie...
Strona 31 - Instalacja; Wskazówki bezpieczeństwa do zabudowy; Uszkodzenia przez nieprawidłowy montaż.
Instalacja *INSTALLATION* 31 Wskazówki bezpieczeństwa do zabudowy Uszkodzenia przez nieprawidłowy montaż. Element SmartLine może zostać uszkodzony przez nieprawidłowy montaż.Montaż elementu SmartLine powinien być przeprowadzany wyłącznie przez wy-kwalifikowanego specjalistę. Uwaga na uszkodzenia...
Strona 33 - Blat roboczy z płytek ceramicznych
Instalacja *INSTALLATION* 33 Wskazówki dotyczące zabudo-wy przylegającej Uszczelnienie pomiędzy elementemSmartLine i blatem roboczym Element SmartLine i blat roboczymogą zostać ew. uszkodzone w raziekonieczności demontażu elementu,jeśli zostanie on uszczelniony masąuszczelniającą.Nie stosować żadnyc...
Strona 34 - Głębokość blatu roboczego
Instalacja *INSTALLATION* 34 Zabudowa kilkuelementów SmartLine Szczeliny pomiędzy poszczególnymielementami SmartLine należy wypełnićmasą silikonową odporną na wysokietemperatury (min. 160 °C). Przy zabudo-wie zlicowanej należy dodatkowo wy-pełnić szczelinę pomiędzy elementem/elementami SmartLine i b...
Strona 36 - Zabudowa z wyciągiem nablatowym
Instalacja *INSTALLATION* 36 Zabudowa z wyciągiem nablatowym Przykładowe kombinacje Ilość x szerokość [mm] Wymiar B [mm] Elementy grzejne Wyciąg nabla- towy 1 x 378 1 x 120 481 2 x 378 1 x 120 862 1 x 3781 x 620 2 x 120 1226 3 x 378 2 x 120 1365 2 x 3781 x 620 2 x 120 1607 4 x 378 2 x 120 1746 1 x 6...
Strona 37 - Zabudowa bez wyciągu nablatowego
Instalacja *INSTALLATION* 37 Zabudowa bez wyciągu nablatowego Przykładowe kombinacje Ilość x szerokość [mm] Wymiar B [mm] Elementy grzejne 1 x 378 359 2 x 378 740 1 x 3781 x 620 982 3 x 378 1121 2 x 3781 x 620 1363 4 x 378 1502 2 x 3781 x 800 1554 2 x 3781 x 936 1680
Strona 38 - Listwy pośrednie – zabudowa przylegająca; Dostarczone klamry są wymagane wyłącznie do montażu CSDA 700x FL.
Instalacja *INSTALLATION* 38 Listwy pośrednie – zabudowa przylegająca W przypadku montażu kilku urządzeń należy umieścić pomiędzy nimi listwy po-średnie. Dostarczone klamry są wymagane wyłącznie do montażu CSDA 700x FL. Zabudowa 3 elementów i 2 listew pośrednich Listwy pośrednie wyciągu nablatowego ...
Strona 39 - Wymiary montażowe – zabudowa przylegająca; Wszystkie wymiary podane są w mm.
Instalacja *INSTALLATION* 39 Wymiary montażowe – zabudowa przylegająca Wszystkie wymiary podane są w mm. a Przód b WentylatorW cokole na podłodze c Kanał powietrzny(wyposażenie dostarczone wraz z urządzeniem) d E-Box
Strona 45 - x Wymiar, o który głębokość blatu roboczego przekracza 600 mm.
Instalacja *INSTALLATION* 45 a Tylna ścianka korpusu musi być zdejmowana do celów serwisowych.Do przeprowadzenia kanału wylotowego pomiędzy ścianką korpusu a przylega-jącą ścianą pomieszczenia lub przylegającym elementem meblowym należy za-chować minimalny odstęp 110 mm. b Element pośredni kanału, d...
Strona 47 - Widok z przodu – przyłącze kanału wylotowego z lewej strony
Instalacja *INSTALLATION* 47 Przy zabudowie kanału wylotowego z lewej strony wyciągu nablatowego, głębo-kość blatu roboczego musi wynosić co najmniej 665 mm. Widok z przodu – przyłącze kanału wylotowego z lewej strony Widok z góry – przyłącze kanału wylotowego z lewej strony
Strona 48 - Zabudowa przylegająca; Blat roboczy
Instalacja *INSTALLATION* 48 Zabudowa przylegająca Jeśli grubość blatu roboczego jestwiększa niż 24 mm, blat roboczy musizostać wycięty od spodu po stroniezabudowy (prawej lub lewej). a Blat roboczy b Maksymalnie 24 mm c 12 mm Mocowanie kątownika sprężynowe-go 1 kątownik sprężynowy (dołączony dolist...
Strona 49 - W przypadku
Instalacja *INSTALLATION* 49 Przygotowanie blatu roboczego Wykonać wycięcie w blacie robo-czym. Zachować wymagane odstępybezpieczeństwa (patrz rozdział „Insta-lacja“, punkt „Odstępy bezpieczeń-stwa“). W przypadku blatów roboczych z drewna należy zabezpieczyć brzegi wycięcia specjalnym lakierem, ...
Strona 50 - Zabudowa wyciągu nablatowego
Instalacja *INSTALLATION* 50 Zabudowa wyciągu nablatowego Wyciąg nablatowy może zostać zabu-dowany do wyboru z króćcem przyłą-czeniowym dla kanału powietrznego poprawej lub po lewej stronie. a Króciec przyłączeniowy kanału po-wietrznego po prawej stronie b Króciec przyłączeniowy kanału po-wietrznego...
Strona 51 - Montaż kanału powietrznego
Instalacja *INSTALLATION* 51 Montaż kanału powietrznego Zamontować kanał powietrzny. Nakleić dostarczoną wraz z urządze-niem taśmę uszczelniającą na króciecwylotowy, gdy przewód wylotowy nietrzyma się dobrze na króćcu wyloto-wym. Zwrócić uwagę na to, żeby kanał po-wietrzny po zabudowie nie był n...
Strona 52 - Montaż silnika wentylatora
Instalacja *INSTALLATION* 52 Kompensator długości – głębokośćblatu większa niż 600 mm Podzielić kanał płaski na 2 części.1 część musi przy tym odpowiadaćróżnicy pomiędzy wymiarem 600 mma szerokością blatu roboczego. Włożyć odcinek kanału w kolano poziome. Połączyć kanał z krótkim kola- n...
Strona 53 - Kabel przyłączeniowy
Instalacja *INSTALLATION* 53 E-Box a Kabel przyłączeniowy b Przyłącze dla zestyku okiennego c Gniazdo przyłączeniowe dla przewo-du z napięciem roboczym wentylato-ra d Gniazdo przyłączeniowe dla przewo-du sterującego wentylatora e Gniazdo przyłączeniowe dla przewo-du sterownika Podłączenie do zestyku...
Strona 54 - Uszczelnianie szczelin
Instalacja *INSTALLATION* 54 Zwolnić zaczep i wyciągnąć wtyczkę. Zwolnić śrubę odciągu i odbloko- wać obudowę po obu stronach . Otworzyć obudowę. Usunąć zaślepkę. Wymienić mostek na przewód przyłączeniowy systemu przełączają-cego. Zamknąć obudowę. Wkręcić z powrotem śrubę odci...
Strona 55 - Blaty robocze z kamienia naturalnego
Instalacja *INSTALLATION* 55 Wskazówki dotyczące zabudo-wy zlicowanej Zabudowa zlicowana jest możliwa tyl-ko w blatach roboczych z kamienianaturalnego (granitu, marmuru), pełne-go drewna i wykładanych płytkami ce-ramicznymi. W przypadku blatów ro-boczych z innych materiałów należysię dowiedzieć u ic...
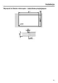
Strona 57 - Wycięcie w blacie roboczym – zabudowa zlicowana; Blat roboczy z kamienia naturalnego
Instalacja *INSTALLATION* 57 Wycięcie w blacie roboczym – zabudowa zlicowana B 0 50 A 524 50 0 + 1 + 1 ß R 4 B A 0 2 12 0 1 0 5,5 + 0,5 * / 7 + 0,5 0 2 12 0 1 0 5,5 + 0,5 * / 7 + 0,5 + 1 + 1 + 1 + 1 B A + 1 + 1 Blat roboczy z kamienia naturalnego Blat roboczy z drewna * 7 + 0,5 mm w przypadku CS 76...
Strona 60 - Listwy pośrednie – zabudowa zlicowana; Listwy pośrednie wyciągu nablatowego – zabudowa zlicowana; Klamry
Instalacja *INSTALLATION* 60 Listwy pośrednie – zabudowa zlicowana W przypadku montażu kilku urządzeń należy umieścić pomiędzy nimi listwy po-średnie. Dostarczone klamry są wymagane wyłącznie do montażu CSDA 700x FL. Zabudowa 3 elementów i 2 listew pośrednich Listwy pośrednie wyciągu nablatowego – z...
Strona 61 - Wymiary montażowe – zabudowa zlicowana
Instalacja *INSTALLATION* 61 Wymiary montażowe – zabudowa zlicowana Wszystkie wymiary podane są w mm. a Przód b WentylatorW cokole na podłodze c Frezowanie stopniowe (rysunki szczegółowe patrz rozdział „Instalacja“, punkt„Wycięcie w blacie roboczym – zabudowa zlicowana“) d Listwa drewniana 12 mm (ni...
Strona 70 - Zabudowa zlicowana
Instalacja *INSTALLATION* 70 Zabudowa zlicowana Jeśli grubość blatu roboczego jestwiększa niż 28 mm, blat roboczy musizostać wycięty od spodu po stroniezabudowy (prawej lub lewej). a Blat roboczy b Maksymalnie 24 mm c 12 mm Mocowanie kątownika sprężynowe-go 1 kątownik sprężynowy (dołączony dolistwy ...
Strona 72 - Docisnąć dobrze listwę pośrednią.
Instalacja *INSTALLATION* 72 Przyłożyć listwę pośrednią wyrówna-ną górą z dolną krawędzią górnegowycięcia stopniowego. Docisnąć dobrze listwę pośrednią. Zabudowa wyciągu nablatowego Wyciąg nablatowy może zostać zabu-dowany do wyboru z króćcem przyłą-czeniowym dla kanału powietrznego poprawej lub...
Strona 77 - Przewód wylotowy
Instalacja *INSTALLATION* 77 Przewód wylotowy Przy jednoczesnym działaniu wy- ciągu wraz z paleniskami pobierają-cymi powietrze z pomieszczenia za-chodzi szczególnie duże niebezpie-czeństwo zatrucia!Proszę bezwzględnie przestrzegaćzaleceń zamieszczonych w rozdziale„Wskazówki bezpieczeństwa iostrze...
Strona 78 - Podłączenie elektryczne; Zagrożenie pożarowe przez prze-
Instalacja *INSTALLATION* 78 Podłączenie elektryczne Element SmartLine jest seryjnie wypo-sażony we wtyczkę do podłączenia dogniazda ochronnego. Ustawić element SmartLine w taki spo-sób, żeby gniazdo było łatwo dostępne.Jeśli gniazdo nie jest swobodnie do-stępne, proszę się upewnić, że po stro-nie i...