Miele KF 2902 Vi - Instrukcje
Instrukcja obsługi Miele KF 2902 Vi












































































































































Podsumowanie
Spis treści 2 Wskazówki bezpieczeństwa i ostrzeżenia ...................................................... 6 Ochrona środowiska naturalnego ................................................................... 17 Instalacja ................................................................................
Spis treści 3 Wyposażenie ...................................................................................................... 63 Wyposażenie dostarczone wraz z urządzeniem.................................................. 63Wyposażenie dodatkowe ......................................................
Spis treści 5 Deklaracja zgodności ....................................................................................... 135 Prawa autorskie i licencje ................................................................................. 136
Wskazówki bezpieczeństwa i ostrzeżenia 6 To urządzenie chłodnicze spełnia wymagania obowiązującychprzepisów bezpieczeństwa. Nieprawidłowe użytkowanie może jed-nak doprowadzić do wyrządzenia szkód osobowych i rzeczowych. Przed uruchomieniem urządzenia chłodniczego należy uważnieprzeczytać dołączoną i...
Wskazówki bezpieczeństwa i ostrzeżenia 7 Użytkowanie zgodne z przeznaczeniem Urządzenie chłodnicze jest przeznaczone do użytkowania w go- spodarstwach domowych i w domowych warunkach eksploatacyj-nych, jak przykładowo:– w sklepach, biurach i podobnych miejscach pracy,– w gospodarstwach rolnych,– p...
Wskazówki bezpieczeństwa i ostrzeżenia 8 Dzieci w gospodarstwie domowym Dzieci poniżej 8 roku życia należy trzymać z daleka od urządzenia, chyba że są pod stałym nadzorem. Dzieciom powyżej ósmego roku życia wolno używać urządzenia bez nadzoru tylko wtedy, gdy jego obsługa została im objaśniona w...
Wskazówki bezpieczeństwa i ostrzeżenia 9 Bezpieczeństwo techniczne Obieg czynnika chłodniczego jest sprawdzony pod kątem szczel- ności. Urządzenie chłodnicze spełnia wymagania obowiązującychnorm bezpieczeństwa, jak również odpowiednich dyrektyw Unii Eu-ropejskiej. To urządzenie chłodnicze zawier...
Wskazówki bezpieczeństwa i ostrzeżenia 12 Uszkodzone podzespoły mogą zostać wymienione wyłącznie na oryginalne części zamienne Miele. Tylko w przypadku takich częścifirma Miele może zagwarantować spełnienie wymagań bezpieczeń-stwa w pełnym zakresie. Ze względu na szczególne wymagania (np. odnośn...
Wskazówki bezpieczeństwa i ostrzeżenia 14 W przypadku zjedzenia zbyt długo przechowywanej żywności ist- nieje ryzyko zatrucia pokarmowego. Czas przechowywania zależy od wielu czynników, jak stopień świe-żości, jakość produktów spożywczych i temperatura przechowywa-nia. Proszę zwrócić uwagę na datę...
Wskazówki bezpieczeństwa i ostrzeżenia 15 Części zamienne i akcesoria Stosować wyłącznie oryginalne wyposażenie Miele. Jeśli zostaną dobudowane lub wbudowane inne części, przepadają roszczeniawynikające z gwarancji, rękojmi i/lub odpowiedzialności za produkt. Firma Miele gwarantuje dostępność fu...
Wskazówki bezpieczeństwa i ostrzeżenia 16 Transport Urządzenie należy zawsze transportować na stojąco w pionie i w opakowaniu transportowym, żeby nie zostały wyrządzone żadneszkody. Niebezpieczeństwo zranień i uszkodzeń. Urządzenie chłodnicze należy transportować z pomocą drugiej osoby, ponieważ...
Ochrona środowiska naturalnego 17 Utylizacja opakowania trans-portowego Opakowanie chroni urządzenie przeduszkodzeniami podczas transportu. Ma-teriały, z których wykonano opakowaniezostały specjalnie dobrane pod kątemochrony środowiska i techniki utylizacjii dlatego nadają się do ponownego wy-korzys...
Instalacja *INSTALLATION* 18 Miejsce ustawienia Zalecane jest suche i dobrze wentylo-wane pomieszczenie. Przy wybieraniu miejsca ustawienia na-leży pamiętać, że zużycie energii urzą-dzenia chłodniczego wzrasta, jeśli jestono ustawione w bezpośrednim są-siedztwie grzejnika, piekarnika lub inne-go źró...
Instalacja *INSTALLATION* 19 Niebezpieczeństwo uszkodzeń przez wysoką wilgotność powietrza.Przy wysokiej wilgotności powietrzana zewnętrznych powierzchniach u-rządzenia chłodniczego może sięosadzać kondensat, doprowadzającdo korozji.Ustawić urządzenie chłodnicze w su-chym i/lub klimatyzowanym po-m...
Instalacja *INSTALLATION* 20 Obciążalność podłogi niszy Dla bezpiecznego ustawienia urządze-nia chłodniczego i zagwarantowaniawszystkich deklarowanych funkcji pod-łoga niszy musi być płaska i wypozio-mowana. Podłoga niszy musi być wykonanaz twardego, sztywnego materiału. Ze względu na wysoki ciężar ...
Instalacja *INSTALLATION* 21 Side-by-side To urządzenie chłodnicze może zostaćustawione z innym urządzeniem chłod-niczym w zabudowie „side-by-side”. W poniższym przeglądzie można zoba-czyć, jakie możliwości zabudowy side-by-side są dostępne z Państwa urzą-dzeniem chłodniczym. W zależności od sytuacj...
Instalacja *INSTALLATION* 22 Przy planowaniu niszy do zabudowyproszę wziąć pod uwagę, że nisza dozabudowy, w której ma zostać zain-stalowane urządzenie chłodnicze zgrzaniem ścianki bocznej, zasadni-czo musi być szersza o 4 mm (patrz rozdział „Instalacja“, punkt „Wymiarydo zabudowy“). Jeśli ścianka p...
Instalacja *INSTALLATION* 23 Zalecenia dotyczące podłącze-nia świeżej wody - Podłączenie do doprowadzenia wody musi być dokonane przy zachowaniuobowiązujących w tym zakresie lokal-nych przepisów.Również wszystkie urządzenia i insta-lacje, służące do doprowadzenia wo-dy do urządzenia, muszą spełniaćw...
Instalacja *INSTALLATION* 24 Wymiary do zabudowy A C B A B C KF 2802 Vi, KF 2812 Vi 2134–2164 mm 762 mm 610 mm + front meblo-wy (19–38 mm) KF 2902 Vi, KF 2912 Vi 2134–2164 mm 915 mm 610 mm + front meblo-wy (19–38 mm)
Instalacja *INSTALLATION* 26 Wymiary przy otwartych drzwiach urządzenia (kąt otwarcia 90°/115°) 10 mm D A B C A B* C* D (w przypadku fron-tów meblowych ogrubości 19 mm) KF 2802 Vi, KF 2812 Vi 829 mm front meblo-wy (19–38 mm) uchwyt drzwi 363 mm KF 2902 Vi, KF 2912 Vi 982 mm front meblo-wy (19–38 mm)...
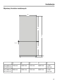
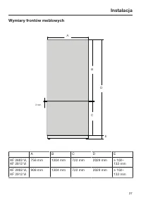
Instalacja *INSTALLATION* 27 Wymiary frontów meblowych 3 mm A B C D E A B C D E KF 2802 Vi, KF 2812 Vi 756 mm 1304 mm 722 mm 2029 mm ≥ 102– 132 mm KF 2902 Vi, KF 2912 Vi 908 mm 1304 mm 722 mm 2029 mm ≥ 102– 132 mm
Instalacja *INSTALLATION* 28 Zabudowa urządzenia Zanim rozpoczniesz... Przeczytaj uważnie instrukcję użytko-wania i montażu przed przystąpie-niem do zabudowy urządzeniachłodniczego.Urządzenie chłodnicze powinno zo-stać zabudowane przez wykwalifiko-wanego instalatora zgodnie z instruk-cją użytkowania...
Instalacja *INSTALLATION* 29 Ciężary frontów meblowych Przed montażem frontów meblowychnależy się upewnić, że przeznaczone dozamontowania fronty meblowe nie prze-kraczają dopuszczalnego ciężaru: Urządzenie maks. cię- żar górne-go frontu me-blowego maks. cię-żar dolne-go frontu me-blowego KF 2802 Vi,...
Instalacja *INSTALLATION* 30 Sprawdzanie niszy do zabudowy Sprawdzić wymiary do zabudowy(patrz rozdział „Instalacja“, punkt„Wymiary do zabudowy“). Sprawdzić pozycję przyłącza elek-trycznego. Długość przewodu zasila-jącego wynosi 3 m. Gniazdo elektryczne powinno sięznajdować poza obszarem tylnejś...
Instalacja *INSTALLATION* 31 Przed zabudową Przed zabudową zdjąć wyposażeniez zewnętrznych ścianek urządzenia. Sprawdzić urządzenie chłodnicze podkątem szkód transportowych. Nie ustawiać uszkodzonego urządze-nia chłodniczego. Proszę sprawdzić, czy wszystkie ele-menty na tylnej ściance urządzen...
Instalacja *INSTALLATION* 32 2 Odkręcić kątownik mocujący . Unieść ostrożnie urządzenie chłodni-cze i z pomocą kilku osób zdjąć je ty-łem z palety. Niebezpieczeństwo uszkodzenia podłogi przez obciążenie.Przesuwanie urządzenia chłodnicze-go może doprowadzić do uszkodze-nia podłogi.Przesuwać u...
Instalacja *INSTALLATION* 33 Zabezpieczenie przeciwprzechyłowezapobiega przewróceniu urządzeniachłodniczego. Dodatkowo za pomocą zabezpieczeniaprzeciwprzechyłowego nisza do zabu-dowy zostanie pewnie zamocowana dosąsiadujących ścian. Dla pojedynczego urządzenia chłod-niczego należy zastosować 2 zab...
Instalacja *INSTALLATION* 34 Ewentualnie umieścić klin drewnianyza zabezpieczeniem przeciwprzechy-łowym . Zaznaczyć otwory do wiercenia natylnej ściance niszy do zabudowy zapomocą kątowników zabezpieczeniaprzeciwprzechyłowego. W dostarczonym opakowaniu znaj-dują się śruby mocujące dla różnychs...
Instalacja *INSTALLATION* 35 Wsuwanie urządzenia chłodniczegodo niszy do zabudowy Zwrócić uwagę na to, żeby przy wsu-waniu urządzenia chłodniczego doniszy do zabudowy nie zostałyuszkodzone przyłącza prądu i świe-żej wody. Jeśli kilka urządzeń chłodniczych mabyć ustawione w zabudowie side-by-side, na...
Instalacja *INSTALLATION* 36 Wskazówka: Aby zabezpieczyć kabel zasilający przed zakleszczeniem, po-środku kabla zasilającego należy zamo-cować sznurek i przy wsuwaniu urzą-dzenia chłodniczego przeciągnąć kabeldo przodu pod urządzeniem. Wsunąć urządzenie chłodniczeostrożnie w niszę do zabudowy. J...
Instalacja *INSTALLATION* 38 Przestawić tylne nóżki ustawcze zapomocą grzechotki (nasadka: sze-ściokąt, 8 mm) lub śrubokręta (TX 20) . Przestawić przednie nóżki ustawczeza pomocą grzechotki (nasadka: sze-ściokąt, 8 mm) lub śrubokręta (TX 20) . Wskazówka: Przy wykręcaniu nóżek ustawczych nale...
Instalacja *INSTALLATION* 39 W celu wyrównania urządzenia chłod-niczego przyłożyć poziomnicę do ele-mentów ustawczych na drzwiach urządzenia. Wykręcić nóżki ustawcze i po obu stronach przynajmniej na tyle, ażnaniesione na cokole zaznaczenieosiągnie podany na elemencie dy-stansowym wymiar...
Instalacja *INSTALLATION* 40 Jeśli nie ma żadnej możliwości zamoco-wania urządzenia chłodniczego u góry,można je zamocować w niszy do zabu-dowy za pomocą bocznych wypustekmocujących: Rozłożyć boczne wypustki mocują-ce . Skręcić boczne wypustki mocujące z sąsiadującymi meblami/zabudo- wą meb...
Instalacja *INSTALLATION* 44 Mocowanie i wyrównywanie frontumeblowego Otworzyć drzwi urządzenia i zawiesićfront meblowy z ramą montażową od góry na gwintowanych trzpieniach . Listwy kątowe wcisnąć po obu stronach w białą ramę z tworzywasztucznego i najpierw luźno je przy-kręcić. Służące do...
Instalacja *INSTALLATION* 45 Wyrównać front meblowy na głębo-kość przez wycięcia w listwach kąto-wych . Wyrównać front meblowy na wyso-kość i na boki poprzez trzpienie gwin-towane . Zamknąć drzwi urządzenia i skontro-lować odstęp do sąsiadujących fron-tów meblowych. Założyć z powrotem po...
Instalacja *INSTALLATION* 46 Pozycję dolnego frontu meblowego na-leży dostosować do pozycji górnegofrontu meblowego: Zmierzyć odstęp Z pomiędzy ramą montażową dolnych drzwi urządzeniai dolną krawędzią znajdującego siępowyżej frontu meblowego. Uwzględnić przy tym odstęp 3 mmdo górnego frontu mebl...
Instalacja *INSTALLATION* 47 Przykręcić dobrze kątownik mocujący do frontu meblowego. Wkręcić śrubę znajdującą się na dolena drzwiach urządzenia. Założyć pokrywkę na kątownik mocujący .
Instalacja *INSTALLATION* 48 Zatrzasnąć pokrywkę na kątowni- ku mocującym, tak żeby „kliknęła“. Mocowanie zaślepek Zanim będzie można włożyć pokryw-kę w szczelinę nad urządzeniem chłodniczym, pokrywka musi zostaćzłożona w następujący sposób: Włożyć w siebie obie części pokryw-ki. Zakładani...
Instalacja *INSTALLATION* 49 Włożyć złożoną pokrywkę w szczelinę nad urządzeniem chłodni-czym. aż się zatrzaśnie. Zsunąć przytym obie części pokrywki na tyle, ileto konieczne. Montaż pokrywki w przypadku kom-binacji side-by-side Włożyć trzpień (dołączony do zesta-wu montażowego Side-by-side) d...
Instalacja *INSTALLATION* 50 Na każdej stronie założyć teraz za-ślepki na klamry . W przypadku kombinacji side-by-sidete zaślepki zakłada się tylko po ze-wnętrznej stronie. Wsunąć zaślepkę od środka na dolnedrzwi urządzenia. Założyć pokrywkę na przełącznik kontaktowy światła.
Instalacja *INSTALLATION* 51 Mocowanie cokołowej kratki wenty-lacyjnej i panelu cokołowego Zatrzasnąć cokołową kratkę wentyla-cyjną na dole na cokole urządze- nia. W razie potrzeby przyciąć panel co-kołowy na wymaganą długość i wy-sokość (pomiędzy dolną krawędziącokołu i podłogą). Zamocować ...
Instalacja *INSTALLATION* 52 Przyłącze świeżej wody Wskazówki dotyczące podłączeniado świeżej wody Niebezpieczeństwo zranień i uszkodzeń przez nieprawidłowe pod-łączenie.Nieprawidłowe podłączenie możebyć przyczyną zranień i/lub szkódrzeczowych.Podłączenie do świeżej wody możezostać przeprowadzone ...
Instalacja *INSTALLATION* 53 Pomiędzy wężem ze stali szlachetneji przyłączem świeżej wody musi sięznajdować zawór odcinający, żeby wrazie potrzeby można było przerwać do-pływ wody. Zwrócić uwagę na to, żeby zawórodcinający był łatwo dostępny rów-nież po zabudowie urządzenia. Wąż ze stali szlachetnej...
Instalacja *INSTALLATION* 54 Podłączenie elektryczne Urządzenie chłodnicze może zostaćpodłączone do sieci elektrycznej (prądzmienny 50/60 Hz, 220–240 V) wyłącz-nie za pomocą dostarczonego przewo-du zasilającego. Dłuższy przewód zasi-lający jest do nabycia w serwisie. Zabezpieczenie musi wynosić przy...
Instalacja *INSTALLATION* 55 Podłączanie urządzenia chłodniczego Podłączyć wtyczkę urządzenia dogniazda znajdującego się z tyłu urzą-dzenia chłodniczego. Zwrócić uwagę na to, żeby wtyczka u-rządzenia dobrze się zatrzasnęła. Włożyć wtyczkę sieciową do gniazd-ka. Urządzenie chłodnicze jest teraz p...
Oszczędzanie energii 56 normalne zużycie energii podwyższone zużycieenergii Ustawienie/Kon-serwacja W wentylowanych pomiesz-czeniach. W zamkniętych pomieszcze-niach bez wentylacji. Bez narażenia na bezpo-średnie promieniowanie sło-neczne. Przy bezpośrednim nasło-necznieniu. W oddaleniu od źródeł cie...
Opis urządzenia 60 Ekran główny °C 4 1 2 3 4 5 -18 °C 6 7 a Wskazanie SuperCool(widoczne tylko wtedy, gdy funkcja SuperCool została włączona) b Wskazanie temperatury (temperatura docelowa) dla komory chłodzenia c Przycisk dotykowy do ustawiania temperatury d Wskazanie statusu połączen...
Opis urządzenia 61 Tryb ustawień W trybie ustawień można wybierać następujące funkcje urządzenia i częściowozmieniać ich ustawienia. Symbol Funkcja Język ustawianie Jasność wyświetla-cza ustawianie (ciemniej do jaśniej) Schemat kolory-styczny ustawianie (ciemny lub jasny) / Dźwięki sygnałó...
Opis urządzenia 62 Ustawienia fabrycz-ne przywracanie ustawień do stanu fabrycznego (patrz rozdział „Pozostałe ustawienia“) Tryb wakacyjny włączanie i wyłączanie(patrz rozdział „Pozostałe ustawienia“) Moduł wydawczy włączanie lub wyłączanie (patrz rozdział „Produkcja kostek lodu“) Tryb szaba...
Wyposażenie 63 Wyposażenie dostarczonewraz z urządzeniem Przewód zasilający z wtyczką urzą-dzenia Filtr Active AirClean Filtr Active AirClean neutralizuje nie-przyjemne zapachy w komorze chło-dzenia i chroni produkty spożywczeprzed ewentualnym przenoszeniem za-pachów. Założyć dostarczony wraz z urzą...
Pierwsze uruchomienie 65 Przed pierwszym użyciem Odczekać ok. 1 godzinę po transpor-cie urządzenia chłodniczego, zanimzostanie ono podłączone. Dzięki temu można uniknąć ewentu-alnych usterek w działaniu urządze-nia chłodniczego. Materiały opakowaniowe Usunąć wszystkie materiały opako-waniowe z wnę...
Pierwsze uruchomienie 66 Zakładanie filtrów Active AirClean Państwa urządzenie chłodnicze jest wy-posażone w 2 filtry Active AirClean, któ-re neutralizują nieprzyjemne zapachy wkomorze chłodzenia. Założyć dostarczone wraz z urządze-niem filtry Active AirClean zgodnie zopisem w rozdziale „Czyszczen...
Pierwsze uruchomienie 67 Tryb ustawień Poprzez tryb ustawień można wy- bierać różne funkcje urządzenia chłod-niczego i częściowo zmieniać ichustawienia (patrz rozdział „Pozostałeustawienia“). Nacisnąć przycisk dotykowy , żeby dostać się do trybu ustawień. Korzystając z przycisków dotykowyc...
Pierwsze uruchomienie 68 Wybrać dalej , jeśli Miele@home ma zo- stać skonfigurowane od razu (w tymcelu postępować według wskazówekw rozdziale „Pozostałe ustawienia”,punkt „ Miele@home “). Wybrać pomiń , jeśli Miele@home ma zostać skonfigurowane w później-szym terminie. Korzystając z przycisków...
Włączanie i wyłączanie urządzenia chłodniczego 69 Włączanie urządzenia chłodni-czego Otworzyć drzwi urządzenia. Włączyć urządzenie chłodnicze, naci-skając przełącznik wł./wył. Urządzenie chłodnicze zaczyna chło-dzić, a oświetlenie wnętrza zapala sięprzy otwartych drzwiach urządzenia. Na wyświetl...
Włączanie i wyłączanie urządzenia chłodniczego 70 W razie dłuższej nieobecności Jeśli urządzenie nie będzie używaneprzez dłuższy czas, należy: Wyłączyć urządzenie. Wyjąć wtyczkę z gniazdka lub wyłą-czyć odpowiedni bezpiecznik instala-cji domowej. Niebezpieczeństwo uszkodzeń przez oblodzenie ru...
Pozostałe ustawienia 71 Poprzez tryb ustawień można wybie- rać różne funkcje urządzenia chłodni-czego i częściowo zmieniać ich usta-wienia, dostosowując w ten sposóburządzenie chłodnicze do swoich po-trzeb. Poniżej zostaną opisane tylko te funkcjetrybu ustawień , które wymagają dal- szych objaśn...
Pozostałe ustawienia 72 Włączanie lub wyłączanie funk-cji Tryb Eco Tryb Eco zaleca się, gdy np. podczas urlopu nie chcą Państwo całkowicie wy-łączać urządzenia chłodniczego lub niejest potrzebna wysoka wydajność chło-dzenia. Gdy włączony jest Tryb Eco , zu- życie energii jest niższe niż w normal-n...
Pozostałe ustawienia 73 Autotest Autotest należy przeprowadzić, gdy ma- ją Państwo wrażenie, że urządzeniechłodnicze nie pracuje prawidłowo i po-winno zostać sprawdzone pod kątemewentualnych usterek. W trybie ustawień , korzystając z przycisków dotykowych i , wy- brać Autotest i potwierdz...
Pozostałe ustawienia 74 Włączanie funkcji Asystent drzwi Można wybierać pomiędzy dwoma asy-stentami drzwi Push2open i Pull2open . Fabrycznie ustawiony jest asystentdrzwi Push2open . Asystent drzwi Push2open jest przezna- czony do bezuchwytowych frontów me-blowych. Drzwi urządzenia otwierają sięs...
Pozostałe ustawienia 75 Włączanie Push2open W trybie ustawień , korzystając z przycisków dotykowych i , wy- brać Asystent drzwi i potwierdzić wy- bór za pomocą OK . Korzystając z przycisków dotykowych i wybrać Tryb i potwierdzić wy- bór za pomocą OK . Korzystając z przycisków dotykow...
Pozostałe ustawienia 76 - ustawianie intensywności Dodatkowo można ustawić intensyw-ność funkcji Pull2open . Im niższa usta- wiona intensywność, tym mniej siły po-trzeba do pociągnięcia drzwi urządze-nia. W trybie ustawień , korzystając z przycisków dotykowych i , wy- brać Asystent drzwi i p...
Pozostałe ustawienia 77 Dostępność połączenia WiFi Połączenie WiFi współdzieli zakres czę-stotliwości z innymi urządzeniami (np.kuchnia mikrofalowa, zdalnie sterowanezabawki). Z tego powodu mogą wystą-pić czasowe lub całkowite zakłóceniapołączenia. Dlatego nie można zagwa-rantować stałej dostępności...
Pozostałe ustawienia 79 Dezaktywacja Miele@home W trybie ustawień , korzystając z przycisków dotykowych i , wy- brać Miele@home i potwierdzić wybór za pomocą OK . Korzystając z przycisków dotykowych i wybrać dezaktywacja i potwier- dzić wybór za pomocą OK . Na wyświetlaczu pojawia się ...
Pozostałe ustawienia 80 Resetowanie konfiguracji sieci Ustawienia urządzenia chłodniczegonależy przywrócić do stanu fabryczne-go, gdy utylizuje się urządzenie chłod-nicze, sprzedaje lub rozpoczyna użyt-kowanie używanego urządzenia chłod-niczego. W ten sposób zostanie rów-nież zresetowana konfiguracj...
Pozostałe ustawienia 81 Przywracanie ustawień do stanu fabrycznego Ustawienia urządzenia chłodniczego można przywrócić do stanu fabrycznego. Ustawienia urządzenia chłodniczego należy przywrócić do stanu fabrycznego,gdy utylizuje się urządzenie chłodnicze, sprzedaje lub rozpoczyna użytkowanieużywan...
Pozostałe ustawienia 82 Funkcja Ustawienie w stanie fabrycznym Język angielski Jasność wyświetlacza średnia wartość (4 z 7 segmentów) Schemat kolorystyczny ciemny / Dźwięki sygnałów średnia wartość (4 z 7 segmentów) / Dźwięk przycisków średnia wartość (4 z 7 segmentów) °C / °F Jednostki temp...
Pozostałe ustawienia 83 Włączanie lub wyłączanie funk-cji Tryb wakacyjny Tryb wakacyjny zaleca się, gdy np. pod- czas urlopu nie chcą Państwo całkowi-cie wyłączać komory chłodzenia lub niejest potrzebna wysoka wydajność chło-dzenia. Przy tej średniej temperaturze w komo-rze chłodzenia, nie psujące...
Pozostałe ustawienia 84 Włączanie funkcji Tryb wakacyjny W trybie ustawień , korzystając z przycisków dotykowych i , wy- brać Tryb wakacyjny i potwierdzić wy- bór za pomocą OK . Korzystając z przycisków dotykowych i wybrać wł. i potwierdzić wybór za pomocą OK . Na wyświetlaczu tempe...
Prawidłowa temperatura 89 Prawidłowe ustawienie temperatury jestbardzo ważne dla przechowywania pro-duktów spożywczych. Przez mikroorga-nizmy produkty spożywcze szybciej siępsują, co jest możliwe do uniknięcia lubopóźnienia dzięki prawidłowej tempera-turze przechowywania. Temperaturawpływa na szybko...
Prawidłowa temperatura 90 ... w komorze mrożenia Aby zamrozić świeże produkty spożyw-cze i dłużej przechowywać żywność,wymagana jest temperatura -18 °C . W tej temperaturze wzrost mikroorgani-zmów zostaje w dużej mierze wstrzy-many. Gdy tylko temperatura wzrośniepowyżej -10 °C, rozpoczyna się rozkła...
Prawidłowa temperatura 91 Na tylnej ściance w komorze chłodzeniaznajduje się regulator temperatury, zapomocą którego można w niewielkimzakresie przestawić temperaturę w su-chym pojemniku. Fabrycznie regulator temperatury jestustawiony w pozycji „cold“. Ustawić regulator temperatury na po-zycję „co...
Stosowanie funkcji SuperCool i SuperFrost 92 Funkcja SuperCool Z funkcją SuperCool komora chłodzeniazostanie bardzo szybko schłodzona donajzimniejszej wartości (w zależności odtemperatury otoczenia). Włączenie funkcji SuperCool zaleca sięszczególnie wtedy, gdy mają zostaćszybko schłodzone duże il...
Stosowanie funkcji SuperCool i SuperFrost 93 Funkcja SuperFrost Aby optymalnie zamrozić produkty spo-żywcze, przed zamrażaniem świeżychproduktów spożywczych należy włą-czyć funkcję SuperFrost. W ten sposób produkty spożywcze zo-staną szybko przemrożone „na wskroś“i zachowają dzięki temu wartości ...
Stosowanie funkcji SuperCool i SuperFrost 94 Jeśli funkcja SuperFrost nie zostaniewyłączona, wówczas wyłącza się onaautomatycznie po ok. 54 godzinach.Dokładny czas do wyłączenia funkcjizależy od ilości świeżo dołożonych pro-duktów spożywczych. Urządzenie pracuje znowu z normalnąwydajnością chłodzeni...
Alarm temperaturowy i alarm drzwi 95 Urządzenie jest wyposażone w systemostrzegawczy, żeby wzrost temperaturyw komorze mrożenia nie mógł pozostaćniezauważony i żeby zapobiec utracieenergii w przypadku pozostawieniaotwartych drzwi urządzenia. Alarm temperaturowy Gdy temperatura w komorze mrożeniaosią...
Alarm temperaturowy i alarm drzwi 96 Alarm drzwi Jeśli jedne z drzwi urządzenia pozostająotwarte dłużej niż 2 minuty, rozlega sięsygnał ostrzegawczy.Dodatkowo na wyświetlaczu pojawiasię komunikat: Zamknąć drzwi . Gdy tylko odpowiednie drzwi urządze-nia zostaną zamknięte, sygnał ostrze-gawczy milknie...
Organizacja wnętrza 97 Wyjmowanie lub przekładaniepółek w drzwiach urządzenia Wyjmować lub przekładać półki wdrzwiach urządzenia wyłącznie wstanie niezaładowanym. Przytrzymać półkę obydwoma rękamiza ramkę i unieść ją nieco, tak żebypo obu stronach wysunęła się zacze-pami nad prowadnice. Wyjąć pó...
Organizacja wnętrza 98 Wyjmowanie zawieszanej szu-flady Wyciągnąć równo zawieszaną szufla-dę, tak żeby ją przełożyć po obu stro-nach nad ogranicznikami wysuwu. W celu założenia wsunąć zawieszanąszufladę równo w prowadnicę. Zawieszaną szufladę można przesu-nąć wedle uznania w lewo lub w pra-wo. P...
Organizacja wnętrza 99 Wyjmowanie pojemników z ko-mory chłodzenia Wyciągnąć pojemnik nieco do przo-du. Chwycić ramę pojemnika obydwomarękami od dołu i nacisnąć z szarpnię-ciem do dołu, tak żeby wyczepiła siędo góry w tylnym obszarze. Wyciągnąć pojemnik do przodu. Następnie wsunąć z powrotem sz...
Przechowywanie żywności w komorze chłodzenia 101 Zagrożenie wybuchowe. Nie przechowywać w urządzeniuśrodków wybuchowych ani żadnychproduktów zasilanych gazami palny-mi (np. puszek z aerozolem). Jeśli w urządzeniu lub w drzwiach urządzenia przechowywanesą produkty spożywcze zawierająceolej lub tł...
Przechowywanie żywności w komorze chłodzenia 102 Najcieplejszy obszar Najcieplejszy obszar w komorze chło-dzenia jest na samej górze z przodui w drzwiach urządzenia. Te obszary na-leży wykorzystywać np. do przechowy-wania masła, żeby pozostawało sma-rowne i sera, żeby zachował aromat. Najzimniejszy ...
Przechowywanie żywności w strefie MasterFresh 104 Strefa MasterFresh W strefie MasterFresh panują optymal-ne warunki przechowywania dla owo-ców, warzyw, ryb, mięsa i produktówmlecznych. Produkty spożywcze pozo-stają znacznie dłużej świeże, zachowująsmak i witaminy. Strefa MasterFresh składa się z wi...
Przechowywanie żywności w strefie MasterFresh 105 Regulator przesuwny umożliwia regula-cję wilgotności powietrza zawartego wwilgotnym pojemniku za pomocą usta-wień do . Pozycja regulatora wilgotności = lekko podwyższona wilgotność po-wietrza To ustawienie należy wybrać, gdy w wilgotnym pojem...
Przechowywanie żywności w strefie MasterFresh 106 Suchy pojemnik z obniżoną tempera-turą W suchym pojemniku temperatura za-wiera się w zakresie od -1 do 3 °C. Sąto temperatury niższe niż w tradycyjnejkomorze chłodzenia, dla niewrażliwychna zimno produktów spożywczych sta-nowiące jednak optymalne war...
Zamrażanie i przechowywanie 109 Maksymalna zdolność mroże-nia Aby możliwie szybko przemrozić pro-dukty spożywcze „na wskroś“, nie wol-no przekroczyć maksymalnej zdolnościmrożenia. Maksymalną zdolność mro-żenia w ciągu 24 godzin można znaleźćna tabliczce znamionowej „Zdolnośćmrożenia ...kg/24 h“. Zdo...
Zamrażanie i przechowywanie 110 Zamrażanie świeżych produk-tów spożywczych Do zamrażania należy wykorzysty-wać wyłącznie świeże i nieuszkodzo-ne produkty spożywcze! Na co zwrócić uwagę przed zamraża-niem - Do zamrażania nadają się : świeże mięso, drób, dziczyzna, ryby,warzywa, zioła, surowe owoce, p...
Zamrażanie i przechowywanie 111 Opisać na opakowaniu zawartośći datę zamrożenia. Przed włożeniem W przypadku świeżych produktówspożywczych w ilości większej niż2 kg, 24 godziny przed włożeniemproduktów spożywczych należy włą-czyć funkcję SuperFrost (patrz roz-dział „Funkcje SuperCool iSuperFrost...
Zamrażanie i przechowywanie 112 W przypadku mrożonek sklepowychdecydujący jest czas przechowywaniapodany na opakowaniu. Przy stałej temperaturze mrożenia-18 °C i odpowiedniej higienie możnawykorzystać maksymalny czas prze-chowywania produktów spożywczych,zmniejszając w ten sposób ilość odpa-dów. Roz...
Wytwarzanie kostek lodu 113 Automatyczna kostkarka do lodu po-trzebuje do pracy podłączenia doświeżej wody (patrz rozdział „Instala-cja”, punkt „Przyłącze świeżej wody“). Zagrożenie zdrowia przez skażo- ną wodę.Spożycie zanieczyszczonej wodymoże doprowadzić do zachorowań.Trzy pierwsze partie koste...
Wytwarzanie kostek lodu 114 W przypadku wyjęcia pojemnika nakostki lodu produkcja kostek lodu niezostaje zakończona. Może się zda-rzyć, że kostki lodu wypadną doznajdującego się poniżej kosza namrożonki.W miarę możliwości wyjmować po-jemnik na kostki lodu tylko na krótki czas lub wyłączyć wcześniej ...
Automatyczne odmrażanie 115 Komora chłodzeniai strefa MasterFresh Komora chłodzenia i strefa MasterFreshodmrażają się automatycznie. Podczas pracy kompresora na tylnejściance komory chłodzenia i strefyMasterFresh mogą się tworzyć, w zależ-ności od działania urządzenia, szron izamarznięte kropelki wo...
Czyszczenie i pielęgnacja 116 Proszę zwrócić uwagę na to, żeby doelektroniki ani do oświetlenia nie do-stała się woda. Niebezpieczeństwo uszkodzeń przez wnikającą wilgoć.Para z myjki parowej może uszkodzićtworzywa i podzespoły elektryczne.Nie stosować myjki parowej doczyszczenia urządzenia chłodni...
Czyszczenie i pielęgnacja 117 Przed czyszczeniem urządze-nia chłodniczego Wyłączyć urządzenie chłodnicze, na-ciskając przełącznik wł./wył. Wyjąć produkty spożywcze z urzą-dzenia i przechować je w chłodnymmiejscu. Wyjąć do mycia wszystkie pozostałeelementy, które można wyjąć (patrzrozdział „Org...
Czyszczenie i pielęgnacja 118 Czyszczenie uszczelki drzwi Niebezpieczeństwo uszkodzeń przez nieprawidłowe czyszczenie.W przypadku potraktowania uszczel-ki drzwi olejami lub tłuszczami możesię ona stać porowata.Uszczelkę drzwi należy chronić przedolejami i tłuszczami. Uszczelkę drzwi należy regul...
Czyszczenie i pielęgnacja 120 na wyświetlaczu (patrz rozdział „Pozo-stałe ustawienia“, punkt „Resetowaniefunkcji Wskaźnik filtra wody “). Wymiana filtra Active AirClean Filtr Active AirClean w komorze chło-dzenia musi zostać wymieniony co ok.6 miesięcy. Na wyświetlaczu pojawia się komunikat: Wymie...
Czyszczenie i pielęgnacja 121 Po czyszczeniu Włożyć wszystkie elementy do komo-ry chłodzenia. Włączyć z powrotem urządzenie. Włożyć produkty spożywcze do ko-mory chłodzenia i zamknąć drzwi u-rządzenia. Włączyć na jakiś czas funkcjęSuperFrost , żeby komora mrożenia szybko się oziębiła. Wł...
Filtr wody 122 Urządzenie chłodnicze jest dostarczanez filtrem wody (filtr siatkowyIntensiveClear), który filtruje wodę wo-dociągową do przyrządzania kostek lo-du. Filtr siatkowy IntensiveClear odfiltro-wuje stałe zanieczyszczenia z wodywodociągowej, ale nie bakterie ani mi-kroorganizmy. Filtra wody...
Co robić, gdy ... 123 Większość usterek i błędów, do których dochodzi podczas codziennego użytko-wania, można usunąć samodzielnie. W wielu przypadkach pozwoli to zaoszczędzićczas i koszty, ponieważ nie ma wówczas potrzeby wzywania serwisu. Poniższa tabela powinna być pomocna w ustaleniu przyczyn ewe...
Co robić, gdy ... 127 Komunikaty na wyświetlaczu Komunikat Przyczyna i postępowanie Rozlega się sygnałostrzegawczy i na wy-świetlaczu jest pokazy-wany komunikat: Tempe- ratura mrożenia była za wy-soka Maks. temperatura:°C . Temperatura w urządzeniu chłodniczym mocno wzro-sła.Przyczyną tego może być ...
Co robić, gdy ... 129 Problemy z kostkarką do lodu Problem Przyczyna i postępowanie Kostkarka do lodu nieprodukuje kostek lodu. Urządzenie chłodnicze i kostkarka do lodu nie sąwłączone. Włączyć urządzenie chłodnicze i kostkarkę do lo-du. Sprawdzić, czy filtr wody jest prawidłowo założo-ny. Nie z...
Co robić, gdy ... 132 Nie działa oświetlenie wnętrza Problem Przyczyna i postępowanie Nie działa oświetleniewnętrza. Urządzenie nie jest włączone. Włączyć urządzenie. Funkcja Tryb szabasowy jest włączona: Wskazanie temperatury jest wygaszone i na wyświetlaczu poka-zywany jest symbol . Tryb sz...
Przyczyny powstawania hałasu 133 Normalne od-głosy Skąd one się biorą? Wrrrrr ... Warczenie pochodzi z silnika (kompresora). Czasami może byćnieco głośniejsze, szczególnie podczas włączania się silnika. Bul, bul ... Bulgotanie, chlupotanie lub furczenie pochodzi od środka chłod-niczego, który przepł...
Serwis 134 Kontakt w przypadku wystą-pienia usterki W razie wystąpienia usterek, których niemożna usunąć samodzielnie, proszępowiadomić np. sprzedawcę Miele lubserwis Miele. Wizytę technika serwisowego Mielemożna zamówić online na stroniewww.miele.pl w zakładce Serwis. Dane kontaktowe serwisu Miele ...
Deklaracja zgodności 135 Niniejszym Miele oświadcza, że ta chło-dziarko-zamrażarka spełnia wymaganiaDyrektywy 2014/53/WE. Pełny tekst deklaracji zgodności WEjest dostępny pod jednym z poniższychadresów internetowych: - Produkty, Pobieranie, na stronie www.miele.pl - Serwis, Materiały informacyjne, n...
Prawa autorskie i licencje 136 Do obsługi i sterowania urządzeniem Miele używa oprogramowania własnego luboprogramowania innych producentów, które nie jest objęte tzw. licencją open so-urce. Oprogramowanie i jego elementy są chronione prawem autorskim. W związ-ku z tym należy respektować prawa autor...
Other Miele Inne Manuals
-
Miele APWM 063 Instrukcja instalacji
-
Miele APWM 019 Instrukcja obsługi
-
Miele TT 86 Instrukcja obsługi
-
Miele UG 5010 Instrukcja instalacji
-
Miele UO 5010 Instrukcja instalacji
-
Miele E 473/2 Instrukcja obsługi
-
Miele FFK 01 Instrukcja instalacji
-
Miele APDR 002 Instrukcja obsługi
-
Miele DP [50Hz] Instrukcja instalacji
-
Miele APCL 005 Instrukcja instalacji
-
Miele PG 8583 CD [WW AD CM] Instrukcja obsługi
-
Miele PG 8583 CD [WW AD CM] Instrukcja instalacji
-
Miele PG 8583 [WW AD LD] Instrukcja obsługi
-
Miele PG 8583 [WW AD LD] Instrukcja instalacji
-
Miele PLW 8615 [EL] Instrukcja obsługi
-
Miele PLW 8615 [EL] Instrukcja instalacji
-
Miele PG 8504 [AD] Instrukcja obsługi
-
Miele PLW 8617 [EL/S TH] Instrukcja obsługi
-
Miele PLW 8617 [EL/S TH] Instrukcja instalacji
-
Miele PLW 8617 [EL/S RT] Instrukcja obsługi