Miele K 2902 Vi - Instrukcje
Instrukcja obsługi Miele K 2902 Vi












































































































Podsumowanie
Spis treści 2 Wskazówki bezpieczeństwa i ostrzeżenia ...................................................... 5 Ochrona środowiska naturalnego ................................................................... 15 Instalacja ................................................................................
Spis treści 3 Pierwsze uruchomienie .................................................................................... 59 Przed pierwszym użyciem ................................................................................... 59 Wybór właściwego asystenta drzwi ( Push2open / Pull2open ) .........
Wskazówki bezpieczeństwa i ostrzeżenia 5 To urządzenie chłodnicze spełnia wymagania obowiązującychprzepisów bezpieczeństwa. Nieprawidłowe użytkowanie może jed-nak doprowadzić do wyrządzenia szkód osobowych i rzeczowych. Przed uruchomieniem urządzenia chłodniczego należy uważnieprzeczytać dołączoną i...
Wskazówki bezpieczeństwa i ostrzeżenia 6 Użytkowanie zgodne z przeznaczeniem Urządzenie chłodnicze jest przeznaczone do użytkowania w go- spodarstwach domowych i w domowych warunkach eksploatacyj-nych, jak przykładowo:– w sklepach, biurach i podobnych miejscach pracy,– w gospodarstwach rolnych,– p...
Wskazówki bezpieczeństwa i ostrzeżenia 7 Dzieci w gospodarstwie domowym Dzieci poniżej 8 roku życia należy trzymać z daleka od urządzenia, chyba że są pod stałym nadzorem. Dzieciom powyżej ósmego roku życia wolno używać urządzenia bez nadzoru tylko wtedy, gdy jego obsługa została im objaśniona w...
Wskazówki bezpieczeństwa i ostrzeżenia 8 Bezpieczeństwo techniczne Obieg czynnika chłodniczego jest sprawdzony pod kątem szczel- ności. Urządzenie chłodnicze spełnia wymagania obowiązującychnorm bezpieczeństwa, jak również odpowiednich dyrektyw Unii Eu-ropejskiej. To urządzenie chłodnicze zawier...
Wskazówki bezpieczeństwa i ostrzeżenia 11 Uszkodzone podzespoły mogą zostać wymienione wyłącznie na oryginalne części zamienne Miele. Tylko w przypadku takich częścifirma Miele może zagwarantować spełnienie wymagań bezpieczeń-stwa w pełnym zakresie. Ze względu na szczególne wymagania (np. odnośn...
Wskazówki bezpieczeństwa i ostrzeżenia 12 Zagrożenie pożarowe i wybuchowe. Nie przechowywać w urzą- dzeniu środków wybuchowych ani żadnych produktów zasilanychgazami palnymi (np. puszek z aerozolem). Łatwo zapalne mieszaninygazowe mogą się zapalić przez podzespoły elektryczne. Zagrożenie wybucho...
Wskazówki bezpieczeństwa i ostrzeżenia 13 Części zamienne i akcesoria Stosować wyłącznie oryginalne wyposażenie Miele. Jeśli zostaną dobudowane lub wbudowane inne części, przepadają roszczeniawynikające z gwarancji, rękojmi i/lub odpowiedzialności za produkt. Firma Miele gwarantuje dostępność fu...
Wskazówki bezpieczeństwa i ostrzeżenia 14 Transport Urządzenie należy zawsze transportować na stojąco w pionie i w opakowaniu transportowym, żeby nie zostały wyrządzone żadneszkody. Niebezpieczeństwo zranień i uszkodzeń. Urządzenie chłodnicze należy transportować z pomocą drugiej osoby, ponieważ...
Ochrona środowiska naturalnego 15 Utylizacja opakowania trans-portowego Opakowanie chroni urządzenie przeduszkodzeniami podczas transportu. Ma-teriały, z których wykonano opakowaniezostały specjalnie dobrane pod kątemochrony środowiska i techniki utylizacjii dlatego nadają się do ponownego wy-korzys...
Instalacja *INSTALLATION* 16 Miejsce ustawienia Zalecane jest suche i dobrze wentylo-wane pomieszczenie. Przy wybieraniu miejsca ustawienia na-leży pamiętać, że zużycie energii urzą-dzenia chłodniczego wzrasta, jeśli jestono ustawione w bezpośrednim są-siedztwie grzejnika, piekarnika lub inne-go źró...
Instalacja *INSTALLATION* 17 Niebezpieczeństwo uszkodzeń przez wysoką wilgotność powietrza.Przy wysokiej wilgotności powietrzana zewnętrznych powierzchniach u-rządzenia chłodniczego może sięosadzać kondensat, stanowiącyprzyczynę korozji.Ustawić urządzenie chłodnicze w su-chym i/lub klimatyzowanym ...
Instalacja *INSTALLATION* 18 Obciążalność podłogi niszy Dla bezpiecznego ustawienia urządze-nia chłodniczego i zagwarantowaniawszystkich deklarowanych funkcji pod-łoga niszy musi być płaska i wypozio-mowana. Podłoga niszy musi być wykonanaz twardego, sztywnego materiału. Ze względu na wysoki ciężar ...
Instalacja *INSTALLATION* 19 Side-by-side To urządzenie chłodnicze może zostaćustawione z innym urządzeniem chłod-niczym w zabudowie „side-by-side”. W poniższym przeglądzie można zoba-czyć, jakie możliwości zabudowy side-by-side są dostępne z Państwa urzą-dzeniem chłodniczym. W zależności od sytuacj...
Instalacja *INSTALLATION* 20 Przy planowaniu niszy do zabudowyproszę wziąć pod uwagę, że nisza dozabudowy, w której ma zostać zain-stalowane urządzenie chłodnicze zgrzaniem ścianki bocznej, zasadni-czo musi być szersza o 4 mm (patrz rozdział „Instalacja“, punkt „Wymiarydo zabudowy“). Jeśli ścianka p...
Instalacja *INSTALLATION* 21 Wymiary do zabudowy A B C A B C K 2602 Vi, K 2612 Vi 2134–2164 mm 610 mm 610 mm + front meblo-wy (19–38 mm) K 2802 Vi, K 2812 Vi 2134–2164 mm 762 mm 610 mm + front meblo-wy (19–38 mm) K 2902 Vi, K 2912 Vi 2134–2164 mm 915 mm 610 mm + front meblo-wy (19–38 mm)
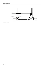
Instalacja *INSTALLATION* 23 Wymiary przy otwartych drzwiach urządzenia (kąt otwarcia 90°/115°) 10 mm D A B C A B* C* D (w przypadku fron-tów meblowych ogrubości 19 mm) K 2602 Vi, K 2612 Vi 677 mm front meblowy(19–38 mm) uchwyt drzwi 296 mm K 2802 Vi, K 2812 Vi 829 mm front meblowy(19–38 mm) uchwyt ...
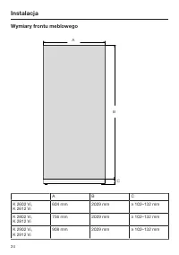
Instalacja *INSTALLATION* 24 Wymiary frontu meblowego A B C A B C K 2602 Vi, K 2612 Vi 604 mm 2029 mm ≥ 102–132 mm K 2802 Vi, K 2812 Vi 756 mm 2029 mm ≥ 102–132 mm K 2902 Vi, K 2912 Vi 908 mm 2029 mm ≥ 102–132 mm
Instalacja *INSTALLATION* 25 Zabudowa urządzenia Zanim rozpoczniesz... Przeczytaj uważnie instrukcję użytko-wania i montażu przed przystąpie-niem do zabudowy urządzeniachłodniczego.Urządzenie chłodnicze powinno zo-stać zabudowane przez wykwalifiko-wanego instalatora zgodnie z instruk-cją użytkowania...
Instalacja *INSTALLATION* 26 Ciężar frontu meblowego Przed montażem frontu meblowego na-leży się upewnić, że przeznaczony dozamontowania front meblowy nie prze-kracza dopuszczalnego ciężaru: Urządzenie maks. ciężarfrontu meblo-wego K 2602 Vi, K 2612 Vi 48 kg K 2802 Vi, K 2812 Vi 27 kg K 2902 Vi, K 2...
Instalacja *INSTALLATION* 27 Sprawdzanie niszy do zabudowy Sprawdzić wymiary do zabudowy(patrz rozdział „Instalacja“, punkt„Wymiary do zabudowy“). Sprawdzić pozycję przyłącza elek-trycznego. Długość przewodu zasila-jącego wynosi 3 m. Gniazdo elektryczne powinno sięznajdować poza obszarem tylnejś...
Instalacja *INSTALLATION* 28 Nie usuwać elementów ustawczych z drzwi urządzenia. Elementy ustawcze będą później potrzebne dowyrównania w niszy do zabudowy. Niebezpieczeństwo uszkodzeń i zranień przez przewracające sięurządzenie chłodnicze.Urządzenie chłodnicze nie będziewięcej zabezpieczone, g...
Instalacja *INSTALLATION* 29 Przygotowanie niszy do zabudowy Niebezpieczeństwo uszkodzeń i zranień przez przewracające sięurządzenie chłodnicze.Urządzenie chłodnicze jest bardzociężkie i przy otwartych drzwiach matendencję do przewracania się doprzodu.Nisza do zabudowy musi konieczniezostać wielok...
Instalacja *INSTALLATION* 30 Pozycja zabezpieczenia przeciwprze-chyłowego na wysokość wynosi, w za-leżności od ostatecznej regulacji nó-żek ustawczych, 2134–2164 mm oddna niszy. Niebezpieczeństwo zranień i uszkodzeń przez przewracające sięurządzenie chłodnicze.Jeśli zabezpieczenie przeciwprze-chył...
Instalacja *INSTALLATION* 31 Mocowanie z klinem drewnianym W zależności od potrzeb połączyć te-raz niszę do zabudowy za pomocąkątowników zabezpieczenia przeciw-przechyłowego ze znajdującą się z tyłu lub/i powyżej ścianą. Wsuwanie urządzenia chłodniczegodo niszy do zabudowy Zwrócić uwagę na to, ż...
Instalacja *INSTALLATION* 32 Zabezpieczyć sąsiadujące fronty me-blowe za pomocą kątownikówochronnych . Podłączyć wtyczkę znajdującą sięz tyłu urządzenia chłodniczego (patrzrozdział „Instalacja“, punkt „Podłącze-nie elektryczne“). Włożyć wtyczkę do gniazdka. Gniazdo elektryczne powinno sięz...
Instalacja *INSTALLATION* 33 Wyrównywanie urządzenia chłodni-czego Elementy ustawcze na drzwiach u- rządzenia pomagają w wyrównaniu u-rządzenia chłodniczego w niszy do za-budowy. Elementy ustawcze są przeznaczonedo frontów meblowych o grubości19 mm lub 38 mm. Proszę wyrównać urządzenie chłodni-c...
Instalacja *INSTALLATION* 34 Dostarczone elementy dystansowe należy umieścić przed urządzeniemchłodniczym po obu stronach przyzaznaczeniach obok nóżek ustaw-czych. Przestawić tylne nóżki ustawcze zapomocą grzechotki (nasadka: sze-ściokąt, 8 mm) lub śrubokręta (TX 20) .
Instalacja *INSTALLATION* 35 Przestawić przednie nóżki ustawczeza pomocą grzechotki (nasadka: sze-ściokąt, 8 mm) lub śrubokręta (TX 20) . Wskazówka: Przy wykręcaniu nóżek ustawczych należy postępować stop-niowo: zawsze na zmianę raz z lewej,raz z prawej itd. W celu wyrównania urządzenia chłod-...
Instalacja *INSTALLATION* 37 Otworzyć drzwi urządzenia. Skręcić u góry i na dole wypustki bla-chy mocującej ze znajdującymi się obok meblami/elementami zabudo-wy. W przypadku kombinacji side-by-sidekażde z urządzeń chłodniczych możezostać zamocowane do ścianki me-blowej wyłącznie od zewnętrzn...
Instalacja *INSTALLATION* 41 Listwy kątowe wcisnąć po obu stronach w białą ramę z tworzywasztucznego i najpierw luźno je przy-kręcić. Służące do tego zapasoweśruby można znaleźć w torebce pla-stikowej z literą E. Po obu stronach założyć elementydystansowe u góry na narożnikach frontu meblowe...
Instalacja *INSTALLATION* 42 Zamknąć drzwi urządzenia i skontro-lować odstęp do sąsiadujących fron-tów meblowych. Założyć z powrotem podkładki i na-krętki i dobrze dokręcić nakrętki . Dzięki temu front meblowy zostaje zamocowany. Dokręcić teraz dobrze śruby w li-stwach kątowych . Otwor...
Instalacja *INSTALLATION* 43 Przykręcić dobrze kątownik mocujący do frontu meblowego. Wkręcić śrubę znajdującą się na dolena drzwiach urządzenia. Założyć pokrywkę na kątownik mocujący .
Instalacja *INSTALLATION* 44 Zatrzasnąć pokrywkę na kątowni- ku mocującym, tak żeby „kliknęła“. Mocowanie zaślepek Zanim będzie można włożyć pokryw-kę w szczelinę nad urządzeniem chłodniczym, pokrywka musi zostaćzłożona w następujący sposób: Włożyć w siebie obie części pokryw-ki. Zakładani...
Instalacja *INSTALLATION* 45 Włożyć złożoną pokrywkę w szczelinę nad urządzeniem chłodni-czym, aż się zatrzaśnie. Zsunąć przytym obie części pokrywki na tyle, naile to konieczne. Montaż pokrywki w przypadku kom-binacji side-by-side Włożyć trzpień (dołączony do zesta-wu montażowego Side-by-side...
Instalacja *INSTALLATION* 46 Na każdej stronie założyć teraz za-ślepki na klamry . W przypadku kombinacji side-by-sidete zaślepki zakłada się tylko po ze-wnętrznej stronie. Założyć pokrywkę na przełącznik kontaktowy światła.
Instalacja *INSTALLATION* 47 Mocowanie cokołowej kratki wenty-lacyjnej i panelu cokołowego Zatrzasnąć cokołową kratkę wentyla-cyjną na dole na cokole urządze- nia. W razie potrzeby przyciąć panel co-kołowy na wymaganą długość i wy-sokość (pomiędzy dolną krawędziącokołu i podłogą). Zamocować ...
Instalacja *INSTALLATION* 48 Podłączenie elektryczne Urządzenie chłodnicze może zostaćpodłączone do sieci elektrycznej (prądzmienny 50/60 Hz, 220–240 V) wyłącz-nie za pomocą dostarczonego przewo-du zasilającego. Dłuższy przewód zasi-lający jest do nabycia w serwisie. Zabezpieczenie musi wynosić przy...
Instalacja *INSTALLATION* 49 Podłączanie urządzenia chłodniczego Podłączyć wtyczkę urządzenia dogniazda znajdującego się z tyłu urzą-dzenia chłodniczego. Zwrócić uwagę na to, żeby wtyczka u-rządzenia dobrze się zatrzasnęła. Włożyć wtyczkę sieciową do gniazd-ka. Urządzenie chłodnicze jest teraz p...
Oszczędzanie energii 50 normalne zużycie energii podwyższone zużycieenergii Ustawienie/Kon-serwacja W wentylowanych pomiesz-czeniach. W zamkniętych pomieszcze-niach bez wentylacji. Bez narażenia na bezpo-średnie promieniowanie sło-neczne. Przy bezpośrednim nasło-necznieniu. W oddaleniu od źródeł cie...
Opis urządzenia 52 a Wyświetlacz b Przełącznik wł./wył. c Półka w drzwiach urządzenia d Uchwyt na filtr Active AirClean e Półka f Zawieszana szuflada do przechowywania drobnych produktów spożywczych g Oświetlenie wnętrza h Szuflada na owoce i warzywa i Regulator wilgotności j Wilgotny pojemnik z reg...
Opis urządzenia 54 Ekran główny °C 4 1 2 3 4 5 a Wskazanie SuperCool(widoczne tylko wtedy, gdy funkcja SuperCool została włączona) b Wskazanie temperatury (temperatura docelowa) c Przycisk dotykowy do ustawiania temperatury d Wskazanie statusu połączenia Miele@home (widoczne tylko wtedy...
Opis urządzenia 55 Tryb ustawień W trybie ustawień można wybierać następujące funkcje urządzenia i częściowozmieniać ich ustawienia. Symbol Funkcja Język ustawianie Jasność wyświetla-cza ustawianie (ciemniej do jaśniej) Schemat kolory-styczny ustawianie (ciemny lub jasny) / Dźwięki sygnałó...
Opis urządzenia 56 * Tryb pokazowy wyłączanie * (widoczne tylko przy włączonym trybie pokazo-wym, patrz rozdział „Pozostałe ustawienia“) Ustawienia fabrycz-ne przywracanie ustawień do stanu fabrycznego (patrz rozdział „Pozostałe ustawienia“) Tryb szabasowy włączanie lub wyłączanie(patrz rozdzi...
Wyposażenie 57 Wyposażenie dostarczonewraz z urządzeniem Przewód zasilający z wtyczką urzą-dzenia Filtr Active AirClean Filtr Active AirClean neutralizuje nie-przyjemne zapachy w komorze chło-dzenia i chroni produkty spożywczeprzed ewentualnym przenoszeniem za-pachów. Założyć dostarczony wraz z urzą...
Wyposażenie 58 Panel metalowy dla frontów kaseto-wych Jeśli zamiast jednego frontu meblowe-go mają zostać zamontowane dwa fron-ty, muszą one zostać ze sobą połączo-ne za pomocą panelu metalowego. Zestaw montażowy Side-by-side Do zabudowy dwóch lub kilku urządzeńchłodniczych obok siebie może być po-t...
Pierwsze uruchomienie 59 Przed pierwszym użyciem Odczekać ok. 1 godzinę po transpor-cie urządzenia chłodniczego, zanimzostanie ono podłączone. Dzięki temu można uniknąć ewentu-alnych usterek w działaniu urządze-nia chłodniczego. Materiały opakowaniowe Usunąć wszystkie materiały opako-waniowe z wnę...
Pierwsze uruchomienie 60 Obsługa urządzenia chłodni-czego Wyświetlacz dotykowy może zostaćzarysowany przez spiczaste lub ostreprzedmioty, jak np. długopis.Dotykać wyświetlacza dotykowegowyłącznie palcami. Gdy palce są zimne, wyświetlacz do-tykowy może nie zareagować. °C 4 Przyciski dotykow...
Pierwsze uruchomienie 61 Podejmowanie pierwszego urucho-mienia Otworzyć drzwi urządzenia. Włączyć urządzenie chłodnicze, naci-skając przełącznik wł./wył. Przełącznik wł./wył. znajduje się podwyświetlaczem. Urządzenie zaczyna chłodzić, a oświe-tlenie wnętrza zapala się przy otwartychdrzwiach urzą...
Włączanie i wyłączanie urządzenia chłodniczego 62 Włączanie urządzenia chłodni-czego Otworzyć drzwi urządzenia. Włączyć urządzenie chłodnicze, naci-skając przełącznik wł./wył. Urządzenie chłodnicze zaczyna chło-dzić, a oświetlenie wnętrza zapala sięprzy otwartych drzwiach urządzenia. Na wyświetl...
Pozostałe ustawienia 63 Poprzez tryb ustawień można wybie- rać różne funkcje urządzenia chłodni-czego i częściowo zmieniać ich usta-wienia, dostosowując w ten sposóburządzenie chłodnicze do swoich po-trzeb. Poniżej zostaną opisane tylko te funkcjetrybu ustawień , które wymagają dal- szych objaśn...
Pozostałe ustawienia 64 Przestawianie temperatury wstrefie MasterFresh (suchy po-jemnik) W trybie ustawień , korzystając z przycisków dotykowych i , wy- brać MasterFresh i potwierdzić wybór za pomocą OK . Korzystając z przycisków dotykowych i wybrać prawidłową temperatu- rę i potwier...
Pozostałe ustawienia 65 Autotest Autotest należy przeprowadzić, gdy ma- ją Państwo wrażenie, że urządzeniechłodnicze nie pracuje prawidłowo i po-winno zostać sprawdzone pod kątemewentualnych usterek. W trybie ustawień , korzystając z przycisków dotykowych i , wy- brać Autotest i potwierdz...
Pozostałe ustawienia 66 Włączanie funkcji Asystent drzwi Można wybierać pomiędzy dwoma asy-stentami drzwi Push2open i Pull2open . Fabrycznie ustawiony jest asystentdrzwi Push2open . Asystent drzwi Push2open jest przezna- czony do bezuchwytowych frontów me-blowych. Drzwi urządzenia otwierają sięs...
Pozostałe ustawienia 67 - ustawianie czasu trwania funkcjiAutoClose Dodatkowo można ustawić czas, w ja-kim drzwi urządzenia powinny pozostaćotwarte, zanim zamkną się samoczyn-nie. W trybie ustawień , korzystając z przycisków dotykowych i , wy- brać Asystent drzwi i potwierdzić wy- bór za pom...
Pozostałe ustawienia 68 Wyłączanie funkcji Asystentdrzwi W trybie ustawień , korzystając z przycisków dotykowych i , wy- brać pozycję Asystent drzwi i potwier- dzić wybór za pomocą OK . Korzystając z przycisków dotykowych i wybrać Tryb i potwierdzić wy- bór za pomocą OK . Korzysta...
Pozostałe ustawienia 69 Dostępność połączenia WiFi Połączenie WiFi współdzieli zakres czę-stotliwości z innymi urządzeniami (np.kuchnia mikrofalowa, zdalnie sterowanezabawki). Z tego powodu mogą wystą-pić czasowe lub całkowite zakłóceniapołączenia. Dlatego nie można zagwa-rantować stałej dostępności...
Pozostałe ustawienia 71 Dezaktywacja Miele@home W trybie ustawień , korzystając z przycisków dotykowych i , wy- brać Miele@home i potwierdzić wybór za pomocą OK . Korzystając z przycisków dotykowych i wybrać dezaktywacja i potwier- dzić wybór za pomocą OK . Na wyświetlaczu pojawia się ...
Pozostałe ustawienia 72 Resetowanie konfiguracji sieci Ustawienia urządzenia chłodniczegonależy przywrócić do stanu fabryczne-go, gdy utylizuje się urządzenie chłod-nicze, sprzedaje lub rozpoczyna użyt-kowanie używanego urządzenia chłod-niczego. W ten sposób zostanie rów-nież zresetowana konfiguracj...
Pozostałe ustawienia 73 Przywracanie ustawień do stanu fabrycznego Ustawienia urządzenia chłodniczego można przywrócić do stanu fabrycznego. Ustawienia urządzenia chłodniczego należy przywrócić do stanu fabrycznego,gdy utylizuje się urządzenie chłodnicze, sprzedaje lub rozpoczyna użytkowanieużywan...
Pozostałe ustawienia 74 Funkcja Ustawienie w stanie fabrycznym Język angielski Jasność wyświetlacza średnia wartość (4 z 7 segmentów) Schemat kolorystyczny ciemny / Dźwięki sygnałów średnia wartość (4 z 7 segmentów) / Dźwięk przycisków średnia wartość (4 z 7 segmentów) °C / °F Jednostki temp...
Prawidłowa temperatura 78 Prawidłowe ustawienie temperatury jestbardzo ważne dla przechowywania pro-duktów spożywczych. Przez mikroorga-nizmy produkty spożywcze szybciej siępsują, co jest możliwe do uniknięcia lubopóźnienia dzięki prawidłowej tempera-turze przechowywania. Temperaturawpływa na szybko...
Prawidłowa temperatura 79 Ustawianie temperatury Nacisnąć przycisk dotykowy do ustawiania temperatury. Pojawia się ustawiona wcześniej tempe-ratura. Ustawić temperaturę za pomocąprzycisków dotykowych i . Jeśli przyciski dotykowe przytrzyma sięnaciśnięte, temperatura zmienia siępłynnie do ...
Stosowanie funkcji SuperCool 80 Funkcja SuperCool Z funkcją SuperCool komora chłodzeniazostanie bardzo szybko schłodzona donajzimniejszej wartości (w zależności odtemperatury otoczenia). Włączenie funkcji SuperCool zaleca sięszczególnie wtedy, gdy mają zostaćszybko schłodzone duże ilości świeżodo...
Alarm drzwi 81 Urządzenie jest wyposażone w systemostrzegawczy, żeby uniknąć utratyenergii w przypadku pozostawieniaotwartych drzwi urządzenia. Alarm drzwi Gdy drzwi urządzenia pozostają otwartedłużej niż ok. 2 minuty, rozlega się sy-gnał ostrzegawczy.Dodatkowo na wyświetlaczu pojawiasię komunikat: ...
Organizacja wnętrza 82 Wyjmowanie lub przekładaniepółek w drzwiach urządzenia Wyjmować lub przekładać półki wdrzwiach urządzenia wyłącznie wstanie niezaładowanym. Przytrzymać półkę obydwoma rękamiza ramkę i unieść ją nieco, tak żebypo obu stronach wysunęła się zacze-pami nad prowadnice. Wyjąć pó...
Organizacja wnętrza 83 Wyjmowanie zawieszanej szu-flady Wyciągnąć równo zawieszaną szufla-dę, tak żeby ją przełożyć po obu stro-nach nad ogranicznikami wysuwu. W celu założenia wsunąć zawieszanąszufladę równo w prowadnicę. Zawieszaną szufladę można przesu-nąć wedle uznania w lewo lub w pra-wo. P...
Organizacja wnętrza 84 Wyjmowanie pojemników z ko-mory chłodzenia Wyciągnąć pojemnik nieco do przo-du. Chwycić ramę pojemnika obydwomarękami od dołu i nacisnąć z szarpnię-ciem do dołu, tak żeby wyczepiła siędo góry w tylnym obszarze. Wyciągnąć pojemnik do przodu. Następnie wsunąć z powrotem sz...
Przechowywanie żywności w komorze chłodzenia 85 Zagrożenie wybuchowe. Nie przechowywać w urządzeniuśrodków wybuchowych ani żadnychproduktów zasilanych gazami palny-mi (np. puszek z aerozolem). Jeśli w urządzeniu lub w drzwiach urządzenia przechowywanesą produkty spożywcze zawierająceolej lub tłu...
Przechowywanie żywności w komorze chłodzenia 86 Najcieplejszy obszar Najcieplejszy obszar w komorze chło-dzenia jest na samej górze z przodui w drzwiach urządzenia. Te obszary na-leży wykorzystywać np. do przechowy-wania masła, żeby pozostawało sma-rowne i sera, żeby zachował aromat. Najzimniejszy o...
Przechowywanie żywności w komorze chłodzenia 87 Wskazówki dotyczące zakupuproduktów spożywczych Najważniejszym warunkiem dla długie-go przechowywania jest świeżość pro-duktów spożywczych w momencie ichmagazynowania.Proszę również uważać na datę trwało-ści i właściwą temperaturę przechowy-wania.W mia...
Przechowywanie żywności w strefie MasterFresh 88 Strefa MasterFresh W strefie MasterFresh panują optymal-ne warunki przechowywania dla owo-ców, warzyw, ryb, mięsa i produktówmlecznych. Produkty spożywcze pozo-stają znacznie dłużej świeże, zachowująsmak i witaminy. Strefa MasterFresh składa się z wil...
Przechowywanie żywności w strefie MasterFresh 89 Regulator przesuwny umożliwia regula-cję wilgotności powietrza zawartego wwilgotnym pojemniku za pomocą usta-wień do . Pozycja regulatora wilgotności = lekko podwyższona wilgotność po-wietrza To ustawienie należy wybrać, gdy w wilgotnym pojemn...
Przechowywanie żywności w strefie MasterFresh 90 Suchy pojemnik z regulowaną tem-peraturą W suchym pojemniku temperatura za-wiera się w zakresie od -1 do 3 °C. Sąto temperatury niższe niż w tradycyjnejkomorze chłodzenia, dla niewrażliwychna zimno produktów spożywczych sta-nowiące jednak optymalne wa...
Automatyczne odmrażanie 92 Komora chłodzeniai strefa MasterFresh Komora chłodzenia i strefa MasterFreshodmrażają się automatycznie. Podczas pracy kompresora na tylnejściance komory chłodzenia i strefyMasterFresh mogą się tworzyć, w zależ-ności od działania urządzenia, szron izamarznięte kropelki wod...
Czyszczenie i pielęgnacja 93 Proszę zwrócić uwagę na to, żeby doelektroniki ani do oświetlenia nie do-stała się woda. Niebezpieczeństwo uszkodzeń przez wnikającą wilgoć.Para z myjki parowej może uszkodzićtworzywa i podzespoły elektryczne.Nie stosować myjki parowej doczyszczenia urządzenia chłodnic...
Czyszczenie i pielęgnacja 94 Przed czyszczeniem urządze-nia chłodniczego Wyłączyć urządzenie chłodnicze, na-ciskając przełącznik wł./wył. Wyjąć produkty spożywcze z urzą-dzenia i przechować je w chłodnymmiejscu. Wyjąć do mycia wszystkie pozostałeelementy, które można wyjąć (patrzrozdział „Orga...
Czyszczenie i pielęgnacja 95 Czyszczenie uszczelki drzwi Niebezpieczeństwo uszkodzeń przez nieprawidłowe czyszczenie.W przypadku potraktowania uszczel-ki drzwi olejami lub tłuszczami możesię ona stać porowata.Uszczelkę drzwi należy chronić przedolejami i tłuszczami. Uszczelkę drzwi należy regula...
Czyszczenie i pielęgnacja 96 Po wymianie filtra Active AirClean nale-ży zresetować wskazanie filtra ActiveAirClean poprzez tryb ustawień na wyświetlaczu (patrz rozdział „Pozo-stałe ustawienia“, punkt „Resetowanie Wskazanie filtra Active AirClean “). Nowy filtr Active AirClean (z ramką lubbez) ...
Co robić, gdy ... 97 Większość usterek i błędów, do których dochodzi podczas codziennego użytko-wania, można usunąć samodzielnie. W wielu przypadkach pozwoli to zaoszczędzićczas i koszty, ponieważ nie ma wówczas potrzeby wzywania serwisu. Poniższa tabela powinna być pomocna w ustaleniu przyczyn ewen...
Co robić, gdy ... 100 Komunikaty na wyświetlaczu Komunikat Przyczyna i postępowanie Rozlega się sygnałostrzegawczy i na wy-świetlaczu jest pokazy-wany komunikat Za- mknąć drzwi . Drzwi urządzenia są otwarte. Zamknąć drzwi urządzenia. Jeżeli sygnał ostrzegawczy będzie Państwu prze-szkadzał, można...
Co robić, gdy ... 101 Nie działa oświetlenie wnętrza Problem Przyczyna i postępowanie Nie działa oświetleniewnętrza. Urządzenie nie jest włączone. Włączyć urządzenie. Funkcja Tryb szabasowy jest włączona: Wskazanie temperatury jest wygaszone i na wyświetlaczu poka-zywany jest symbol . Tryb sz...
Przyczyny powstawania hałasu 102 Normalne od-głosy Skąd one się biorą? Wrrrrr ... Warczenie pochodzi z silnika (kompresora). Czasami może byćnieco głośniejsze, szczególnie podczas włączania się silnika. Bul, bul ... Bulgotanie, chlupotanie lub furczenie pochodzi od środka chłod-niczego, który przepł...
Serwis 103 Kontakt w przypadku wystą-pienia usterki W razie wystąpienia usterek, których niemożna usunąć samodzielnie, proszępowiadomić np. sprzedawcę Miele lubserwis Miele. Wizytę technika serwisowego Mielemożna zamówić online na stroniewww.miele.pl w zakładce Serwis. Dane kontaktowe serwisu Miele ...
Deklaracja zgodności 104 Niniejszym Miele oświadcza, że ta chło-dziarka spełnia wymagania Dyrektywy2014/53/WE. Pełny tekst deklaracji zgodności WEjest dostępny pod jednym z poniższychadresów internetowych: - Produkty, Pobieranie, na stronie www.miele.pl - Serwis, Materiały informacyjne, na stronie w...
Prawa autorskie i licencje 105 Do obsługi i sterowania urządzeniem Miele używa oprogramowania własnego luboprogramowania innych producentów, które nie jest objęte tzw. licencją open so-urce. Oprogramowanie i jego elementy są chronione prawem autorskim. W związ-ku z tym należy respektować prawa autor...
Other Miele Inne Manuals
-
Miele APWM 063 Instrukcja instalacji
-
Miele APWM 019 Instrukcja obsługi
-
Miele TT 86 Instrukcja obsługi
-
Miele UG 5010 Instrukcja instalacji
-
Miele UO 5010 Instrukcja instalacji
-
Miele E 473/2 Instrukcja obsługi
-
Miele FFK 01 Instrukcja instalacji
-
Miele APDR 002 Instrukcja obsługi
-
Miele DP [50Hz] Instrukcja instalacji
-
Miele APCL 005 Instrukcja instalacji
-
Miele PG 8583 CD [WW AD CM] Instrukcja obsługi
-
Miele PG 8583 CD [WW AD CM] Instrukcja instalacji
-
Miele PG 8583 [WW AD LD] Instrukcja obsługi
-
Miele PG 8583 [WW AD LD] Instrukcja instalacji
-
Miele PLW 8615 [EL] Instrukcja obsługi
-
Miele PLW 8615 [EL] Instrukcja instalacji
-
Miele PG 8504 [AD] Instrukcja obsługi
-
Miele PLW 8617 [EL/S TH] Instrukcja obsługi
-
Miele PLW 8617 [EL/S TH] Instrukcja instalacji
-
Miele PLW 8617 [EL/S RT] Instrukcja obsługi