Miele H 7464 BP - Instrukcje
Instrukcja obsługi Miele H 7464 BP
















































































































Podsumowanie
Spis treści 2 Wskazówki bezpieczeństwa i ostrzeżenia ............................................................... 6 Ochrona środowiska naturalnego ............................................................................. 14 Przegląd ...............................................................
Spis treści 5 Wołowina......................................................................................................................... 103 Cielęcina .......................................................................................................................... 104 Wieprzowina ......
Wskazówki bezpieczeństwa i ostrzeżenia 6 Ten piekarnik spełnia wymagania obowiązujących przepisów bez-pieczeństwa. Nieprawidłowe użytkowanie może jednak doprowa-dzić do wyrządzenia szkód osobowych i rzeczowych.Przed uruchomieniem urządzenia należy uważnie przeczytać in-strukcję użytkowania i montażu...
Wskazówki bezpieczeństwa i ostrzeżenia 7 Ze względu na szczególne wymagania (np. odnośnie temperatury, wilgotności, odporności chemicznej, ścieralności i wibracji) w komo- rze urządzenia są zamontowane specjalne elementy świetlne. Te spe- cjalne elementy świetlne mogą być używane wyłącznie do okre...
Wskazówki bezpieczeństwa i ostrzeżenia 8 Niebezpieczeństwo zranień o otwarte drzwiczki. Dopuszczalne ob- ciążenie drzwiczek wynosi maksymalnie 15 kg. Dzieci mogą się zranićo otwarte drzwiczki.Uniemożliwić dzieciom stawanie, siadanie lub wieszanie się naotwartych drzwiczkach urządzenia. Bezpieczeńs...
Wskazówki bezpieczeństwa i ostrzeżenia 10 Gdy piekarnik został zabudowany za frontem meblowym (np. drzwiczkami), nigdy nie należy zamykać frontu podczas korzystaniaz piekarnika. Za zamkniętym frontem meblowym gromadzi się ciepłoi wilgoć. W efekcie piekarnik, szafka i podłoga mogą zostać uszkodzo-n...
Wskazówki bezpieczeństwa i ostrzeżenia 12 Przy pasteryzacji i podgrzewaniu w zamkniętych puszkach powsta- je ciśnienie, które może je rozsadzić. Nie pasteryzować zamkniętychpuszek ani ich nie podgrzewać. Niebezpieczeństwo zranień o otwarte drzwiczki. O otwarte drzwiczki można się uderzyć lub pot...
Wskazówki bezpieczeństwa i ostrzeżenia 13 Prowadnice boczne mogą zostać zdemontowane (patrz rozdział „Czyszczenie i konserwacja“, punkt „Demontaż prowadnic bocznychz wysuwami FlexiClip“). Zamontować z powrotem prawidłowo pro-wadnice boczne. Zarysowania mogą doprowadzić do zniszczenia szyby drzwi...
Ochrona środowiska naturalnego 14 Utylizacja opakowania Opakowanie służy do manewrowaniai chroni urządzenie przed uszkodzeniamipodczas transportu. Materiały opakowa-niowe zostały specjalnie dobrane podkątem ochrony środowiska i technikiutylizacji i generalnie nadają się do po-nownego wykorzystania.Z...
Przegląd 15 Piekarnik a Elementy sterowania b Zamek drzwiczek c Grzałka grzania górnego/grilla d Otwory dla doprowadzenia pary e Rurka napełniania systemu wytwarzania pary f Gniazdo przyłączeniowe dla pieczeniomierza g Otwór zasysania dla dmuchawy z umieszczoną z tyłu grzałką pierścieniową h Prowadn...
Elementy sterowania 16 a Przycisk wł./wył. w zagłębieniu do włączania i wyłączania piekarnika b Złącze optyczne(tylko dla serwisu Miele) c Przycisk dotykowy do sterowania urządzeniem poprzezurządzenie mobilne d Przycisk dotykowy do wyzwalania uderzeń pary e Wyświetlaczdo wyświetlania godzin...
Elementy sterowania 17 Przycisk wł./wył. Przycisk wł./wył. jest umieszczony w zagłębieniu i reaguje na dotknięcie pal-cem.Za pomocą tego przycisku włącza sięi wyłącza piekarnik. Wyświetlacz Na wyświetlaczu pokazywana jest go-dzina lub różne informacje dotycząceprogramów, temperatur, czasów przy-r...
Elementy sterowania 18 Przyciski dotykowe pod wyświetlaczem Przycisk doty- kowy Funkcja Aby sterować piekarnikiem przez urządzenie mobilne, należy dys-ponować systemem Miele@home, włączyć ustawienie Zdalne sterowanie i nacisnąć ten przycisk dotykowy. Zaczyna się on wów- czas świecić na pomarańczow...
Elementy sterowania 19 Przycisk doty- kowy Funkcja OK Gdy funkcje na wyświetlaczu są jasno podświetlone, można jewywołać przyciskiem dotykowym OK . Następnie można zmienić wybraną funkcję. Naciśnięcie OK spowoduje zapamiętanie zmian. Gdy na wyświetlaczu pojawi się okienko informacyjne, należy jepotw...
Zasady obsługi 20 Piekarnik obsługuje się za pomocą ob-szaru nawigacyjnego z przyciskamistrzałek oraz i obszaru znajdujące- go się pośrodku . Gdy tylko pojawi się wartość, wskazów-ka lub ustawienie, które można potwier-dzić, przycisk dotykowy OK zaczyna się świecić na pomarańcz...
Zasady obsługi 21 Zmiana programu Podczas przyrządzania można przełą-czyć na inny program.Przycisk dotykowy dotychczas wybrane-go programu świeci się na pomarańczo-wo. Nacisnąć przycisk dotykowy nowegoprogramu lub funkcji. Zostaje wyświetlony zmieniony programi przynależna wartość proponowana.Przy...
Wyposażenie 22 Modele opisane w tej instrukcji użytko-wania i montażu są wymienione naokładce z tyłu. Tabliczka znamionowa Tabliczka znamionowa jest widoczna naramie frontowej przy otwartych drzwicz-kach.Znajduje się tam oznaczenie modelu,numer fabryczny oraz dane przyłącze-niowe (napięcie/częstotli...
Wyposażenie 23 Blacha do pieczenia, blacha uniwer-salna i ruszt z zabezpieczeniem przedwypadnięciem Blacha do pieczenia HBB 71: Blacha uniwersalna HUBB 71: Ruszt HBBR 72: Te elementy wyposażenia należy zawszewsuwać pomiędzy pręty jednego pozio-mu w prowadnicach bocznych.Wsuwać ruszt zawsze powierzch...
Wyposażenie 24 Montaż i demontaż wysuw FlexiClip Niebezpieczeństwo zranień przez gorące powierzchnie.Piekarnik rozgrzewa się w czasie pracy.Można się oparzyć o grzałki, komorę u-rządzenia i wyposażenie.Poczekać na ostygnięcie grzałek, ko-mory urządzenia i wyposażenia, za-nim przystąpi się do monta...
Wyposażenie 25 Perforowana blacha Gourmet do pie-czenia i AirFry HBBL 71 Drobna perforacja blachy Gourmet dopieczenia i AirFry udoskonala procesygotowania: - Przy przyrządzaniu wypieków ze świe- żego ciasta drożdżowego i twarogo-wo-olejowego, chleba i bułek przyru-mienienie od spodu jest lepsze.Rozw...
Wyposażenie 26 Głębokość: 22 cm Głębokość: 35 cm HUB 5000-M HUB 5001-M* HUB 5001-XL* HBD 60-22 HBD 60-35 * do indukcyjnych płyt grzewczych Pieczeniomierz Za pomocą pieczeniomierza można nad-zorować procesy temperaturowo (patrzrozdział „Pieczenie mięs“, punkt „Pie-czeniomierz“). Gdy korzysta się z ...
Wyposażenie 27 względów bezpieczeństwa. Drzwiczkisą odblokowywane dopiero wtedy,gdy temperatura w komorze urządze-nia opadnie poniżej 280 °C. Powierzchnie uszlachetnionepowłoką PerfectClean Powierzchnie uszlachetnione powłokąPerfectClean odznaczają się znakomi-tym efektem nieprzywierania i niezwykle...
Pierwsze uruchomienie 28 Miele@home Państwa piekarnik jest wyposażony wzintegrowany moduł Wi-Fi. Aby z niego korzystać, potrzebne są: - sieć Wi-Fi- aplikacja Miele- konto użytkownika Miele Konto użytkownika można utworzyćpoprzez aplikację Miele. Aplikacja Miele przeprowadzi Państwaprzez proces tworz...
Pierwsze uruchomienie 29 Ustawienia podstawowe Przy pierwszym uruchomieniu należydokonać poniższych ustawień. Te usta-wienia mogą zostać zmienione w póź-niejszym terminie (patrz rozdział „Usta-wienia“). Niebezpieczeństwo zranień przez gorące powierzchnie.Piekarnik rozgrzewa się w czasie pra-cy.Pie...
Ustawienia 32 Przegląd ustawień Punkt menu Możliwe ustawienia Język ... | deutsch | english | ... Lokalizacja Godzina Wskazania Wł. * | Wył. | wyłączenie nocne Format czasu 12-godz. | 24-godz. * Ustawianie DataOświetlenie Wł.„Wł.“ na 15 sekund * Wył. Wyświetlacz Jasność QuickTo...
Ustawienia 34 Wywoływanie menu „Ustawie-nia“ W menu Pozostałe | Ustawienia moż- na spersonalizować piekarnik, dopaso-wując ustawienia fabryczne do swoichpotrzeb. Wybrać Pozostałe . Wybrać Ustawienia . Wybrać żądane ustawienie. Teraz można sprawdzić lub zmienićustawienia. Ustawienia ...
Ustawienia 35 woduje włączenie oświetlenia w ko-morze urządzenia z powrotem na15 sekund. - Wył. Oświetlenie w komorze urządzeniajest wyłączone. Po wybraniu przyciskudotykowego oświetlenie w komo- rze urządzenia włączy się na 15 se-kund. Wyświetlacz Jasność Jasność wyświetlacza jest prezentowa-na ...
Ustawienia 36 Booster Funkcja Booster służy do szybkiego na- grzewania komory urządzenia. - Wł. Funkcja Booster jest automatycznie włą- czana podczas fazy nagrzewania progra-mu. Grzałka grzania górnego/grilla,grzałka pierścieniowa i dmuchawa rów-nocześnie rozgrzewają komorę urządze-nia do ustawionej...
Ustawienia 37 Zmienić temperaturę proponowaną. Potwierdzić za pomocą OK . Można również zmienić temperaturęproponowaną dla funkcji Utrzymywanie ciepła . Zalecenie pirolizy Tutaj można ustawić, czy zalecenie doprzeprowadzenia pirolizy będzie ( Wł. ) lub nie będzie ( Wył. ) wyświetlane. Przedłużen...
Ustawienia 38 Miele@home Piekarnik należy do urządzeń domo-wych zdolnych do komunikacji w sys-temie Miele@home. Piekarnik jest fa-brycznie wyposażony w moduł komu-nikacyjny Wi-Fi i może się komuniko-wać bezprzewodowo. Istnieje kilka możliwości, żeby połączyćpiekarnik ze swoją siecią Wi-Fi. Zaleca-my...
Ustawienia 39 Zdalne sterowanie Gdy na urządzeniu mobilnym została za-instalowana aplikacja Miele, dostępnyjest system Miele@home i uaktywnionajest funkcja zdalnego sterowania ( Wł. ), można zastosować funkcję MobileStarti np. wywołać wskazówki dotyczące od-bywającego się procesu lub zakończyćtrwają...
Ustawienia 40 - Nie wyłączać piekarnika podczas aktu- alizacji. W przeciwnym razie aktualiza-cja zostanie przerwana i nie będzie za-instalowana. - Niektóre aktualizacje oprogramowania mogą zostać przeprowadzone wyłącz-nie przez serwis Miele. Wersja oprogramowania Wersja oprogramowania jest przezna-c...
Minutnik 41 Korzystanie z funkcji Minutnik Minutnik można ustawić do nadzoro- wania oddzielnych procesów, np. do go-towania jajek.Minutnik można również wykorzystać,gdy ustawione są równocześnie czasyautomatycznego włączenia lub wyłącze-nia procesu przyrządzania (np. jako przy-pomnienie, żeby prz...
Menu główne i podmenu 42 Menu Wartość proponowa- na Zakres Programy Termonawiew Plus 160 °C 30–250 °C Grzanie górne i dolne 180 °C 30–280 °C Autopieczenie 160 °C 100–230 °C Intensywny 170 °C 50–250 °C Grill duży 240 °C 200–300 °C Grill z nawiewem 200 °C 100–260 °C Pieczenie P...
Wskazówki dotyczące oszczędzania energii 44 Procesy przyrządzania - W miarę możliwości do przyrządzania potraw należy korzystać z programówautomatycznych. - Wyjąć z komory urządzenia całe wy- posażenie, które nie będzie potrzebnepodczas procesu pieczenia. - Z reguły należy wybrać najniższą tem- pera...
Wskazówki dotyczące oszczędzania energii 45 Wykorzystanie ciepła resztko-wego - W przypadku procesów przyrządzania z temperaturami przekraczającymi140 °C i czasami przyrządzania dłuż-szymi niż 30 minut, na ok. 5 minutprzed końcem procesu można zredu-kować temperaturę do minimalnejmożliwej do ustawie...
Obsługa 46 Włączyć piekarnik. Pojawia się menu główne. Wsunąć potrawę do komory gotowa-nia. Wybrać żądany program. Wyświetlony zostaje program i tempe-ratura proponowana. Zmienić zaproponowaną temperaturę,jeśli potrzeba. Temperatura proponowana zostaniezaakceptowana w ciągu kilku sekund.Temp...
Obsługa 47 Potwierdzić za pomocą OK . Proces odbywa się dalej ze zmienionątemperaturą docelową. Ustawianie czasów przyrządzania Rezultaty przyrządzania mogą ulecpogorszeniu, jeśli pomiędzy wsunię-ciem potrawy do urządzenia i mo-mentem rozpoczęcia programu bę-dzie zbyt duży odstęp czasowy. Świe-że ...
Obsługa 49 - ciast i wypieków o krótkim czasie pie- czenia (do ok. 30 minut) oraz wrażli-wych ciast (np. biszkoptu) w progra-mie Grzanie górne i dolne (bez funk- cji Booster ) Booster Funkcja Booster służy do szybkiego na- grzewania komory urządzenia.W ramach ustawień fabrycznych tafunkcja jest ...
Obsługa 50 Wyświetlany jest komunikat Wsunąć po- trawę o z godziną. Komora urządzenia jest nagrzewana do ustawionej tempe-ratury. Wsunąć potrawę do komory urządze-nia, gdy tylko zostaną Państwo o topoproszeni. Potwierdzić za pomocą OK . Szybkie schładzanie Za pomocą funkcji Szybkie schładzanie m...
Obsługa 51 Jeśli potrzeba, potwierdzić komunikatza pomocą OK . Funkcje Utrzymywanie ciepła i Szybkie schładzanie są włączone. Po zakończeniu przyrządzania drzwiczki otwierają sięnieco automatycznie. Wentylator chło-dzący szybko schładza potrawę i komo-rę urządzenia do ustawionej wstępnietemperatur...
Pieczenie Plus 52 Państwa piekarnik jest wyposażony wsystem wytwarzania pary do wspomaga-nia procesów przyrządzania wilgocią. Przypieczeniu, smażeniu lub gotowaniu w pro-gramie Pieczenie Plus zoptymalizowa- ny dopływ pary i powietrza gwarantujerównomierne przyrządzenie i przyrumie-nienie.Wspomag...
Pieczenie Plus 53 Pojawia się wybór dla wyzwolenia ude-rzeń pary. Wybieranie uderzeń pary Jeśli piekarnik ma wyzwalać uderzeniepary automatycznie po zakończeniunagrzewania, należy wybrać Automa- tyczne uderzenie pary . Jeśli w określonym momencie ma zo-stać wyzwolone jedno lub kilka ude-rzeń par...
Pieczenie Plus 54 Zanurzyć rurkę do napełniania w na-czyniu z wodą kranową. Potwierdzić za pomocą OK . Rozpoczyna się proces zasysania.Ilość wody zassanej w rzeczywistości mo-że być mniejsza niż wymagana, tak żeresztka pozostaje w naczyniu. Proces zasysania można w każdejchwili wstrzymać i z pow...
Pieczenie Plus 55 Postępować tak samo, żeby wyzwolićkolejne uderzenia pary, gdy tylko zapa-li się przyciski dotykowy . Po ostatnim uderzeniu pary gaśnie przy-cisk dotykowy , wskazówka i na wy- świetlaczu. Dogotować potrawę do końca. Uderzenia pary sterow. czasowo Piekarnik wyzwala każde ...
Pieczenie Plus 56 Na koniec odparowywania wody reszt-kowej rozlega się sygnał i pojawia się ko-munikat Gotowe . Teraz można przeprowadzić proces go-towania z wybranym programem lubprogramem automatycznym ze wspo-maganiem wilgocią. Przy odparowywaniu wody resztkowejw komorze gotowania i na drzwiczkac...
Programy automatyczne 57 Liczne programy automatyczne prowa-dzą pewnie i komfortowo do uzyskaniaoptymalnych rezultatów gotowania. Kategorie W celu lepszej orientacji programy auto-matyczne są podzielone na katego- rie. Wystarczy wybrać program automa-tyczny pasujący do Państwa potrawy ipostępować...
Pozostałe zastosowania 58 W tym rozdziale znajdują się informacjedotyczące następujących zastosowań: - Rozmrażanie- Suszenie- Podgrzewanie naczyń- Wyrastanie ciasta drożdżowego- Utrzymywanie ciepła- Pieczenie delikatne- Pasteryzacja- Produkty głęboko mrożone/Dania go- towe Rozmrażanie Gdy mrożonka j...
Pozostałe zastosowania 59 W przypadku całego i przepołowione-go produktu do suszenia, czasy susze-nia ulegają przedłużeniu. Suszony pro-dukt [°C] [h] Owoce 60–70 2–8 Warzywa 55–65 4–12 Grzyby 45–50 5–10 Zioła* 30–35 4–8 Zastosowanie specjalne/Program, Temperatura, Czas suszeni...
Pozostałe zastosowania 60 Utrzymywanie ciepła Produkty spożywcze można utrzymywaćw cieple w komorze urządzenia przezwiele godzin. Aby zachować jakość produktów spo-żywczych, wybrać możliwie krótki czas. Wybrać Pozostałe . Wybrać Utrzymywanie ciepła . Wsunąć produkt spożywczy do utrzy-mywan...
Pozostałe zastosowania 61 Niebezpieczeństwo oparzeń przez gorące powierzchnie.Piekarnik rozgrzewa się w czasie pra-cy. Można się oparzyć o grzałki, ko-morę urządzenia i wyposażenie.Przy wsuwaniu lub wyjmowaniu gorą-cych potraw oraz przy manipulacji wgorącej komorze piekarnika należy za-kładać ręka...
Pozostałe zastosowania 62 / / Owoce –/– 30 °C 25–35 min Ogórki –/– 30 °C 25–30 min Czerwoneburaki 120 °C 30–40 min 30 °C 25–30 min Fasolka (zielo-na lub żółta) 120 °C 90–120 min 30 °C 25–30 min / temperatura i czas pasteryzacji, gdy tylko „perlenie“ stanie się widoczne / temperatura i czas...
Programy własne 63 Można utworzyć i zapamiętać do 20programów własnych. - Istnieje możliwość kombinacji nawet do 10 etapów programu, żeby dokład-nie opisać przebieg ulubionych lubczęsto używanych przepisów. W każ-dym etapie można w tym celu wybraćustawienia, takie jak np. program,temperatura i czas ...
Programy własne 64 Uruchamianie programów wła-snych Wsunąć potrawę do komory urządze-nia. Wybrać Pozostałe . Wybrać Programy własne . Wybrać żądany program. Wybrać Wykonaj . W zależności od ustawień programo-wych wyświetlane są następujące punk-ty menu: - Uruchomić teraz Program zostan...
Programy własne 65 Zmiana nazwy Wybrać Pozostałe . Wybrać Programy własne . Wybrać program, który ma zostaćzmieniony. Wybrać Zmiana nazwy . Zmienić nazwę programu. Wybrać . Gdy nazwa programu zostanie zmie-niona, wybrać Zapamiętywanie . Na wyświetlaczu pojawia się potwier-dzenie,...
Pieczenie wypieków 66 Delikatne traktowanie produktówspożywczych służy zdrowiu.Ciasta, pizzę, frytki itp. należy przyru-mienić wyłącznie na złoty kolor, a niepiec je na ciemny brąz. Porady dotyczące wypieków - Ustawić czas trwania programu. Pie- czenie wypieków nie powinno byćprogramowane ze zbyt du...
Pieczenie mięs 68 Porady dotyczące pieczeniamięs - Można stosować każde naczynie z materiału odpornego temperaturowo,jak np. brytfanna, garnek do pieczenia,forma szklana, rękaw lub torebka dopieczenia, garnek rzymski, blacha uni-wersalna, ruszt i/lub blacha do pie-czenia i grillowania ( jeśli występ...
Pieczenie mięs 70 Pieczeniomierz Za pomocą pieczeniomierza można do-kładnie nadzorować temperaturę proce-su. Sposób działania Metalową końcówkę pieczeniomierzanależy wbić całkowicie w potrawę, aż pouchwyt. W metalowej końcówce znaj-duje się czujnik temperatury, który mie-rzy temperaturę we wnętrzu p...
Pieczenie mięs 71 Stosowanie pieczeniomierza Wbić metalową końcówkę pieczenio-mierza całkowicie w potrawę, aż pouchwyt. Jeśli przyrządza się równocześnie kilkakawałków mięsa, pieczeniomierz należywbić w najgrubszy kawałek. Wsunąć potrawę do komory urządzenia. Włożyć wtyczkę pieczeniomierza dog...
Grillowanie 72 Niebezpieczeństwo zranień przez gorące powierzchnie.Gdy grilluje się przy otwartychdrzwiczkach, gorące powietrze z ko-mory urządzenia nie jest więcej auto-matycznie wyprowadzane przez wen-tylator chłodzący i schładzane. Ele-menty sterowania stają się gorące.Zamykać drzwiczki przy gr...
Grillowanie 73 Wybieranie czasu przyrządzania Płaskie plastry mięsa lub ryb grillowaćok. 6–8 minut na stronę.Zwrócić uwagę na to, żeby plastry by-ły podobnej grubości, tak żeby czasytrwania nie różniły się zbytnio międzysobą. Z reguły po upływie najkrótszego cza-su należy sprawdzić, czy potraw...
Czyszczenie i konserwacja 75 Zdemontować prowadnice bocznez wysuwami FlexiClip ( jeśli występują). Opuścić grzałkę grzania górnego/grilla. Usuwanie normalnych zabrudzeń Wokół komory urządzenia znajduje się,służąca jako uszczelnienie wobec szybydrzwiczek, delikatna uszczelka z włóknaszklanego, kt...
Czyszczenie i konserwacja 76 Czyszczenie komory urządzeniaz funkcją Piroliza Zamiast ręcznie, komorę urządzeniamożna wyczyścić za pomocą funkcji Piroliza . Przy czyszczeniu pirolitycznym komoragotowania jest nagrzewana do ponad400 °C. Istniejące zabrudzenia zostanąrozłożone przez wysoką temperat...
Czyszczenie i konserwacja 77 Niebezpieczeństwo zranień przez gorące powierzchnie.Przy czyszczeniu pirolitycznym pie-karnik rozgrzewa się dużo bardziej niżw normalnym trybie pracy.Proszę powstrzymać dzieci przed do-tykaniem piekarnika podczas czysz-czenia pirolitycznego. Wybrać Piroliza . W...
Czyszczenie i konserwacja 78 Niebezpieczeństwo zranień przez gorące powierzchnie.Po czyszczeniu pirolitycznym piekar-nik jest jeszcze bardzo gorący. Możnasię oparzyć o grzałki, komorę gotowa-nia i wyposażenie.Poczekać na ostygnięcie grzałek, ko-mory gotowania i wyposażenia, zanimprzystąpi się do u...
Czyszczenie i konserwacja 79 Przebieg procesu odkamieniania Uruchomiony proces odkamienianiamusi zostać przeprowadzony do koń-ca, ponieważ nie można go przerwać. Proces odkamieniania trwa ok. 90 minuti przebiega w kilku krokach: 1. Przygotowanie procesu odkamienia- nia 2. Zasysanie odkamieniacza3. F...
Czyszczenie i konserwacja 80 Proces zasysania można w każdejchwili wstrzymać i z powrotem konty-nuować, wybierając OK . Ilość odkamieniacza zassanego w rze-czywistości może być mniejsza niż wy-magana, tak że resztka pozostaje w na-czyniu.Pojawia się wskazówka, że proces zasy-sania został zakończony....
Czyszczenie i konserwacja 81 Niebezpieczeństwo zranień przez parę wodną.Para wodna może doprowadzić dosilnych oparzeń.Nie otwierać drzwiczek podczas od-parowywania wody resztkowej. Włącza się grzanie w komorze i wyświe-tlany jest czas odparowania wody reszt-kowej.Pokazywany czas jest automatycznie...
Czyszczenie i konserwacja 82 W przypadku nieprawidłowego zdej-mowania drzwiczek piekarnik zosta-nie uszkodzony.Nigdy nie ściągać drzwiczek poziomoz zaczepów, ponieważ uderzą one opiekarnik.Nigdy nie ściągać drzwiczek z zacze-pów za uchwyt drzwiczek, ponieważmoże się on odłamać. Zamknąć drzwiczki d...
Czyszczenie i konserwacja 83 Niebezpieczeństwo zranień przez składające się drzwiczki.Drzwiczki mogą się złożyć, gdy zosta-ną rozebrane w stanie zamontowa-nym.Zawsze zdjąć drzwiczki, zanim przy-stąpi się do ich rozbierania. Położyć drzwiczki zewnętrzną szybąna miękkiej podkładce (np. na ścierced...
Czyszczenie i konserwacja 84 Wyczyścić szyby drzwiczek i inne po-jedyncze elementy ciepłą wodą z do-datkiem płynu do mycia naczyń i czy-stą gąbczastą ściereczką lub czystą,wilgotną ściereczką mikrofazową. Wytrzeć elementy do sucha miękkimręcznikiem kuchennym. Następnie starannie złożyć drzwiczki...
Czyszczenie i konserwacja 85 Zakładanie drzwiczek Chwycić drzwiczki po obu stronachi nasadzić je na zaczepy zawiasów.Uważać, żeby nie przekrzywić przytym drzwiczek. Otworzyć całkowicie drzwiczki. Gdy nie zostaną zablokowane jarzmablokujące, drzwiczki mogą spaść z za-czepów i ulec uszkodzeniu.Bez...
Serwis 91 Na stronie www.miele.pl/serwis moż-na uzyskać informacje dotyczące sa-modzielnego usuwania usterek i częścizamiennych Miele. Kontakt w przypadku wystąpie-nia usterki W razie wystąpienia usterek, których niemożna usunąć samodzielnie, proszę po-wiadomić np. sprzedawcę Miele lub ser-wis Miele...
Instalacja *INSTALLATION* 92 Wymiary do zabudowy Wymiary podane są w mm. Zabudowa w szafce stojącej lub w szafce podblatowej Jeśli piekarnik ma zostać zabudowany pod płytą grzewczą, proszę przestrzegaćwskazówek dotyczących zabudowy płyty grzewczej, jak również wysokości zabu-dowy płyty grzewczej.
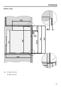
Instalacja *INSTALLATION* 94 Przyłącza i wentylacja a Widok z przodu b Przewód przyłączeniowy, długość = 1500 mm c Bez żadnych przyłączy w tym obszarze d Przekrój wentylacyjny min. 150 cm ²
Instalacja *INSTALLATION* 95 Zabudowa piekarnika Piekarnika należy używać wyłączniew stanie zabudowanym, żeby zagwa-rantować jego bezpieczną pracę. Do bezusterkowej pracy piekarnikwymaga wystarczającego dopływupowietrza chłodzącego. Wymaganepowietrze chłodzące nie może zostaćnadmiernie ogrzane przez...
Instalacja *INSTALLATION* 96 Podłączenie elektryczne Niebezpieczeństwo zranień! Nieprawidłowo przeprowadzone pra-ce instalacyjne i konserwacyjne oraznaprawy mogą być przyczyną poważ-nych zagrożeń dla użytkownika, zaktóre Miele nie ponosi odpowiedzial-ności. Podłączenie do sieci elektrycznej mo-że ...
Tabele ustawień 97 Ciasto ucierane Ciasto/wypiek (wyposażenie) [°C] [min] CF Muffiny (1 blacha) 150–160 – 2 25–35 – Muffiny (2 blachy) 150–160 – 1+3 30–40 3 – Babeczki* (1 blacha) 150 – 2 30–40 – 160 2 – 3 20–30 – Babeczki* (2 blachy) 150 2 – 1+3 25–35 – Ciasto piaskowe (ruszt, f...
Tabele ustawień 98 Ciasto zagniatane Ciasto/wypiek (wyposażenie) [°C] [min] CF Placuszki (1 blacha) 140–150 – 2 25–35 – 150–160 – 2 25–35 – Placuszki (2 blachy) 140–150 – 1+3 25–35 3 – Ciasteczka wyciskane* (1 blacha) 140 – 2 35–45 – 160 2 – 3 25–35 – Ciasteczka wyciskane* (2 bla...
Tabele ustawień 99 Ciasto drożdżowe Ciasto/wypiek (wyposażenie) [°C] [min] CF Gugelhupf (ruszt, forma do babki, 24 cm) 1 150–160 – 2 50–60 – 160–170 – 2 50–60 – Strucla bożonarodzeniowa (1 blacha) 150–160 – 2 55–65 – 160–170 2 55–65 – Ciasto z kruszonką z/bez owoców(1 blacha) ...
Tabele ustawień 100 Ciasto serowo-olejowe Ciasto/wypiek (wyposażenie) [°C] [min] CF Placek owocowy (1 blacha) 160–170 2 45–55 170–180 3 45–55 Kieszonki jabłkowe/ślimaki rodzynko-we (1 blacha) 160–170 – 3 25–35 Kieszonki jabłkowe/ślimaki rodzynko-we (2 blachy) 150–160 1+...
Tabele ustawień 101 Ciasto ptysiowe, ciasto francuskie, wypieki z białka Ciasto/wypiek (wyposażenie) [°C] [min] CF Ptysie (1 blacha) 160–170 – 2 30–40 160–170 – 2 25–35 1 2 Kieszonki z ciasta francuskiego (1 bla-cha) 180–190 – 2 20–30 – Kieszonki z ciasta francuskiego(2 blachy) ...
Tabele ustawień 102 Pikantne przekąski Potrawa (wyposażenie) [°C] [min] CF Kruche ciasto pikantne (1 blacha) 220–230 1 1 30–40 180–190 – 1 45–55 Ciasto cebulowe (1 blacha) 180–190 1 2 25–35 170–180 – 2 30–40 Pizza, ciasto drożdżowe (1 blacha) 170–180 2 25–35 210...
Tabele ustawień 103 Wołowina Potrawa (wyposażenie) [°C] [min] [°C] Duszona pieczeń wołowa, ok. 1 kg(brytfanna z pokrywą) 2 150–160 3 2 120–130 6 – 2 170–180 3 2 120–130 6 – 180–190 – 2 160–180 7 – Polędwica wołowa, ok. 1 kg (blachauniwersalna) 2 180–190 3 2 25–60 45–75 Polę...
Tabele ustawień 104 Cielęcina Potrawa (wyposażenie) [°C] [min] [°C] Duszona pieczeń cielęca, ok. 1,5 kg(brytfanna z pokrywą) 2 160–170 3 2 120–130 5 – 2 170–180 3 2 120–130 5 – Polędwica cielęca, ok. 1 kg (blachauniwersalna) 2 160–170 3 2 30–60 45–75 Polędwica cielęca „rare“,...
Tabele ustawień 105 Wieprzowina Potrawa (wyposażenie) [°C] [min] [°C] Pieczeń wieprzowa/karkówka,ok. 1 kg (brytfanna z pokrywą) 160–170 2 130–140 6 80–90 170–180 2 130–140 6 80–90 Pieczeń wieprzowa z tłuszczykiem,ok. 2 kg (brytfanna) 180–190 2 130–150 7,8,9 80–90 190–200 ...
Tabele ustawień 106 Jagnięcina, dziczyzna Potrawa (wyposażenie) [°C] [min] [°C] Udziec jagnięcy z kością, ok. 1,5 kg(brytfanna z pokrywą) 170–180 – 2 100–120 4 64–82 Karkówka jagnięca bez kości (blachauniwersalna) 1 180–190 2 2 10–20 53–80 Karkówka jagnięca bez kości (ruszti blacha...
Informacje dla instytutów testowych 108 Potrawy testowe wg EN 60350-1 Potrawy testowe (wyposażenie) [°C] [min] CF Babeczki (1 blacha do pieczenia 1 ) 150 – 2 30–40 – 160 4 – 3 20–30 – Babeczki (2 blachy do pieczenia 1 ) 150 4 – 1+3 25–35 – Ciasteczka wyciskane (1 blacha dopieczenia 1...
Informacje dla instytutów testowych 109 Klasa efektywności energetycznej Ustalenie klasy efektywności energetycznej odbywa się wg EN 60350-1. Klasa efektywności energetycznej: A+Przy przeprowadzaniu pomiaru należy przestrzegać następujących wskazówek: - Pomiar odbywa się w programie Termonawiew Eco ...
Dane techniczne 110 Deklaracja zgodności Niniejszym Miele oświadcza, że ten piekarnik spełnia wymagania Dyrektywy2014/53/WE. Pełny tekst deklaracji zgodności WE jest dostępny pod jednym z poniższych adre-sów internetowych: - Produkty, Pobieranie, na stronie www.miele.pl- Serwis, Materiały informacyj...
Other Miele Inne Manuals
-
Miele APWM 063 Instrukcja instalacji
-
Miele APWM 019 Instrukcja obsługi
-
Miele TT 86 Instrukcja obsługi
-
Miele UG 5010 Instrukcja instalacji
-
Miele UO 5010 Instrukcja instalacji
-
Miele E 473/2 Instrukcja obsługi
-
Miele FFK 01 Instrukcja instalacji
-
Miele APDR 002 Instrukcja obsługi
-
Miele DP [50Hz] Instrukcja instalacji
-
Miele APCL 005 Instrukcja instalacji
-
Miele PG 8583 CD [WW AD CM] Instrukcja obsługi
-
Miele PG 8583 CD [WW AD CM] Instrukcja instalacji
-
Miele PG 8583 [WW AD LD] Instrukcja obsługi
-
Miele PG 8583 [WW AD LD] Instrukcja instalacji
-
Miele PLW 8615 [EL] Instrukcja obsługi
-
Miele PLW 8615 [EL] Instrukcja instalacji
-
Miele PG 8504 [AD] Instrukcja obsługi
-
Miele PLW 8617 [EL/S TH] Instrukcja obsługi
-
Miele PLW 8617 [EL/S TH] Instrukcja instalacji
-
Miele PLW 8617 [EL/S RT] Instrukcja obsługi