Miele DAH 4980 125 Gala Ed - Instrukcje

model-name

Miele DAH 4980 125 Gala Ed – Instrukcja obsługi, Instrukcja instalacji w formacie PDF online.

1 Page 1
2 Page 2
3 Page 3
4 Page 4
5 Page 5
6 Page 6
7 Page 7
8 Page 8
9 Page 9
10 Page 10
11 Page 11
12 Page 12
13 Page 13
14 Page 14
15 Page 15
16 Page 16
17 Page 17
18 Page 18
19 Page 19
20 Page 20
21 Page 21
22 Page 22
23 Page 23
24 Page 24
25 Page 25
26 Page 26
27 Page 27
28 Page 28
29 Page 29
30 Page 30
31 Page 31
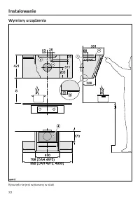
32 Page 32
33 Page 33
34 Page 34
35 Page 35
36 Page 36
37 Page 37
38 Page 38
39 Page 39
40 Page 40
41 Page 41
42 Page 42
43 Page 43
44 Page 44

Podsumowanie

Strona 2 - Spis treści; Wskazówki bezpieczeństwa i ostrzeżenia

Spis treści 2 Wskazówki bezpieczeństwa i ostrzeżenia ............................................................... 4 Odpowiedzialność i ochrona środowiska naturalnego ......................................... 11 Wprowadzenie ............................................................................

Strona 4 - Użytkowanie zgodne z przeznaczeniem

Wskazówki bezpieczeństwa i ostrzeżenia 4 Ten wyciąg kuchenny spełnia wymagania obowiązujących przepi-sów bezpieczeństwa. Nieprawidłowe użytkowanie może jednak do-prowadzić do wyrządzenia szkód osobowych i rzeczowych.Przed uruchomieniem urządzenia należy uważnie przeczytać instruk-cję użytkowania i m...

Strona 5 - Dzieci w gospodarstwie domowym

Wskazówki bezpieczeństwa i ostrzeżenia 5 Dzieci w gospodarstwie domowym  Dzieci poniżej 8 roku życia należy trzymać z daleka od wyciągu ku- chennego, chyba że są pod stałym nadzorem.  Dzieciom powyżej 8 roku życia wolno używać wyciągu bez nadzoru tylko wtedy, gdy jego obsługa została im objaśniona...

1 Page 1
2 Page 2
3 Page 3
4 Page 4
5 Page 5
6 Page 6
7 Page 7
8 Page 8
9 Page 9
10 Page 10
11 Page 11
12 Page 12
13 Page 13
14 Page 14
15 Page 15
16 Page 16
17 Page 17
18 Page 18
19 Page 19
20 Page 20
21 Page 21
22 Page 22
23 Page 23
24 Page 24
25 Page 25
26 Page 26
27 Page 27
28 Page 28
29 Page 29
30 Page 30
31 Page 31
32 Page 32

Other Miele Inne Manuals