Strona 2 - Spis treści; Wskazówki dotyczące planu instalacyjnego
                                                                                                                        Spis treści 2 Wskazówki dotyczące planu instalacyjnego ................................................................ 3 Wymiary urządzenia ........................................................................................................ 4 Wskazówki instalacyjne ................................
                                                                                                             
                                                                                            
                                    Strona 5 - Widok z boku
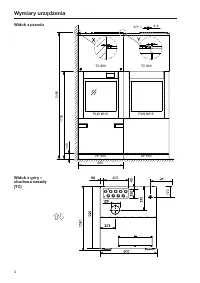
                                                                                                                        Wymiary urządzenia 5 Widok z boku RP 900 PLW 8615 TC 900 Widok z góry – cokół (FP) 1 2 380 380 298 184 896 136 47 70 25 900 990  Odpływ wanny podłogo-wej Kierunek załadunku/rozła-dunku  Odpływ kąpieli myjącej
                                                                                                             
                                                                                            
                                    Strona 6 - Wskazówki instalacyjne; Ustawianie
                                                                                                                        Wskazówki instalacyjne 6 Ustawianie Cokół (FP) Do ustawienia urządzenia myjącego jest wymagany cokół. Cokół jestwyposażony w nóżki o regulowanej wysokości i wannę ociekową, np.na wodę kondensacyjną. Cokół przesuwny(RP) Jeśli urządzenie myjące zostanie ustawione tyłem do ściany, należy jezamontować n...
                                                                                                             
                                                                                            
                                    Strona 7 - Przewody zasilające
                                                                                                                        Wskazówki instalacyjne 7 Przewody zasilające Przyłącza dla przewodów zasilających znajdują się na urządzeniu my-jącym nad obudową nasady. Przewody doprowadzające po stronie klienta oraz przyłącze powie-trza wylotowego muszą się kończyć na wysokości 2650 mm nadgórną krawędzią gotowej podłogi, żeby mo...
                                                                                                             
                                                                                            
                                    Strona 9 - Podłączenie elektryczne; Przyłącze stałe
                                                                                                                        Wskazówki instalacyjne 9 Podłączenie elektryczne Wszystkie prace dotyczące przyłącza elektrycznego mogą być wyko-nywane wyłącznie przez serwis Miele, autoryzowanego przedstawi-ciela firmy Miele lub wykwalifikowanego elektrotechnika.Instalacja urządzenia myjącego musi odpowiadać kategorii pomiaro-wej...
                                                                                                             
                                                                                            
                                    Strona 10 - Przyłącze sprężonego powietrza
                                                                                                                        Wskazówki instalacyjne 10 Przyłącze pary (opcjonalnie) Urządzenia myjące z podwójnym grzaniem wykorzystującym paręi prąd elektryczny (EL/S) muszą być podłączone do suchej pary prze-mysłowej. Węże dla pary i kondensatu można wyciągnąć z nasady naok. 300 mm. Po stronie klienta w przewodzie parowym mus...
                                                                                                             
                                                                                            
                                    Strona 11 - Podłączenie do sieci; Opis
                                                                                                                        Wskazówki instalacyjne 11 Podłączenie do sieci Urządzenie myjące jest wyposażone w złącze typu Ethernet. Złączesieciowe RJ45 znajduje się w środku nasady nad komorą mycia.Po stronie klienta wymagane jest przyłącze sieciowe nad urządze-niem myjącym. W przypadku równoległego układania kabla sieciowe-g...
                                                                                                             
                                                                                            
                                    Strona 12 - Przyłącze wodne; Dopływ wody
                                                                                                                        Wskazówki instalacyjne 12 Przyłącze wodne Dopływ wody Urządzenie myjące należy podłączać wyłącznie do całkowicie od-powietrzonej sieci wodociągowej.Krótkotrwały wzrost ciśnienia wody może spowodować uszkodze-nie elementów urządzenia myjącego. Jakość wody zasilającej musi odpowiadać zaleceniom dla wo...
                                                                                                             
                                                                                            
                                    Strona 13 - Odpływ wody
                                                                                                                        Wskazówki instalacyjne 13 Odpływ wody Woda odpływowa musi być zbierana przez odpowiednio zwymiaro-wany przewód zbiorczy ≥ DN 100 ze spadkiem. Przewody kanalizacyjne muszą być odporne na temperaturę do conajmniej 94 °C. Zainstalować syfon po stronie klienta. W przypadku szeregowej instalacji kilku ur...
                                                                                                             
                                                                                            
                                    Strona 14 - Szczegółowy widok z przodu – obudowa nasady
                                                                                                                        Wskazówki instalacyjne 14 Pompa spustowa(DP) (opcjonalnie) Urządzenie myjące może być wyposażone w pompę spustową. Pom-pa spustowa pompuje kąpiel myjącą do odpływu podłogowego lubprzewodu kanalizacyjnego na suficie. Maksymalna wysokość odpom-powywania wynosi 3000 mm. ≥ DN 100 ≥ 155 Kierunek zała-dun...
                                                                                                             
                                                                                            
                                    Strona 15 - Przyłącze wylotowe; jest ciągły strumień przepływu o wielkości 350 m
                                                                                                                        Wskazówki instalacyjne 15 Przyłącze wylotowe Myjnia musi być podłączona do systemu wentylacyjnego lub klimaty-zacyjnego. Podczas pracy na każde urządzenie myjące wymagany jest ciągły strumień przepływu o wielkości 350 m 3 /h dla przyłącza wy- lotowego. Odpowiednio do ilości powietrza odprowadzanego ...
                                                                                                             
                                                                                            
                                    Strona 17 - Moduł przyłączeniowy; Wejścia
                                                                                                                        Wskazówki instalacyjne 17 Moduł przyłączeniowy Myjnia jest wyposażona w moduł przyłączeniowy, którego bezpoten-cjałowe wejścia i wyjścia mogą być wykorzystywane do odczytywa-nia stanów roboczych i sterowania zewnętrznymi komponentami. Mo-duł przyłączeniowy zawiera 3 wtyczki, wtyczkę 5 (żółta) z 4 we...
                                                                                                             
                                                                                            
                                    Strona 18 - wyjścia bezpotencjałowe
                                                                                                                        Wskazówki instalacyjne 18 wyjścia bezpotencjałowe Parametr Styk jest aktywny,... Wył. – Suszenie alktywne gdy agregat suszący jest aktywny Program trwa podczas trwania programu Praca gdy urządzenie jest włączone Usterka gdy wystąpi usterka Status drzwi - strona załad. podczas otwierania drzwi po str...
                                                                                                             
                                                                                            
                                    Strona 19 - Dane techniczne; Wymiary; Wariant; Przyłącze elektryczne
                                                                                                                        Dane techniczne 19 Wymiary Wysokość wraz z cokołem 1770 mm Wysokość wraz z cokołem i obudową nasady 2495 mm Szerokość 900 mm Głębokość 990 mm Ciężar Wariant PLW 8615 EL Ciężar netto wraz z cokołem i obudową nasady 452 kg Waga netto plus EL/S, DU, SC, CT 624 kg Ciężar roboczy 800 kg Największe obciąż...
                                                                                                             
                                                                                            
                                    Strona 20 - Jakość; Powietrze sprężone techniczne
                                                                                                                        Dane techniczne 20 Przyłącze pary (opcjonalnie) Jakość Przemysłowa para wodnasucha Ciśnienie pary 250–1000 kPa Wydajność znamionowa dla przewodu pary i kondensatu 50 kg/h Przewód parowy, po stronie klienta z zaworem odcinającym,gwint zewnętrzny z uszczelnieniem płaskim 3/4" Przewód kondensatu, p...
                                                                                                             
                                                                                            
                                    Strona 21 - Woda dejonizowana
                                                                                                                        Dane techniczne 21 Dopływ wody Przyłącza wodne - woda zimna - woda ciepła - Woda dejonizowana 2 1 2 Temperatura wody - woda zimna - woda ciepła - Woda dejonizowana 5–20 °C 5–65 °C 5–65 °C Przyłącze po stronie klienta z zaworem odcinającymgwint zewnętrzny z uszczelnieniem płaskim 3/4" Ciśnienie w...
                                                                                                             
                                                                                            
                                    Strona 22 - Wylot powietrza
                                                                                                                        Dane techniczne 22 Pompa spustowa (DP) (opcjonalnie) Temperatura wody maks. 94 °C Chwilowa wielkość przepływu maks. 162 l/min Wysokość odpompowywania min. 200 mm Wysokość odpompowywania maks. 3000 mm Średnica wewnętrzna węża ( Ø ) 22 mm Przewód odpływowy ≥ DN 100 Obieg chłodzący* (opcjonalnie) Moc c...
                                                                                                             
                                                                                            
                                    Strona 23 - Warunki użytkowania; Emisja ciepła; Warunki składowania i transportowania; Wymiary dostawcze wraz z paletą transportową
                                                                                                                        Dane techniczne 23 Warunki użytkowania Temperatura otoczenia 5–40 °C Wilgotność względna:minimalnamaksymalna dla temperatur do 31 °Cliniowo malejąca dla temperatur do 40 °C 10%80%50% Wysokość nad poziomem morza do maksymalnie 1500 m Wartości emisyjne Emisja ciepła Strona załadunkowa/rozładunkowa 600...