Strona 2 - Spis treści; Wskazówki bezpieczeństwa i ostrzeżenia
Spis treści 2 Wskazówki bezpieczeństwa i ostrzeżenia ............................................................... 4 Odpowiedzialność i ochrona środowiska naturalnego ......................................... 11 Wprowadzenie ............................................................................
Strona 4 - Użytkowanie zgodne z przeznaczeniem
Wskazówki bezpieczeństwa i ostrzeżenia 4 Ten wyciąg kuchenny spełnia wymagania obowiązujących przepi-sów bezpieczeństwa. Nieprawidłowe użytkowanie może jednak do-prowadzić do wyrządzenia szkód osobowych i rzeczowych.Przed uruchomieniem urządzenia należy uważnie przeczytać instruk-cję użytkowania i m...
Strona 5 - Dzieci w gospodarstwie domowym
Wskazówki bezpieczeństwa i ostrzeżenia 5 Dzieci w gospodarstwie domowym Dzieci poniżej 8 roku życia należy trzymać z daleka od wyciągu ku- chennego, chyba że są pod stałym nadzorem. Dzieciom powyżej 8 roku życia wolno używać wyciągu bez nadzoru tylko wtedy, gdy jego obsługa została im objaśniona...
Strona 7 - Uszkodzony przewód zasilający może zostać wymieniony wyłącz-
Wskazówki bezpieczeństwa i ostrzeżenia 7 Uszkodzony przewód zasilający może zostać wymieniony wyłącz- nie przez wykwalifikowanego specjalistę. Źródła światła są zainstalowane w oświetleniu na stałe. Wymiana może zostać dokonana wyłącznie przez fachowca autoryzowanegoprzez firmę Miele lub serwis ...
Strona 8 - Prawidłowe użytkowanie
Wskazówki bezpieczeństwa i ostrzeżenia 8 Bezpieczna eksploatacja jest możliwa, gdy przy jednoczesnymużytkowaniu wyciągu i paleniska pobierającego powietrze z otocze-nia nie zostaje osiągnięte podciśnienie większe niż 4 Pa(0,04 mbar), dzięki czemu unika się ponownego zasysania spalin zpaleniska. Możn...
Strona 9 - Prawidłowa instalacja
Wskazówki bezpieczeństwa i ostrzeżenia 9 Woda kondensacyjna może doprowadzić do wystąpienia szkód ko- rozyjnych w wyciągu.Włączać wyciąg zawsze wtedy, gdy korzysta się z miejsca do gotowa-nia, żeby uniknąć zbierania wody kondensacyjnej. Przegrzane oleje i tłuszcze mogą się same zapalić i w ten s...
Strona 10 - Czyszczenie i konserwacja
Wskazówki bezpieczeństwa i ostrzeżenia 10 Elementy z ostrymi krawędziami mogą doprowadzić do zranień. Przy montażu i instalacji nosić rękawice, które zapewniają ochronęprzed przecięciem. Do ułożenia przewodu wylotowego można stosować wyłącznie ru- ry lub węże z materiałów niepalnych. Są one dost...
Strona 11 - Odpowiedzialność i ochrona środowiska naturalnego; Utylizacja opakowania
Odpowiedzialność i ochrona środowiska naturalnego 11 Utylizacja opakowania Opakowanie służy do manewrowaniai chroni urządzenie przed uszkodzeniamipodczas transportu. Materiały opakowa-niowe zostały specjalnie dobrane podkątem ochrony środowiska i technikiutylizacji i generalnie nadają się do po-nown...
Strona 13 - Komponenty; Filtr tłuszczu
Wprowadzenie 13 a Komin- wyposażenie dodatkowe- tylko w trybie otwartego obiegu po-wietrza b Filtr zapachów- jednorazowy lub z możliwością re-generacji- wyposażenie dodatkowe dla trybuzamkniętego obiegu powietrza c Elementy obsługi d Okap e Filtry tłuszczu f Taca ociekowa g Oświetlenie miejsca do go...
Strona 14 - Oświetlenie miejsca do gotowania; Funkcje; Tryb otwartego obiegu powietrza; do; Funkcja opóźnionego wyłączania
Wprowadzenie 14 Oświetlenie miejsca do gotowania Oświetlenie miejsca do gotowania moż-na włączać i wyłączać oraz ściemniaći rozjaśniać niezależnie od wentylatora.Gdy korzysta się z Miele@home, po-przez aplikację Miele można dostoso-wać temperaturę światła oświetlenia ku-chennego (Miele DynamicWhite)...
Strona 15 - Licznik czasu pracy; - Jeśli wybrany jest poziom Booster
Wprowadzenie 15 Licznik czasu pracy Wyciąg zapamiętuje czas, w jakim jestw użyciu.Gdy świeci się symbol filtra tłuszczu , należy wyczyścić filtry tłuszczu.Gdy świeci się symbol filtra zapa-chów , należy wymienić filtr zapa- chów lub go zregenerować, gdy jest dotego przeznaczony.Okresy licznika...
Strona 16 - Pierwsze uruchomienie; Łączenie z Miele@home; Dostępność Miele@home
Pierwsze uruchomienie 16 Wybór otwartego lub zamknię-tego obiegu powietrza Wyciąg kuchenny jest przeznaczony dopracy w trybie otwartego i zamknięte-go obiegu powietrza. Wydajność wen-tylatora zostaje dopasowana do wy-branego trybu pracy. Fabrycznie usta-wiony jest tryb zamkniętego obiegupowietrza. D...
Strona 17 - Łączenie przez aplikację
Pierwsze uruchomienie 17 Łączenie przez aplikację Połączenie sieciowe można utworzyć zapomocą aplikacji Miele. Zainstalować aplikację Miele na swo-im mobilnym urządzeniu końcowym. Do zalogowania będą potrzebne: 1. hasło domowej sieci WiFi2. hasło posiadanego wyciągu W przypadku hasła wyciągu chodz...
Strona 18 - oraz
Pierwsze uruchomienie 18 Opuścić tryb wylogowywania na wy-ciągu przez naciśnięcie przyciskuopóźnionego wyłączania . Wszystkie połączenia są rozłączone.Można utworzyć nowe połączenie. Tworzenie połączenia Con@cti-vity Aktywacja Con@ctivity 3.0 poprzezdomową sieć Wi-Fi Warunek wstępny: - domowa s...
Strona 19 - się symbole filtra tłuszczu
Pierwsze uruchomienie 19 Logowanie pilota zdalnego ste-rowania Miele DARC 7 stanowi wyposażenie do-datkowe. Nacisnąć na wyciągu przycisk wł./wył. . Wszystkie symbole zapalają się ze zre-dukowaną jasnością. Przytrzymać naciśnięty przycisk opóź-nionego wyłączania , aż zaświecą się symbole fi...
Strona 20 - następnie na poziomie; Smażenie z funkcją Con@ctivity; przycisku
Obsługa (automatyczna) 20 Gotowanie z funkcją Con@ctivi-ty na elektrycznej płycie grzejnej Włączyć miejsce do gotowania na do-wolnym poziomie mocy. Włącza się oświetlenie miejsca do goto-wania.Po kilku sekundach włącza się wentyla-tor, najpierw na chwilę na poziomie 2 , następnie na poziomie 1 ....
Strona 21 - Powrót do trybu automatycznego; - Wybrany ręcznie poziom wydajności; przed
Obsługa (automatyczna) 21 Tymczasowe opuszczanie trybuautomatycznego Tryb automatyczny można tymczasowoopuścić: Wybrać ręcznie inny poziom wentyla-tora, lub Wyłączyć ręcznie wyciąg kuchenny,lub Uaktywnić funkcję opóźnionego wyłą-czania , lub Dokonać obsługi oświetlenia miejscado gotowania ...
Strona 23 - Nacisnąć przycisk oświetlenia
Obsługa (ręczna) 23 Włączanie oświetlenia miejscado gotowania Nacisnąć przycisk wł./wył. . Wszystkie symbole zapalają się ze zre-dukowaną jasnością. Nacisnąć krótko przycisk oświetle-nia . Oświetlenie włącza się z maksymalnąjasnością. Zapalają się wszystkie 3 seg-menty obok przycisku oświe...
Strona 24 - Dopasowywanie ustawień
Dopasowywanie ustawień 24 Okresy licznika czasu pracy fil-tra tłuszczu Fabrycznie okres czyszczenia jest usta-wiony na 30 godzin. - Krótszy okres 20 godzin ma sens, gdy dużo się smaży. - Gdy gotuje się tylko okazjonalnie, krót- szy okres również jest rozsądny. Dziękitemu unika się utwardzania zgroma...
Strona 26 - Wskazówki dotyczące oszczędzania energii; - Przy gotowaniu proszę się zatroszczyć
Wskazówki dotyczące oszczędzania energii 26 Ten wyciąg kuchenny pracuje bardzowydajnie i energooszczędnie. Przestrze-ganie następujących zasad pomaga woszczędnym użytkowaniu: - Przy gotowaniu proszę się zatroszczyć o dobrą wentylację kuchni. Jeśli w try-bie otwartego obiegu powietrza niedopływa wyst...
Strona 27 - Przed każdym zabiegiem czysz-; Czyszczenie obudowy; - środków czyszczących zawierających; Filtry tłuszczu; Okres czyszczenia filtrów tłuszczu; jeszcze się nie świeci.; Otwieranie okapu; Okap jest mocowany przez magnesy.
Czyszczenie i konserwacja 27 Przed każdym zabiegiem czysz- czenia i konserwacji odłączyć wyciągod sieci elektrycznej (patrz rozdział„Wskazówki bezpieczeństwa i ostrze-żenia“). Czyszczenie obudowy Wyczyścić wszystkie powierzchniei elementy obsługi gąbczastą ście-reczką, płynem do mycia naczyń i c...
Strona 28 - Wyjmowanie filtrów tłuszczu; Spadający filtr może doprowa-; Czyszczenie wanienki ociekowej; pienne
Czyszczenie i konserwacja 28 Wyjmowanie filtrów tłuszczu Spadający filtr może doprowa- dzić do uszkodzeń filtra i miejsca dogotowania.Przy manipulacji należy pewnie trzy-mać filtr w dłoni. Otworzyć blokadę przedniego filtratłuszczu, przesunąć filtr tłuszczu nie-co do góry i wyjąć go do przodu. ...
Strona 29 - Zakładanie filtrów tłuszczu; Założyć filtry tłuszczu.; Zamykanie okapu; przez; Wymiana filtrów tłuszczu
Czyszczenie i konserwacja 29 Wskazówki dotyczące czyszczeniaw zmywarce do naczyń Wysokie temperatury mogą spowodo-wać, że filtry tłuszczu staną się niezdat-ne do użytku, np. przez zdeformowanie.Wybrać program, który nie przekraczazalecanej temperatury.Zwrócić również uwagę na wskazówkiw instrukcji u...
Strona 30 - Filtr zapachów; Okres wymiany filtra zapachów; Wyjąć filtr zapachów z opakowania.; Utylizacja filtra zapachów
Czyszczenie i konserwacja 30 Filtr zapachów Okres wymiany filtra zapachów Filtr zapachów należy wymieniać za-wsze wtedy, gdy substancje zapachowenie są już wiązane w wystarczającymstopniu.Po upływie czasu pracy 180 godzin za-palenie symbolu filtra zapachów przypomina o tym, żeby wymienić filtrzap...
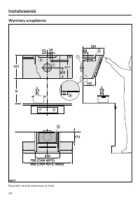
Strona 31 - Instalowanie; Przed instalacją
Instalowanie 31 Przed instalacją Przed instalacją należy zapoznać się z wszystkimi zaleceniami za-mieszczonymi w niniejszym rozdzialeoraz w rozdziale „Wskazówki bezpie-czeństwa i ostrzeżenia“. Usuwanie folii ochronnej Dla ochrony przed szkodami transporto-wymi elementy obudowy są zabezpie-czone fo...
Strona 34 - Zalecenia montażowe; - Przy dokonywaniu wyboru wysokości
Instalowanie 34 Zalecenia montażowe - Przy dokonywaniu wyboru wysokości montażu należy uwzględnić wzrostużytkowników. Wysokość montażupowinna umożliwiać im swobodnąpracę pod wyciągiem oraz optymalnąobsługę wyciągu kuchennego. - Proszę pamiętać, że skuteczność wy- chwytywania oparów pogarsza sięwraz ...
Strona 35 - Przewód wylotowy; Przy jednoczesnym działaniu wy-; Komin wylotowy
Instalowanie 35 Przewód wylotowy Przy jednoczesnym działaniu wy- ciągu wraz z paleniskami pobierający-mi powietrze z pomieszczenia zacho-dzi szczególnie duże niebezpieczeń-stwo zatrucia!Proszę bezwzględnie przestrzegaćzaleceń zamieszczonych w rozdziale„Wskazówki bezpieczeństwa i ostrze-żenia“.W ra...
Strona 36 - Woda kondensacyjna
Instalowanie 36 Woda kondensacyjna Gdy przewód wylotowy jest poprowa-dzony np. przez zimne pomieszczenialub poddasza, ze względu na różnicętemperatur w przewodzie wylotowymmoże się tworzyć woda kondensacyjna.Aby zmniejszyć różnicę temperatur, na-leży zaizolować przewód wylotowy.Gdy przewód wylotowy ...
Strona 37 - Podłączenie elektryczne; Zagrożenie pożarowe przez prze-
Instalowanie 37 Podłączenie elektryczne Wyciąg kuchenny jest seryjnie wyposa-żony we wtyczkę do podłączenia dogniazda ochronnego.Jeśli gniazdo nie jest swobodnie dostęp-ne lub przewidziane zostało przyłączestałe, proszę się upewnić, że po stronieinstalacji dostępne jest urządzenie roz-łączające wszy...
Strona 38 - Serwis; Pozycja tabliczki znamionowej
Serwis 38 Na stronie www.miele.pl/serwis moż-na uzyskać informacje dotyczące sa-modzielnego usuwania usterek i częścizamiennych Miele. Kontakt w przypadku wystąpie-nia usterki W razie wystąpienia usterek, których niemożna usunąć samodzielnie, proszę po-wiadomić np. sprzedawcę Miele lub ser-wis Miele...
Strona 39 - Dane techniczne; Moduł WiFi; Wyposażenie dodatkowe dla trybu zamkniętego obiegu powietrza
Dane techniczne 39 Silnik wentylatora 220 W Oświetlenie miejsca do gotowania 3,2 W Całkowita moc przyłączeniowa 223,2 W Napięcie, częstotliwość prądu AC 230 V, 50 Hz Zabezpieczenie 10 A Długość przewodu przyłączeniowego 1,3 m Domyślna temperatura barwowa 3500 K Zakres ustawień temperatury barwowej 2...