Miele F 2413 Vi - Instrukcje
Instrukcja obsługi Miele F 2413 Vi
































































































































Podsumowanie
Spis treści 2 Wskazówki bezpieczeństwa i ostrzeżenia ...................................................... 5 Ochrona środowiska naturalnego ................................................................... 17 Instalacja ................................................................................
Spis treści 3 Wyposażenie ...................................................................................................... 63 Wyposażenie dostarczone wraz z urządzeniem.................................................. 63Wyposażenie dodatkowe ......................................................
Wskazówki bezpieczeństwa i ostrzeżenia 5 To urządzenie chłodnicze spełnia wymagania obowiązującychprzepisów bezpieczeństwa. Nieprawidłowe użytkowanie może jed-nak doprowadzić do wyrządzenia szkód osobowych i rzeczowych. Przed uruchomieniem urządzenia chłodniczego należy uważnieprzeczytać dołączoną i...
Wskazówki bezpieczeństwa i ostrzeżenia 6 Użytkowanie zgodne z przeznaczeniem Urządzenie chłodnicze jest przeznaczone do użytkowania w go- spodarstwach domowych i w domowych warunkach eksploatacyj-nych, jak przykładowo:– w sklepach, biurach i podobnych miejscach pracy,– w gospodarstwach rolnych,– p...
Wskazówki bezpieczeństwa i ostrzeżenia 7 Dzieci w gospodarstwie domowym Dzieci poniżej 8 roku życia należy trzymać z daleka od urządzenia, chyba że są pod stałym nadzorem. Dzieciom powyżej ósmego roku życia wolno używać urządzenia bez nadzoru tylko wtedy, gdy jego obsługa została im objaśniona w...
Wskazówki bezpieczeństwa i ostrzeżenia 8 Bezpieczeństwo techniczne Obieg czynnika chłodniczego jest sprawdzony pod kątem szczel- ności. Urządzenie chłodnicze spełnia wymagania obowiązującychnorm bezpieczeństwa, jak również odpowiednich dyrektyw Unii Eu-ropejskiej. Zawarty czynnik chłodniczy (inf...
Wskazówki bezpieczeństwa i ostrzeżenia 9 Im więcej czynnika chłodniczego znajduje się w urządzeniu, tym większe musi być pomieszczenie, w którym urządzenie chłodniczejest ustawione. W razie ewentualnego wycieku w zbyt małych po-mieszczeniach może się utworzyć palna mieszanina gazu i powie-trza. Na...
Wskazówki bezpieczeństwa i ostrzeżenia 12 Prawidłowe użytkowanie Urządzenie chłodnicze jest przeznaczone dla określonej klasy kli- matycznej (zakresu temperatur otoczenia), której granice muszą byćzachowane. Klasa klimatyczna jest zamieszczona na tabliczce zna-mionowej we wnętrzu urządzenia chłodn...
Wskazówki bezpieczeństwa i ostrzeżenia 13 Niebezpieczeństwo zranień. Nie dotykać zamrożonych produktów ani elementów metalowych mokrymi rękami. Ręce mogą przymarz-nąć. Niebezpieczeństwo zranień. Nigdy nie brać do ust kostek lodu ani lodów na patyku, szczególnie lodów wodnych, bezpośrednio po wy-...
Wskazówki bezpieczeństwa i ostrzeżenia 14 Części zamienne i akcesoria Stosować wyłącznie oryginalne wyposażenie Miele. Jeśli zostaną dobudowane lub wbudowane inne elementy, przepadają roszczeniawynikające z gwarancji, rękojmi i/lub odpowiedzialności za produkt. Firma Miele gwarantuje dostępność ...
Wskazówki bezpieczeństwa i ostrzeżenia 15 Transport Urządzenie należy zawsze transportować na stojąco w pionie i w opakowaniu transportowym, żeby nie zostały wyrządzone żadneszkody. Niebezpieczeństwo zranień i uszkodzeń. Urządzenie chłodnicze należy transportować z pomocą drugiej osoby, ponieważ...
Wskazówki bezpieczeństwa i ostrzeżenia 16 Zagrożenie pożarowe przez wyciek oleju lub czynnika chłodnicze- go!Znajdujący się w urządzeniu czynnik chłodniczy i olej są palne. Wy-ciekający czynnik chłodniczy lub olej przy odpowiednio wysokiejkoncentracji i w kontakcie z zewnętrznym źródłem ciepła mog...
Ochrona środowiska naturalnego 17 Utylizacja opakowania Opakowanie służy do manewrowaniai chroni urządzenie przed uszkodzenia-mi podczas transportu. Materiały opa-kowaniowe zostały specjalnie dobranepod kątem ochrony środowiska i techni-ki utylizacji i generalnie nadają się doponownego wykorzystania...
Instalacja *INSTALLATION* 18 Miejsce ustawienia Zalecane jest suche i dobrze wentylo-wane pomieszczenie. Przy wybieraniu miejsca ustawienia na-leży pamiętać, że zużycie energii urzą-dzenia chłodniczego wzrasta, jeśli jestono ustawione w bezpośrednim są-siedztwie grzejnika, piekarnika lub inne-go źró...
Instalacja *INSTALLATION* 19 Niebezpieczeństwo uszkodzeń przez wysoką wilgotność powietrza.Przy wysokiej wilgotności powietrzana zewnętrznych powierzchniach u-rządzenia chłodniczego może sięosadzać kondensat, doprowadzającdo korozji.Ustawić urządzenie chłodnicze w su-chym i/lub klimatyzowanym po-m...
Instalacja *INSTALLATION* 20 Obciążalność podłogi niszy Dla bezpiecznego ustawienia urządze-nia chłodniczego i zagwarantowaniawszystkich deklarowanych funkcji pod-łoga niszy musi być płaska i wypozio-mowana. Podłoga niszy musi być wykonanaz twardego, sztywnego materiału. Ze względu na wysoki ciężar ...
Instalacja *INSTALLATION* 21 Side-by-side To urządzenie chłodnicze może zostaćustawione z innym urządzeniem chłod-niczym w zabudowie „side-by-side”. W poniższym przeglądzie można zoba-czyć, jakie możliwości zabudowy side-by-side są dostępne z Państwa urzą-dzeniem chłodniczym. W zależności od sytuacj...
Instalacja *INSTALLATION* 22 Przy planowaniu niszy do zabudowyproszę wziąć pod uwagę, że nisza dozabudowy, w której ma zostać zain-stalowane urządzenie chłodnicze zgrzaniem ścianki bocznej, zasadni-czo musi być szersza o 4 mm (patrz rozdział „Instalacja“, punkt „Wymiarydo zabudowy“). Jeśli ścianka p...
Instalacja *INSTALLATION* 23 Wymiary do zabudowy A B C A B C F 2412/2413 Vi 2134–2164 mm 458 mm 610 mm + front meblo-wy (19–38 mm) F 2802 Vi, F 2812/2813 Vi 2134–2164 mm 762 mm 610 mm + front meblo-wy (19–38 mm) F 2902 Vi, F 2912 Vi 2134–2164 mm 915 mm 610 mm + front meblo-wy (19–38 mm)
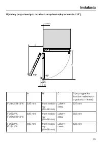
Instalacja *INSTALLATION* 25 Wymiary przy otwartych drzwiach urządzenia (kąt otwarcia 115°) 10 mm D A B C A B* C* D (w przypadkufrontów meblowycho grubości 19 mm) F 2412/2413 Vi 525 mm front meblo-wy (19–38 mm) uchwytdrzwi 237 mm F 2802 Vi, F 2812/2813 Vi 829 mm front meblo-wy (19–38 mm) uchwytdrzwi...
Instalacja *INSTALLATION* 27 Wymiary frontu meblowego A B C A B C F 2412/2413 Vi 451 mm 2029 mm ≥ 102–132 mm F 2802/2813 ViF 2812 Vi 756 mm 2029 mm ≥ 102–132 mm F 2902 Vi, F 2912 Vi 908 mm 2029 mm ≥ 102–132 mm
Instalacja *INSTALLATION* 28 Zabudowa urządzenia Zanim rozpoczniesz... Przeczytaj uważnie instrukcję użytko-wania i montażu przed przystąpie-niem do zabudowy urządzeniachłodniczego.Urządzenie chłodnicze powinno zo-stać zabudowane przez wykwalifiko-wanego instalatora zgodnie z instruk-cją użytkowania...
Instalacja *INSTALLATION* 29 Ciężar frontu meblowego Przed montażem frontu meblowego na-leży się upewnić, że przeznaczony dozamontowania front meblowy nie prze-kracza dopuszczalnego ciężaru: Urządzenie maks. ciężarfrontu meblo-wego F 2412/2413 Vi 59 kg F 2802 Vi, F 2812/2813 Vi 28 kg F 2902 Vi, F 29...
Instalacja *INSTALLATION* 30 Sprawdzanie niszy do zabudowy Sprawdzić wymiary do zabudowy(patrz rozdział „Instalacja“, punkt„Wymiary do zabudowy“). Sprawdzić pozycję przyłącza elek-trycznego. Długość przewodu zasila-jącego wynosi 3 m. Gniazdo elektryczne powinno sięznajdować poza obszarem tylnejś...
Instalacja *INSTALLATION* 31 Przed zabudową Przed zabudową zdjąć wyposażeniez zewnętrznych ścianek urządzenia. Ryzyko uszkodzeń przez niewy- starczającą wentylację.Jeśli urządzenie chłodnicze nie jestdostatecznie wentylowane, może toprowadzić do rozwoju pleśni,a w dłuższej perspektywie do uszko-...
Instalacja *INSTALLATION* 32 2 Odkręcić kątownik mocujący . Unieść ostrożnie urządzenie chłodni-cze i z pomocą kilku osób zdjąć jenajpierw tyłem z palety. Niebezpieczeństwo uszkodzenia podłogi przez obciążenie.Przesuwanie urządzenia chłodnicze-go może doprowadzić do uszkodze-nia podłogi.Prz...
Instalacja *INSTALLATION* 33 Zabezpieczenie przeciwprzechyłowezapobiega przewróceniu urządzeniachłodniczego. Dodatkowo za pomocą zabezpieczeniaprzeciwprzechyłowego nisza do zabu-dowy zostanie pewnie zamocowana dosąsiadujących ścian. Dla pojedynczego urządzenia chłod-niczego należy zastosować 2 zab...
Instalacja *INSTALLATION* 34 Ewentualnie umieścić klin drewnianyza zabezpieczeniem przeciwprzechy-łowym . Zaznaczyć otwory do wiercenia natylnej ściance niszy do zabudowy zapomocą kątowników zabezpieczeniaprzeciwprzechyłowego. W dostarczonym opakowaniu znaj-dują się śruby mocujące dla różnychs...
Instalacja *INSTALLATION* 35 Wsuwanie urządzenia chłodniczegodo niszy do zabudowy Zwrócić uwagę na to, żeby przy wsu-waniu urządzenia chłodniczego doniszy do zabudowy nie zostałyuszkodzone przyłącza prądu i świe-żej wody. Jeśli kilka urządzeń chłodniczych mabyć ustawione w zabudowie side-by-side, na...
Instalacja *INSTALLATION* 36 Wskazówka: Aby zabezpieczyć kabel zasilający przed zakleszczeniem, po-środku kabla zasilającego należy zamo-cować sznurek i przy wsuwaniu urzą-dzenia chłodniczego przeciągnąć kabeldo przodu pod urządzeniem. Wsunąć urządzenie chłodniczeostrożnie w niszę do zabudowy. J...
Instalacja *INSTALLATION* 38 Przestawić tylne nóżki ustawcze zapomocą grzechotki (nasadka: sze-ściokąt, 8 mm) lub śrubokręta (TX 20) . Przestawić przednie nóżki ustawczeza pomocą grzechotki (nasadka: sze-ściokąt, 8 mm) lub śrubokręta (TX 20) . Wskazówka: Przy wykręcaniu nóżek ustawczych nale...
Instalacja *INSTALLATION* 39 W celu wyrównania urządzenia chłod-niczego przyłożyć poziomnicę do ele-mentów ustawczych na drzwiach urządzenia. Wykręcić nóżki ustawcze i po obu stronach przynajmniej na tyle, ażnaniesione na cokole zaznaczenieosiągnie podany na elemencie dy-stansowym wymiar...
Instalacja *INSTALLATION* 40 Jeśli nie ma żadnej możliwości zamoco-wania urządzenia chłodniczego u góry,można je zamocować w niszy do zabu-dowy za pomocą bocznych wypustekmocujących: Rozłożyć boczne wypustki mocują-ce . Skręcić boczne wypustki mocujące z sąsiadującymi meblami/zabudo- wą meb...
Instalacja *INSTALLATION* 44 Mocowanie i wyrównywanie frontumeblowego Otworzyć drzwi urządzenia i zawiesićfront meblowy z ramą montażową od góry na gwintowanych trzpieniach . Listwy kątowe wcisnąć po obu stronach w białą ramę z tworzywasztucznego i najpierw luźno je przy-kręcić. Służące do...
Instalacja *INSTALLATION* 45 Wyrównać front meblowy na głębo-kość przez wycięcia w listwach kąto-wych . Wyrównać front meblowy na wyso-kość i na boki poprzez trzpienie gwin-towane . Zamknąć drzwi urządzenia i skontro-lować odstęp do sąsiadujących fron-tów meblowych. Założyć z powrotem po...
Instalacja *INSTALLATION* 46 Montaż kątownika mocującego Za pomocą kątownika mocującegofront meblowy zostanie dodatkowo za-mocowany na dole do drzwi urządze-nia. Kątownik mocujący należy zamonto-wać dopiero po zakończeniu zabudo-wy urządzenia chłodniczego (ewentu-alnie side-by-side) i wyrównaniu fro...
Instalacja *INSTALLATION* 47 Wkręcić śrubę znajdującą się na dolena drzwiach urządzenia. Założyć pokrywkę na kątownik mocujący . Zatrzasnąć pokrywkę na kątowni- ku mocującym, tak żeby „kliknęła“.
Instalacja *INSTALLATION* 48 Mocowanie zaślepek Zanim będzie można włożyć pokryw-kę w szczelinę nad urządzeniem chłodniczym, pokrywka musi zostaćzłożona w następujący sposób: Włożyć w siebie obie części pokryw-ki. Zakładanie pokrywki z boku Włożyć złożoną pokrywkę w szczelinę nad urządzeni...
Instalacja *INSTALLATION* 49 Zamontować na górze i na dole każ-dych drzwi urządzenia plastikowe za-ślepki , wciskając je od dołu do gó- ry w szczelinę pomiędzy drzwiami u-rządzenia i frontem meblowym. Zamocować po obu stronach urzą-dzenia chłodniczego przynajmniej po3 klamry dla zaślepek . ...
Instalacja *INSTALLATION* 50 Mocowanie cokołowej kratki wenty-lacyjnej i panelu cokołowego Zatrzasnąć cokołową kratkę wentyla-cyjną na dole na cokole urządze- nia. W razie potrzeby przyciąć panel co-kołowy na wymaganą długość i wy-sokość (pomiędzy dolną krawędziącokołu i podłogą). Zamocować ...
Instalacja *INSTALLATION* 51 Podłączenie do świeżej wody Wskazówki dotyczące podłączeniado świeżej wody Niebezpieczeństwo zranień i uszkodzeń przez nieprawidłowepodłączenie.Nieprawidłowe podłączenie możebyć przyczyną zranień i/lub szkódrzeczowych.Podłączenie do świeżej wody możezostać przeprowadzo...
Instalacja *INSTALLATION* 52 Stosować wyłącznie dostarczonywraz z urządzeniem wąż ze stali szla-chetnej. Węża ze stali szlachetnej niewolno skracać, przedłużać ani zastę-pować innym wężem. Uszkodzony wąż ze stali szlachetnejmoże zostać wymieniony wyłączniena oryginalną część zamienną Miele.Wąż ze st...
Instalacja *INSTALLATION* 54 Podłączenie elektryczne Urządzenie chłodnicze może zostaćpodłączone do gniazda ochronnegowyłącznie za pomocą dostarczonegoprzewodu przyłączeniowego. Ustawić urządzenie chłodnicze w takisposób, żeby gniazdo było łatwo do-stępne. Jeśli gniazdo nie jest swobod-nie dostępne,...
Instalacja *INSTALLATION* 55 Podłączanie urządzenia chłodniczego Podłączyć wtyczkę urządzenia dogniazda znajdującego się z tyłu urzą-dzenia chłodniczego. Zwrócić uwagę na to, żeby wtyczka u-rządzenia dobrze się zatrzasnęła. Włożyć wtyczkę sieciową do gniazd-ka. Urządzenie chłodnicze jest teraz p...
Oszczędzanie energii 56 normalne zużycie energii podwyższone zużycieenergii Ustawienie/Kon-serwacja W wentylowanych pomiesz-czeniach. W zamkniętych pomieszcze-niach bez wentylacji. Bez narażenia na bezpo-średnie promieniowanie sło-neczne. Przy bezpośrednim nasło-necznieniu. W oddaleniu od źródeł cie...
Opis urządzenia 58 F 2412 Vi, F 2413 Vi a Wyświetlacz b Przełącznik wł./wył. c Półka w drzwiach urządzenia d Oświetlenie wnętrza e Półka f Kostkarka do lodu g Pojemnik na kostki lodu h Kosze na mrożonki i Automatyczne otwieranie drzwi (Push2open/Pull2open) j Filtr wody
Opis urządzenia 60 Ekran główny °C -18 1 2 3 4 5 a Wskazanie SuperFrost(widoczne tylko wtedy, gdy została włączona funkcja SuperFrost) b Wskazanie temperatury (temperatura docelowa) c Przycisk dotykowy do ustawiania temperatury d Wskazanie statusu połączenia Miele@home (widoczne tylko w...
Opis urządzenia 61 Tryb ustawień W trybie ustawień można wybierać następujące funkcje urządzenia i częściowozmieniać ich ustawienia. Symbol Funkcja Język ustawianie Jasność wyświetla-cza ustawianie (ciemniej do jaśniej) Schemat kolory-styczny ustawianie (ciemny lub jasny) / Dźwięki sygnałó...
Opis urządzenia 62 Miele@home konfiguracja, dezaktywacja lub sprawdzanie statu-su połączenia sieci WiFi (patrz rozdział „Pozostałe ustawienia“) * Tryb pokazowy wyłączanie * (widoczne tylko przy włączonym trybie pokazo-wym, patrz rozdział „Pozostałe ustawienia“) Ustawienia fabrycz-ne przywracan...
Wyposażenie 63 Wyposażenie dostarczonewraz z urządzeniem Przewód zasilający z wtyczką urzą-dzenia Filtr wody (filtr siatkowy IntensiveCle-ar) Zainstalowany w urządzeniu chłodni-czym filtr siatkowy IntensiveClear filtrujewodę wodociągową do przyrządzaniakostek lodu. Filtr siatkowy IntensiveClear nie ...
Wyposażenie 64 Zestaw montażowy Side-by-side Do zabudowy dwóch lub kilku urządzeńchłodniczych obok siebie może być po-trzebny zestaw montażowy Side-by-si-de (patrz rozdział „Instalacja”, punkt „Si-de-by-side”). Kieszeń zawiasu Jeśli zawiasy Państwa urządzeniachłodniczego mają zostać zamienionestrona...
Pierwsze uruchomienie 65 Przed pierwszym użyciem Odczekać ok. 1 godzinę po transpor-cie urządzenia chłodniczego, zanimzostanie ono podłączone. Dzięki temu można uniknąć ewentu-alnych usterek w działaniu urządze-nia chłodniczego. Materiały opakowaniowe Usunąć wszystkie materiały opako-waniowe z wnę...
Pierwsze uruchomienie 66 Miele@home Państwa urządzenie chłodnicze jestwyposażone w zintegrowany modułWiFi. Fabrycznie połączenie sieciowe jestzdezaktywowane. Aby z niego korzystać, potrzebne są: - sieć WiFi - aplikacja Miele - konto użytkownika Miele (konto użyt- kownika można utworzyć poprzezaplika...
Pierwsze uruchomienie 67 Obsługa urządzenia chłodni-czego Wyświetlacz dotykowy może zostaćzarysowany przez spiczaste lub ostreprzedmioty, jak np. długopis.Dotykać wyświetlacza dotykowegowyłącznie palcami. Gdy palce są zimne, wyświetlacz do-tykowy może nie zareagować. °C -18 Przyciski dotyk...
Pierwsze uruchomienie 68 Przeprowadzanie pierwszego uru-chomienia Otworzyć drzwi urządzenia. Włączyć urządzenie chłodnicze, naci-skając przełącznik wł./wył. Przełącznik wł./wył. znajduje się podwyświetlaczem. Urządzenie chłodnicze zaczyna chło-dzić i oświetlenie wnętrza zapala sięprzy otwartych ...
Włączanie i wyłączanie urządzenia chłodniczego 69 Włączanie urządzenia chłodni-czego Otworzyć drzwi urządzenia. Włączyć urządzenie chłodnicze, naci-skając przełącznik wł./wył. Urządzenie chłodnicze zaczyna chło-dzić i oświetlenie wnętrza zapala sięprzy otwartych drzwiach urządzenia. Na wyświetla...
Włączanie i wyłączanie urządzenia chłodniczego 70 W razie dłuższej nieobecności Jeśli urządzenie nie będzie używaneprzez dłuższy czas, należy: Wyłączyć urządzenie. Wyjąć wtyczkę z gniazdka lub wyłą-czyć odpowiedni bezpiecznik instala-cji domowej. Niebezpieczeństwo uszkodzeń przez oblodzenie ru...
Pozostałe ustawienia 71 Poprzez tryb ustawień można wybie- rać różne funkcje urządzenia chłodni-czego i częściowo zmieniać ich usta-wienia, dostosowując w ten sposóburządzenie chłodnicze do swoich po-trzeb. Poniżej zostaną opisane tylko te funkcjetrybu ustawień , które wymagają dal- szych objaśn...
Pozostałe ustawienia 72 Włączanie lub wyłączanie funk-cji Tryb Eco Tryb Eco zaleca się, gdy np. podczas urlopu nie chcą Państwo całkowicie wy-łączać urządzenia chłodniczego lub niejest potrzebna wysoka wydajność chło-dzenia. Gdy włączony jest Tryb Eco , zu- życie energii jest niższe niż w normal-n...
Pozostałe ustawienia 73 Autotest Autotest należy przeprowadzić, gdy ma- ją Państwo wrażenie, że urządzeniechłodnicze nie pracuje prawidłowo i po-winno zostać sprawdzone pod kątemewentualnych usterek. W trybie ustawień , korzystając z przycisków dotykowych i , wy- brać Autotest i potwierdz...
Pozostałe ustawienia 74 Włączanie funkcji Asystent drzwi Można wybierać pomiędzy dwoma asy-stentami drzwi Push2open i Pull2open . Fabrycznie ustawiony jest asystentdrzwi Push2open . Asystent drzwi Push2open jest przezna- czony do bezuchwytowych frontów me-blowych. Drzwi urządzenia otwierają sięs...
Pozostałe ustawienia 75 - ustawianie czasu trwania funkcjiAutoClose Dodatkowo można ustawić czas, w ja-kim drzwi urządzenia powinny pozostaćotwarte, zanim zamkną się samoczyn-nie. W trybie ustawień , korzystając z przycisków dotykowych i , wy- brać Asystent drzwi i potwierdzić wy- bór za pom...
Pozostałe ustawienia 76 Wyłączanie funkcji Asystentdrzwi W trybie ustawień , korzystając z przycisków dotykowych i , wy- brać pozycję Asystent drzwi i potwier- dzić wybór za pomocą OK . Korzystając z przycisków dotykowych i wybrać Tryb i potwierdzić wy- bór za pomocą OK . Korzysta...
Pozostałe ustawienia 77 Aktywacja Miele@home Połączenie sieciowe należy ponownieuaktywnić, gdy Miele@home było jużwcześniej uaktywnione, a następniepołączenie zostało rozłączone. W trybie ustawień , korzystając z przycisków dotykowych i , wy- brać Miele@home i potwierdzić wybór za pomocą OK ...
Pozostałe ustawienia 78 Wyłączanie funkcji Tryb poka-zowy Tryb pokazowy umożliwia sprzedaw-com prezentację urządzenia chłodni-czego bez włączonego chłodzenia . Do prywatnego użytku to ustawienienie jest potrzebne. Jeśli tryb pokazowy został włączonyfabrycznie, na wyświetlaczu pokazy-wane jest ...
Pozostałe ustawienia 79 Przywracanie ustawień do stanu fabrycznego Ustawienia urządzenia chłodniczego można przywrócić do stanu fabrycznego. Ustawienia urządzenia chłodniczego należy przywrócić do stanu fabrycznego,gdy utylizuje się urządzenie chłodnicze, sprzedaje lub rozpoczyna użytkowanieużywan...
Pozostałe ustawienia 80 Funkcja Ustawienie w stanie fabrycznym Język angielski Jasność wyświetlacza średnia wartość (4 z 7 segmentów) Schemat kolorystyczny ciemny / Dźwięki sygnałów średnia wartość (4 z 7 segmentów) / Dźwięk przycisków średnia wartość (4 z 7 segmentów) °C / °F Jednostki temp...
Prawidłowa temperatura 84 Prawidłowe ustawienie temperatury jestbardzo ważne dla przechowywania pro-duktów spożywczych. Przez mikroorga-nizmy produkty spożywcze szybciej siępsują, co jest możliwe do uniknięcia lubopóźnienia dzięki prawidłowej tempera-turze przechowywania. Temperaturawpływa na szybko...
Stosowanie funkcji SuperFrost 86 Funkcja SuperFrost Aby optymalnie zamrozić produkty spo-żywcze, przed zamrażaniem świeżychproduktów spożywczych należy włą-czyć funkcję SuperFrost. W ten sposób produkty spożywcze zo-staną szybko przemrożone „na wskroś“i zachowają dzięki temu wartości od-żywcze, w...
Stosowanie funkcji SuperFrost 87 Wskazówka: Aby zaoszczędzić ener- gię, można wyłączyć funkcję SuperFrostsamodzielnie, gdy tylko w komorzemrożenia zostanie osiągnięta stała tem- peratura mrożenia o wartości przynaj-mniej -18 °C. Proszę kontrolować tem-peraturę w komorze mrożenia.
Alarm temperaturowy i alarm drzwi 88 Urządzenie jest wyposażone w systemostrzegawczy, żeby wzrost temperaturynie mógł pozostać niezauważony i żebyzapobiec utracie energii w przypadkupozostawienia otwartych drzwi urządze-nia. Alarm temperaturowy Gdy temperatura w komorze mrożeniaosiągnie zbyt wysoki ...
Alarm temperaturowy i alarm drzwi 89 Wcześniejsze wyłączanie alarmutemperaturowego Przed wyłączeniem alarmu tempera-turowego należy ustalić i usunąć jegoprzyczynę. Jeżeli sygnał ostrzegawczy będzie Pań-stwu przeszkadzał, można go wcześniejwyłączyć. Nacisnąć przycisk dotykowy OK . Sygnał ostrzegawc...
Organizacja wnętrza 90 Wyjmowanie lub przekładaniepółek w drzwiach urządzenia Wyjmować lub przekładać półki wdrzwiach urządzenia wyłącznie wstanie niezaładowanym. Przytrzymać półkę obydwoma rękamiza ramkę i unieść ją nieco, tak żebypo obu stronach wysunęła się zacze-pami nad prowadnice. Wyjąć pó...
Organizacja wnętrza 91 Wyjmowanie półki nad kost-karką do lodu Chwycić półkę od dołu z przodu oby-dwiema rękami i wcisnąć po obustronach element oporowy . Przy wyjmowaniu i ponownym zakła-daniu półki uważać na to, żeby nieuszkodzić bocznych ścianek. Wyciągnąć ostrożnie półkę do przo-du. W ce...
Organizacja wnętrza 92 Aby zwolnić uchwyty, obrócić szczeli-ny w trzpieniach w położenie poziomeza pomocą odpowiedniego przed-miotu (1.). Wyciągnąć trzpienie z uchwytów (2.). Wyciągnąć ściankę rozdzielającą zszarpnięciem do góry. W celu ponownego założenia ściankirozdzielającej umieścić uchw...
Zamrażanie i przechowywanie 94 Maksymalna zdolność mroże-nia Aby produkty spożywcze możliwieszybko zamarzały „na wskroś“, nie mo-że zostać przekroczona maksymalnazdolność mrożenia. Maksymalną zdol-ność mrożenia w ciągu 24 godzin moż-na znaleźć na tabliczce znamionowej„Zdolność mrożenia ... kg/24 h“....
Zamrażanie i przechowywanie 95 Zamrażanie świeżych produk-tów spożywczych Do zamrażania należy wykorzysty-wać wyłącznie świeże i nieuszkodzo-ne produkty spożywcze! Na co zwrócić uwagę przed zamraża-niem - Do zamrażania nadają się : świeże mięso, drób, dziczyzna, ryby,warzywa, zioła, surowe owoce, pr...
Zamrażanie i przechowywanie 96 Opisać na opakowaniu zawartośći datę zamrożenia. Przed włożeniem W przypadku świeżych produktówspożywczych w ilości większej niż2 kg, na jakiś czas przed ich włoże-niem należy włączyć funkcjęSuperFrost (patrz rozdział„SuperFrost“). Już zamrożone mrożonki uzyskają d...
Zamrażanie i przechowywanie 97 Grupa produktów spo-żywczych Czas prze-chowywa-nia (w mie-siącach) Lód spożywczy 2 do 6 Chleb, wypieki 2 do 6 Sery 2 do 4 Ryby, tłuste 1 do 2 Ryby, chude 1 do 5 Wędliny, szynka 1 do 3 Dziczyzna, wieprzowina 1 do 12 Drób, wołowina 2 do 10 Warzywa, owoce 6 do 18 Zioła 6 ...
Wytwarzanie kostek lodu 98 Automatyczna kostkarka do lodu po-trzebuje do pracy podłączenia doświeżej wody (patrz rozdział „Instala-cja”, punkt „Przyłącze świeżej wody“). Zagrożenie zdrowia przez skażo- ną wodę.Spożycie zanieczyszczonej wodymoże doprowadzić do zachorowań.Trzy pierwsze partie kostek...
Wytwarzanie kostek lodu 99 W przypadku wyjęcia pojemnika nakostki lodu produkcja kostek lodu niezostaje zakończona. Może się zda-rzyć, że kostki lodu wypadną doznajdującego się poniżej kosza namrożonki.W miarę możliwości wyjmować po-jemnik na kostki lodu tylko na krótki czas lub wyłączyć wcześniej k...
Automatyczne odmrażanie 100 Urządzenie chłodnicze jest wyposażonew system „NoFrost“, przez co odmraża-nie odbywa się automatycznie. Wytrącająca się z powietrza wilgoć osa-dza się na parowniku i od czasu do cza-su jest automatycznie odmrażana i od-parowywana. Dzięki automatycznemu odmrażaniu ko-mora ...
Czyszczenie i konserwacja 101 Proszę zwrócić uwagę na to, żeby doelektroniki ani do oświetlenia nie do-stała się woda. Niebezpieczeństwo uszkodzeń przez wnikającą wilgoć.Para z myjki parowej może uszkodzićtworzywa i podzespoły elektryczne.Nie stosować myjki parowej doczyszczenia urządzenia chłodni...
Czyszczenie i konserwacja 102 Przed czyszczeniem urządze-nia chłodniczego Wyłączyć urządzenie chłodnicze, na-ciskając przełącznik wł./wył. Wyjąć produkty spożywcze z urzą-dzenia i przechować je w chłodnymmiejscu. Wyjąć do mycia wszystkie pozostałeelementy, które można wyjąć (patrzrozdział „Org...
Czyszczenie i konserwacja 103 Czyszczenie uszczelki drzwi Niebezpieczeństwo uszkodzeń przez nieprawidłowe czyszczenie.W przypadku potraktowania uszczel-ki drzwi olejami lub tłuszczami możesię ona stać porowata.Uszczelkę drzwi należy chronić przedolejami i tłuszczami. Uszczelkę drzwi należy regul...
Czyszczenie i konserwacja 105 na wyświetlaczu (patrz rozdział „Pozo-stałe ustawienia“, punkt „Resetowaniefunkcji Wskaźnik filtra wody “). Po czyszczeniu Włożyć wszystkie elementy do urzą-dzenia. Włączyć z powrotem urządzenie. Włączyć na jakiś czas funkcjęSuperFrost , żeby komora mrożenia s...
Filtr wody 106 Urządzenie chłodnicze jest dostarczanez filtrem wody (filtr siatkowyIntensiveClear), który filtruje wodę wo-dociągową do przyrządzania kostek lo-du. Filtr siatkowy IntensiveClear odfiltro-wuje stałe zanieczyszczenia z wodywodociągowej, ale nie bakterie ani mi-kroorganizmy. Filtra wody...
Filtr wody 108 1 . 2 . Obrócić wkład filtra za nasadkęw kierunku przeciwnym do ruchuwskazówek zegara w położenie po-ziome 1.) i wyciągnąć go z otworu fil-tra 2.). Usunąć nakładkę ochronną z nowegowkładu filtra. 4. 3 . 5 . Zwolnić nasadkę z boku zużytegowkładu filtra 3.) i ją zdjąć 4.). Założ...
Filtr wody 109 wień na wyświetlaczu (patrz rozdział „Pozostałe ustawienia“, punkt „Reseto-wanie funkcji Wskaźnik filtra wody “). Po założeniu nowego filtra z węglaaktywnego IntensiveClear należy wy-rzucić wszystkie kostki lodu, którezostaną wyprodukowane w ciągu ko-lejnych 24 godzin po wymianie.
Co robić, gdy... 110 Większość usterek i błędów, do których dochodzi podczas codziennego użytko-wania, można usunąć samodzielnie. W wielu przypadkach pozwoli to zaoszczędzićczas i koszty, ponieważ nie ma wówczas potrzeby wzywania serwisu. Na stronie www.miele.pl/serwis można uzyskać informacje dotyc...
Co robić, gdy... 114 Komunikaty na wyświetlaczu Komunikat Przyczyna i postępowanie Rozlega się sygnałostrzegawczy i na wy-świetlaczu jest pokazy-wany komunikat: Tempe- ratura mrożenia była za wy-soka Maks. temperatura:°C . Temperatura w urządzeniu chłodniczym mocno wzro-sła.Przyczyną tego może być t...
Co robić, gdy... 116 Problemy z kostkarką do lodu Problem Przyczyna i postępowanie Kostkarka do lodu nieprodukuje kostek lodu. Urządzenie chłodnicze i kostkarka do lodu nie sąwłączone. Włączyć urządzenie chłodnicze i kostkarkę do lo-du. Sprawdzić, czy filtr wody jest prawidłowo założo-ny. Nie zo...
Co robić, gdy... 119 Nie działa oświetlenie wnętrza Problem Przyczyna i postępowanie Nie działa oświetleniewnętrza. Urządzenie nie jest włączone. Włączyć urządzenie. Funkcja Tryb szabasowy jest włączona: Wskazanie temperatury jest wygaszone i na wyświetlaczu poka-zywany jest symbol . Tryb sza...
Przyczyny powstawania hałasu 120 Normalne odgłosy Skąd one się biorą? Wrrrrr... Warczenie pochodzi z kompresora. Czasami może być niecogłośniejsze, gdy włącza się kompresor. Bul, bul... Bulgotanie, chlupotanie lub furczenie pochodzi od czynnikachłodniczego, który przepływa przez rurki instalacji chł...
Serwis 121 Na stronie www.miele.pl/serwis możnauzyskać informacje dotyczące samo-dzielnego usuwania usterek i częścizamiennych Miele. Kontakt w przypadku wystą-pienia usterki W razie wystąpienia usterek, których niemożna usunąć samodzielnie, proszępowiadomić np. sprzedawcę Miele lubserwis Miele. Ser...
Deklaracja zgodności 122 Niniejszym Miele oświadcza, że ta za-mrażarka spełnia wymagania Dyrektywy2014/53/WE. Pełny tekst deklaracji zgodności WEjest dostępny pod jednym z poniższychadresów internetowych: - Produkty, Pobieranie, na stronie www.miele.pl - Serwis, Materiały informacyjne, na stronie ww...
Prawa autorskie i licencje 123 Do obsługi i sterowania urządzeniem Miele używa oprogramowania własnego luboprogramowania innych producentów, które nie jest objęte tzw. licencją open so-urce. Oprogramowanie i jego elementy są chronione prawem autorskim. W związ-ku z tym należy respektować prawa autor...
Other Miele Inne Manuals
-
Miele APWM 063 Instrukcja instalacji
-
Miele APWM 019 Instrukcja obsługi
-
Miele TT 86 Instrukcja obsługi
-
Miele UG 5010 Instrukcja instalacji
-
Miele UO 5010 Instrukcja instalacji
-
Miele E 473/2 Instrukcja obsługi
-
Miele FFK 01 Instrukcja instalacji
-
Miele APDR 002 Instrukcja obsługi
-
Miele DP [50Hz] Instrukcja instalacji
-
Miele APCL 005 Instrukcja instalacji
-
Miele PG 8583 CD [WW AD CM] Instrukcja obsługi
-
Miele PG 8583 CD [WW AD CM] Instrukcja instalacji
-
Miele PG 8583 [WW AD LD] Instrukcja obsługi
-
Miele PG 8583 [WW AD LD] Instrukcja instalacji
-
Miele PLW 8615 [EL] Instrukcja obsługi
-
Miele PLW 8615 [EL] Instrukcja instalacji
-
Miele PG 8504 [AD] Instrukcja obsługi
-
Miele PLW 8617 [EL/S TH] Instrukcja obsługi
-
Miele PLW 8617 [EL/S TH] Instrukcja instalacji
-
Miele PLW 8617 [EL/S RT] Instrukcja obsługi