Strona 2 - Spis treści
Spis treści 2 Wskazówki bezpieczeństwa i ostrzeżenia ............................................................... 4 Odpowiedzialność i ochrona środowiska naturalnego ......................................... 13 Wprowadzenie ............................................................................
Strona 3 - Czyszczenie i konserwacja
Spis treści 3 Czyszczenie i konserwacja ......................................................................................... 27 Czyszczenie obudowy.................................................................................................... 27 Filtry tłuszczu ...............................
Strona 4 - Wskazówki bezpieczeństwa i ostrzeżenia; Użytkowanie zgodne z przeznaczeniem; Ten wyciąg kuchenny jest przeznaczony do stosowania w gospo-
Wskazówki bezpieczeństwa i ostrzeżenia 4 Ten wyciąg kuchenny spełnia wymagania obowiązujących przepi-sów bezpieczeństwa. Nieprawidłowe użytkowanie może jednak do-prowadzić do wyrządzenia szkód osobowych i rzeczowych.Przed uruchomieniem urządzenia należy uważnie przeczytać in-strukcję użytkowania i m...
Strona 5 - Dzieci w gospodarstwie domowym
Wskazówki bezpieczeństwa i ostrzeżenia 5 Osoby, które ze względu na upośledzenie psychiczne, umysłowe lub fizyczne, czy też brak doświadczenia lub niewiedzę, nie są w sta-nie bezpiecznie obsługiwać urządzenia, nie mogą z niego korzystaćbez nadzoru lub wskazań osoby odpowiedzialnej. Osobom tym woln...
Strona 6 - Bezpieczeństwo techniczne; Uszkodzenia wyciągu kuchennego mogą zagrażać Państwa bezpie-
Wskazówki bezpieczeństwa i ostrzeżenia 6 Bezpieczeństwo techniczne Nieprawidłowo przeprowadzone prace instalacyjne i konserwacyj- ne lub naprawy mogą się stać przyczyną poważnych zagrożeń dlaużytkownika. Prace instalacyjne i konserwacyjne oraz naprawy mogąbyć przeprowadzane wyłącznie przez fachowc...
Strona 8 - Niebezpieczeństwo zatrucia przez gazy spalinowe.
Wskazówki bezpieczeństwa i ostrzeżenia 8 Jednoczesne działanie z paleniskiem pobierającym powietrze z pomieszczenia Niebezpieczeństwo zatrucia przez gazy spalinowe. Przy jednoczesnym użytkowaniu wyciągu kuchennego i paleniskapobierającego powietrze z pomieszczenia należy zachować najwyż-szą ostroż...
Strona 10 - Prawidłowe użytkowanie
Wskazówki bezpieczeństwa i ostrzeżenia 10 Prawidłowe użytkowanie Otwarte płomienie stwarzają zagrożenie pożarowe. Nigdy nie pracować z otwartym ogniem pod wyciągiem kuchennym.Np. opalanie lub grillowanie za pomocą otwartego ognia jest zabro-nione. Włączony wyciąg kuchenny wciągnie płomienie w filt...
Strona 11 - Prawidłowa instalacja
Wskazówki bezpieczeństwa i ostrzeżenia 11 Osady tłuszczu i zabrudzenia wpływają negatywnie na działanie wyciągu kuchennego.Nigdy nie używać wyciągu bez filtrów tłuszczu, żeby zagwarantowaćoczyszczanie oparów kuchennych. Jeśli czyszczenie nie zostanie przeprowadzone według instrukcji podanych w t...
Strona 12 - Jeżeli powietrze ma być odprowadzane przez nieużywane kanały; Para z myjki parowej może się dostać na elementy przewodzące; Części zamienne i akcesoria; Stosować wyłącznie oryginalne wyposażenie Miele. Jeśli zostaną
Wskazówki bezpieczeństwa i ostrzeżenia 12 Jeżeli powietrze ma być odprowadzane przez nieużywane kanały dymne lub spalinowe, należy przestrzegać obowiązujących w tym za-kresie przepisów. Czyszczenie i konserwacja Para z myjki parowej może się dostać na elementy przewodzące prąd elektryczny i spow...
Strona 13 - Odpowiedzialność i ochrona środowiska naturalnego; Utylizacja opakowania
Odpowiedzialność i ochrona środowiska naturalnego 13 Utylizacja opakowania Opakowanie służy do manewrowaniai chroni urządzenie przed uszkodzeniamipodczas transportu. Materiały opakowa-niowe zostały specjalnie dobrane podkątem ochrony środowiska i technikiutylizacji i generalnie nadają się do po-nown...
Strona 15 - Komponenty; Filtr tłuszczu
Wprowadzenie 15 a Komin- wyposażenie dodatkowe- tylko w trybie otwartego obiegu po-wietrza b Filtr zapachów- jednorazowy lub z możliwością re-generacji- wyposażenie dodatkowe dla trybuzamkniętego obiegu powietrza c Elementy obsługi d Okap e Filtry tłuszczu f Taca ociekowa g Oświetlenie miejsca do go...
Strona 16 - Funkcje; Tryb otwartego obiegu powietrza; do; Funkcja opóźnionego wyłączania
Wprowadzenie 16 Funkcje Tryb otwartego obiegu powietrza Zassane powietrze jest oczyszczaneprzez filtry tłuszczu i odprowadzane nazewnątrz budynku. Tryb zamkniętego obiegu powietrza (z filtrem zapachów jako wyposażeniemdodatkowym, patrz „Dane techniczne“) Zassane powietrze jest oczyszczaneprzez filtr...
Strona 17 - System zarządzania energią; - Jeśli wybrany jest poziom Booster
Wprowadzenie 17 Miele@home Wyciąg kuchenny można połączyć zeswoją siecią Wi-Fi i obsługiwać za po-mocą aplikacji Miele poprzez swoje mo-bilne urządzenie końcowe.Jeśli Państwa płyta grzejna również jestpołączona z Państwa siecią Wi-Fi, moż-na uaktywnić funkcję Con@ctivity. Con@ctivity Za pomocą funkc...
Strona 18 - Pierwsze uruchomienie; Łączenie z Miele@home; Dostępność Miele@home
Pierwsze uruchomienie 18 Wybór otwartego lub zamknię-tego obiegu powietrza Wyciąg kuchenny jest przeznaczony dopracy w trybie otwartego i zamknięte-go obiegu powietrza. Wydajność wen-tylatora zostaje dopasowana do wy-branego trybu pracy. Fabrycznie usta-wiony jest tryb zamkniętego obiegupowietrza. D...
Strona 19 - Aplikacja Miele
Pierwsze uruchomienie 19 Aplikacja Miele Aplikację Miele można bezpłatnie po-brać z Apple App Store ® lub z Google Play Store™. Łączenie przez aplikację Połączenie sieciowe można utworzyć zapomocą aplikacji Miele. Zainstalować aplikację Miele na swo-im mobilnym urządzeniu końcowym. Do zalogowania ...
Strona 21 - oraz
Pierwsze uruchomienie 21 Jeżeli połączenie nie jest możliwe, miga-ją wskazania 2 i 3 lub proces zostaje przerwany po 10 minutach. Rozłączyć połączenie na wyciągu ku-chennym (patrz rozdział „Wylogowa-nie WiFi“) oraz na płycie grzejnej. Powtórzyć postępowanie. Gdy istnieje bezpośrednie połączenie...
Strona 22 - następnie na poziomie; Smażenie z funkcją Con@ctivity; przycisku
Obsługa (automatyczna) 22 Gotowanie z funkcją Con@ctivi-ty na elektrycznej płycie grzej-nej Włączyć miejsce do gotowania na do-wolnym poziomie mocy. Włącza się oświetlenie miejsca do goto-wania.Po kilku sekundach włącza się wentyla-tor, najpierw na chwilę na poziomie 2 , następnie na poziomie 1 ...
Strona 23 - Powrót do trybu automatycznego; - Wybrany ręcznie poziom wydajności; przed
Obsługa (automatyczna) 23 Po 5 minutach wyłącza się wentylatori oświetlenie miejsca do gotowania.Dzięki temu powietrze w kuchni zostajeoczyszczone z pozostałych oparów i za-pachów. Tymczasowe opuszczanie trybuautomatycznego Tryb automatyczny można tymczasowoopuścić: Wybrać ręcznie inny poziom went...
Strona 24 - Włączanie wentylatora; Wentylator włącza się na poziomie; Wybór poziomu wydajności; Przełączanie poziomu Booster; Wyłączanie wentylatora
Obsługa (ręczna) 24 Gotowanie bez funkcjiCon@ctivity (tryb ręczny) Wyciąg można obsługiwać ręcznie podnastępującymi warunkami: - Funkcja Con@ctivity nie jest uaktyw- niona. - Funkcja Con@ctivity została tymcza- sowo zdezaktywowana (patrz rozdział„Obsługa (tryb automatyczny)“, punkt„Tymczasowe opuszc...
Strona 25 - Dopasowywanie ustawień
Dopasowywanie ustawień 25 Dezaktywacja/aktywacja zarzą-dzania energią Należy pamiętać, że dezaktywacja mo-że prowadzić do podwyższonego zuży-cia energii. Przytrzymać naciśnięty przycisk 1 i równocześnie naciskać przycisk wł./wył. przez ok. 3 sekundy. 1 , 2 , 3 i B migają 2-krotnie. Następni...
Strona 26 - Wskazówki dotyczące oszczędzania energii; - Przy gotowaniu proszę się zatroszczyć
Wskazówki dotyczące oszczędzania energii 26 Ten wyciąg kuchenny pracuje bardzowydajnie i energooszczędnie. Przestrze-ganie następujących zasad pomaga woszczędnym użytkowaniu: - Przy gotowaniu proszę się zatroszczyć o dobrą wentylację kuchni. Jeśli w try-bie otwartego obiegu powietrza niedopływa wyst...
Strona 27 - Przed każdym zabiegiem czysz-; Czyszczenie obudowy; - środków czyszczących zawierających; Filtry tłuszczu; Okres czyszczenia filtrów tłuszczu; Okap jest mocowany przez magnesy.
Czyszczenie i konserwacja 27 Przed każdym zabiegiem czysz- czenia i konserwacji odłączyć wyciągod sieci elektrycznej (patrz rozdział„Wskazówki bezpieczeństwa i ostrze-żenia“). Czyszczenie obudowy Wyczyścić wszystkie powierzchniei elementy obsługi gąbczastą ście-reczką, płynem do mycia naczyń i c...
Strona 28 - Wyjmowanie filtrów tłuszczu; Spadający filtr może doprowa-; Czyszczenie wanienki ociekowej; pienne
Czyszczenie i konserwacja 28 Wyjmowanie filtrów tłuszczu Spadający filtr może doprowa- dzić do uszkodzeń filtra i miejsca dogotowania.Przy manipulacji należy pewnie trzy-mać filtr w dłoni. Otworzyć blokadę przedniego filtratłuszczu, przesunąć filtr tłuszczu nie-co do góry i wyjąć go do przodu. ...
Strona 29 - Zakładanie filtrów tłuszczu; Założyć filtry tłuszczu.; Zamykanie okapu
Czyszczenie i konserwacja 29 Wskazówki dotyczące czyszczeniaw zmywarce do naczyń Wysokie temperatury mogą spowodo-wać, że filtry tłuszczu staną się niezdat-ne do użytku, np. przez zdeformowanie.Wybrać program, który nie przekraczazalecanej temperatury.Zwrócić również uwagę na wskazówkiw instrukcji u...
Strona 30 - Filtr zapachów; Okres wymiany filtra zapachów; Wyjąć filtr zapachów z opakowania.; Utylizacja filtra zapachów
Czyszczenie i konserwacja 30 Filtr zapachów Okres wymiany filtra zapachów Filtr zapachów należy wymieniać za-wsze wtedy, gdy substancje zapachowenie są już wiązane w wystarczającymstopniu.Zalecamy wymianę filtra zapachów naj-później po 6 miesiącach.Gdy dla wyciągu kuchennego używa sięMiele@home, apl...
Strona 31 - Instalowanie; Przed instalacją
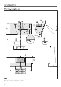
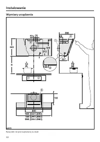
Instalowanie 31 Przed instalacją Przed instalacją należy zapoznać się z wszystkimi zaleceniami za-mieszczonymi w niniejszym rozdzialeoraz w rozdziale „Wskazówki bezpie-czeństwa i ostrzeżenia“. Usuwanie folii ochronnej Dla ochrony przed szkodami transporto-wymi elementy obudowy są zabezpie-czone fo...
Strona 34 - Zalecenia montażowe; - Przy dokonywaniu wyboru wysokości
Instalowanie 34 Zalecenia montażowe - Przy dokonywaniu wyboru wysokości montażu należy uwzględnić wzrostużytkowników. Wysokość montażupowinna umożliwiać im swobodnąpracę pod wyciągiem oraz optymalnąobsługę wyciągu kuchennego. - Proszę pamiętać, że skuteczność wy- chwytywania oparów pogarsza sięwraz ...
Strona 35 - Przewód wylotowy; Przy jednoczesnym działaniu wy-; Komin wylotowy
Instalowanie 35 Przewód wylotowy Przy jednoczesnym działaniu wy- ciągu wraz z paleniskami pobierający-mi powietrze z pomieszczenia zacho-dzi szczególnie duże niebezpieczeń-stwo zatrucia!Proszę bezwzględnie przestrzegaćzaleceń zamieszczonych w rozdziale„Wskazówki bezpieczeństwa i ostrze-żenia“.W ra...
Strona 36 - Klapa przeciwzwrotna
Instalowanie 36 Klapa przeciwzwrotna Zastosować klapę przeciwzwrotną wsystemie wylotowym. Klapa przeciwzwrotna troszczy się o to,żeby przy wyłączonym wyciągu nie za-chodziła niepożądana wymiana powie-trza pomiędzy pomieszczeniem a oto-czeniem zewnętrznym. Gdy powietrze wylotowe jest odprowa-dzane ...
Strona 37 - Tłumik
Instalowanie 37 Tłumik Dla dodatkowego wyciszenia dźwięku wprzewodzie wylotowym można założyćtłumik (wyposażenie dodatkowe). W trybie otwartego obiegu powietrzatłumik wycisza zarówno hałas wentyla-tora wydostający się na zewnątrz, jakrównież hałasy zewnętrzne, które dosta-ją się kuchni przez przewód...
Strona 38 - Podłączenie elektryczne; Zagrożenie pożarowe przez prze-
Instalowanie 38 Podłączenie elektryczne Wyciąg kuchenny jest seryjnie wyposa-żony we wtyczkę do podłączenia dogniazda ochronnego.Jeśli gniazdo nie jest swobodnie dostęp-ne lub przewidziane zostało przyłączestałe, proszę się upewnić, że po stronieinstalacji dostępne jest urządzenie roz-łączające wszy...
Strona 39 - Serwis; Pozycja tabliczki znamionowej
Serwis 39 Na stronie www.miele.pl/serwis moż-na uzyskać informacje dotyczące sa-modzielnego usuwania usterek i częścizamiennych Miele. Kontakt w przypadku wystąpie-nia usterki W razie wystąpienia usterek, których niemożna usunąć samodzielnie, proszę po-wiadomić np. sprzedawcę Miele lub ser-wis Miele...
Strona 40 - Dane techniczne; Moduł WiFi; Wyposażenie dodatkowe dla trybu zamkniętego obiegu powietrza
Dane techniczne 40 Silnik wentylatora* 200 W Oświetlenie miejsca do gotowania 3,2 W Całkowita moc przyłączeniowa* 203,2 W Napięcie, częstotliwość prądu AC 230 V, 50 Hz Zabezpieczenie 10 A Długość przewodu przyłączeniowego 1,3 m Temperatura barwowa 3500 K Ciężar DAH 2660 15,5 kg DAH 2860 17,5 kg DAH ...
Strona 41 - Wskazówka do testów porównawczych
Dane techniczne 41 Wskazówka do testów porównawczych Ustalenie efektywności energetycznej musi się odbywać w trybie otwartego obiegupowietrza. Fabrycznie ustawiony jest tryb zamkniętego obiegu powietrza. Przesta-wienie na tryb otwartego obiegu powietrza następuje przez dezaktywację licznikaczasu pra...