Strona 3 - Spis treści
Spis treści 3 Wskazówki bezpieczeństwa i ostrzeżenia ...................................................... 5 Ochrona środowiska naturalnego ................................................................... 16 Przegląd ..................................................................................
Strona 5 - Wskazówki bezpieczeństwa i ostrzeżenia
Wskazówki bezpieczeństwa i ostrzeżenia 5 Ta płyta grzejna spełnia wymagania obowiązujących przepisówbezpieczeństwa. Nieprawidłowe użytkowanie może jednak dopro-wadzić do wyrządzenia szkód osobowych i rzeczowych. Przed uruchomieniem urządzenia należy uważnie przeczytać in-strukcję użytkowania i monta...
Strona 6 - Użytkowanie zgodne z przeznaczeniem; Ta płyta grzejna jest przeznaczona do stosowania w gospodar-
Wskazówki bezpieczeństwa i ostrzeżenia 6 Użytkowanie zgodne z przeznaczeniem Ta płyta grzejna jest przeznaczona do stosowania w gospodar- stwie domowym i w otoczeniu domowym. Ta płyta grzejna nie jest przeznaczona do stosowania na zewnątrz pomieszczeń. Stosować płytę grzejną wyłącznie w warunk...
Strona 7 - Dzieci w gospodarstwie domowym
Wskazówki bezpieczeństwa i ostrzeżenia 7 Dzieci w gospodarstwie domowym Dzieci poniżej 8 roku życia należy trzymać z daleka od płyty grzej- nej, chyba że są pod stałym nadzorem. Dzieciom powyżej 8 roku życia wolno używać urządzenia bez nad- zoru tylko wtedy, gdy jego obsługa została im objaśnion...
Strona 8 - Bezpieczeństwo techniczne; Uszkodzenia płyty grzejnej mogą być przyczyną zagrożeń. Skon-
Wskazówki bezpieczeństwa i ostrzeżenia 8 Bezpieczeństwo techniczne Nieprawidłowo przeprowadzone prace instalacyjne i konserwacyj- ne lub naprawy mogą się stać przyczyną poważnych zagrożeń dlaużytkownika. Prace instalacyjne i konserwacyjne oraz naprawy mogąbyć przeprowadzane wyłącznie przez fachowc...
Strona 10 - Przy pracach instalacyjnych i konserwacyjnych oraz naprawach
Wskazówki bezpieczeństwa i ostrzeżenia 10 Przy pracach instalacyjnych i konserwacyjnych oraz naprawach urządzenie musi zostać odłączone od sieci elektrycznej. Płyta grzej-na jest odłączona od sieci elektrycznej tylko wtedy, gdy: - bezpieczniki instalacji elektrycznej są wyłączone, - bezpieczniki t...
Strona 11 - Prawidłowe użytkowanie
Wskazówki bezpieczeństwa i ostrzeżenia 11 Prawidłowe użytkowanie Płyta grzejna nagrzewa się podczas pracy i pozostaje gorąca jesz- cze przez jakiś czas po wyłączeniu. Dopiero po zgaśnięciu wskazańciepła resztkowego nie ma więcej niebezpieczeństwa odniesieniaoparzeń. Oleje i tłuszcze mogą się zap...
Strona 12 - Przy włączonej płycie grzejnej, przypadkowym włączeniu lub zale-
Wskazówki bezpieczeństwa i ostrzeżenia 12 Przy włączonej płycie grzejnej, przypadkowym włączeniu lub zale- ganiu ciepła resztkowego istnieje ryzyko, że przedmioty metaloweodłożone na płycie grzejnej ulegną rozgrzaniu. Inne materiały mogąsię stopić lub zapalić. Wilgotne pokrywki garnków mogą się za...
Strona 14 - Przedmioty metalowe, przechowywane w szufladzie pod płytą
Wskazówki bezpieczeństwa i ostrzeżenia 14 Przedmioty metalowe, przechowywane w szufladzie pod płytą grzejną, przy dłuższym, intensywnym użytkowaniu urządzenia mogąsię rozgrzać. Urządzenie jest wyposażone w wentylator chłodzący. Jeśli pod zabudowaną płytą grzejną znajduje się szuflada, należy zac...
Strona 15 - Czyszczenie i konserwacja; Para z myjki parowej może się dostać na elementy przewodzące
Wskazówki bezpieczeństwa i ostrzeżenia 15 Czyszczenie i konserwacja Para z myjki parowej może się dostać na elementy przewodzące prąd elektryczny i spowodować zwarcie. Nigdy nie stosować myjki parowej do czyszczenia urządzenia. Jeśli płyta grzejna jest zabudowana nad piekarnikiem z pirolizą, nie...
Strona 16 - Ochrona środowiska naturalnego; Utylizacja starego urządzenia
Ochrona środowiska naturalnego 16 Utylizacja opakowania trans-portowego Opakowanie chroni urządzenie przeduszkodzeniami podczas transportu. Ma-teriały, z których wykonano opakowaniezostały specjalnie dobrane pod kątemochrony środowiska i techniki utylizacjii dlatego nadają się do ponownego wy-korzys...
Strona 17 - Przegląd; Płyta grzejna; w obszar grzejny PowerFlex
Przegląd 17 Płyta grzejna a Strefa grzejna PowerFlex z funkcją TwinBoosterkombinowalna ze strefą grzejną PowerFlex w obszar grzejny PowerFlex b Strefa grzejna PowerFlex z funkcją TwinBooster c Elementy obsługi i wskazań
Strona 18 - Elementy obsługi i wskazań; Przyciski dotykowe
Przegląd 18 Elementy obsługi i wskazań Przyciski dotykowe a Włączanie/wyłączanie płyty grzejnej b Stop&GoDo zatrzymywania/uruchamiania bieżącego procesu gotowania c Funkcja wycieraniaDo blokowania przycisków dotykowych d Strefy grzejne PowerFlexDo ręcznego łączenia/rozłączania stref grzejnych Po...
Strona 19 - Wskazania/Lampki kontrolne; Dane stref grzejnych; na
Przegląd 19 Wskazania/Lampki kontrolne i Przyporządkowanie stref grzejnych do funkcji automatycznego wyłączaniaAutomatyczne wyłączanie dla strefy grzejnej jest uaktywnione j Lampka kontrolna Wskazuje poziom ciepła resztkowego k Funkcja BoosterFunkcja Booster jest uaktywniona l Wskazania timera :...
Strona 20 - Sposób działania; Niebezpieczeństwo oparzeń; Hałasy
Sposób działania 20 Pod każdą indukcyjną strefą grzejnąznajduje się cewka indukcyjna. Ta cew-ka wytwarza pole magnetyczne, któreoddziałuje bezpośrednio na dno naczy-nia i je rozgrzewa. Strefa grzejna pod-grzewa się jedynie pośrednio od ciepłaoddawanego przez dno naczynia. Indukcja działa tylko w prz...
Strona 21 - Zarządzanie energią; - Automatyka zagotowywania zostanie
Sposób działania 21 Zarządzanie energią Płyta grzejna dysponuje maksymalnąmocą całkowitą, która ze względówbezpieczeństwa nie może zostać prze-kroczona. Obie strefy grzejne na płycie grzejnej sąze sobą wzajemnie powiązane. Dziękipołączeniu może nastąpić przekierowa-nie dodatkowej mocy z jednej stref...
Strona 22 - Naczynia do gotowania
Naczynia do gotowania 22 Odpowiednie naczynia do go-towania - ze stali szlachetnej z dnem magnesu- jącym - ze stali emaliowanej - z żeliwa. Wykonanie dna naczynia do gotowaniamoże wpływać na równomierność uzy-skanych efektów gotowania (np. przyprzyrumienianiu naleśników). Dno na-czynia powinno równo...
Strona 23 - Wskazówki; - Umieścić naczynie do gotowania
Naczynia do gotowania 23 Wskazówki - Dla optymalnego wykorzystania stre- fy grzejnej należy wybrać naczynie dogotowania o pasującej średnicy dna(patrz rozdział „Przegląd“, punkt „Da-ne stref grzejnych“). Gdy garnek jestza mały, nie zostanie on rozpoznany. - Umieścić naczynie do gotowania możliwie po...
Strona 24 - Wskazówki dotyczące oszczędzania energii; - W miarę możliwości należy gotować
Wskazówki dotyczące oszczędzania energii 24 - W miarę możliwości należy gotować tylko w przykrytych garnkach lub pa-telniach. W ten sposób unika się nie-potrzebnego ulatniania ciepła. - Do mniejszych ilości należy wybierać mniejsze garnki. Mniejszy garnek wy-maga mniejszej energii niż większy,ale na...
Strona 25 - Pierwsze uruchomienie
Pierwsze uruchomienie 25 Tabliczkę znamionową, znajdującą sięw dokumentacji urządzenia, należynakleić w przewidzianym do tegomiejscu w rozdziale „Serwis“. Usunąć ewentualną folię ochronnąi naklejki. Pierwsze czyszczenie elemen-tu SmartLine Przed pierwszym użyciem należyprzetrzeć płytę grzejną ...
Strona 27 - Obsługa; Zasady obsługi; ze
Obsługa 27 Zasady obsługi Państwa element SmartLine jest wypo-sażony w elektroniczne przyciski doty-kowe, które reagują na kontakt z pal-cem. Przycisk dotykowy wł./wył. ze względów bezpieczeństwa przy włącza-niu musi być naciskany nieco dłużej niżpozostałe przyciski.Każda reakcja przycisków zosta...
Strona 28 - Zagrożenie pożarowe przez prze-; Włączanie płyty grzejnej; Nacisnąć przycisk dotykowy; Ustawianie poziomu mocy
Obsługa 28 Zagrożenie pożarowe przez prze- grzaną potrawę.Nienadzorowana potrawa może sięprzegrzać i zapalić.Nie zostawiać urządzenia w czasiepracy bez nadzoru. Proszę pamiętać, że czas nagrzewa-nia płyt indukcyjnych jest o wielekrótszy, niż w przypadku tradycyj-nych płyt grzejnych. Włączanie płyt...
Strona 29 - Wskazania ciepła resztkowego; Niebezpieczeństwo odniesienia
Obsługa 29 Wskazania ciepła resztkowego Gdy strefa grzejna jest gorąca, po wyłą-czeniu zapala się wskazanie zaleganiaciepła resztkowego. W zależności odtemperatury nad poziomami mocy 1, 2i 3 wyświetlane są punkty. Punkty wskazań zalegania ciepła reszt-kowego gasną po kolei wraz z postępu-jącym stygn...
Strona 30 - Obszar grzejny PowerFlex
Obsługa 30 Obszar grzejny PowerFlex Strefy grzejne PowerFlex zostaną auto-matycznie połączone w jeden obszargrzejny PowerFlex, gdy zostanie na nichustawione wystarczająco duże naczyniedo gotowania (patrz rozdział „Przegląd“,punkt „Płyta grzejna“). Ustawienia dlaobszaru grzejnego są dokonywane zapośr...
Strona 31 - Automatyka zagotowywania; lub
Obsługa 31 Automatyka zagotowywania Przy uaktywnionej automatyce zagoto-wywania strefa grzejna rozgrzewa sięautomatycznie przy najwyższym pozio-mie mocy, a następnie przełącza się zpowrotem na ustawiony wcześniej do-celowy poziom mocy. Czas zagotowy-wania zależy od ustawionego poziomukontynuacji got...
Strona 32 - Funkcja Booster; Aktywacja funkcji TwinBooster
Obsługa 32 Funkcja Booster Strefy grzejne są wyposażone w funkcjęTwinBooster. Funkcja Booster zwiększa moc, tak żeszybciej mogą zostać podgrzane dużeilości, np. wody do gotowania makaro-nu. To zwiększenie mocy jest aktywneprzez maksymalnie 15 minut. Gdy funkcja Booster zostanie uaktyw-niona, wówczas...
Strona 33 - Utrzymywanie ciepła; - Potrawy należy utrzymywać w cieple
Obsługa 33 Utrzymywanie ciepła Funkcja utrzymywania ciepła służy doutrzymywania w cieple gorących po-traw bezpośrednio po przyrządzeniu,a nie do ponownego podgrzewania jużostygniętych potraw. Maksymalny czas utrzymywania ciepławynosi 2 godziny. - Potrawy należy utrzymywać w cieple wyłącznie w naczyn...
Strona 34 - Minutnik; Ustawianie czasu minutnika
Zegar sterujący (Timer) 34 Element SmartLine musi być włączo-ny, gdy zamierza się korzystać z time-ra. Timer może zostać zastosowany dla2 funkcji: - do ustawiania czasu minutnika - do automatycznego wyłączania strefy grzejnej/grzałki/strefy tepan. Można korzystać z tych funkcji jedno-cześnie. Istnie...
Strona 37 - Funkcje dodatkowe; Aktywacja/Dezaktywacja; Recall
Funkcje dodatkowe 37 Stop&Go W przypadku aktywacji funkcji Stop&Gopoziom mocy wszystkich włączonychstref grzejnych zostaje zredukowanyna 1.Nie można zmienić poziomów mocystref grzejnych ani ustawień timera, pły-ta grzejna może jedynie zostać wyłą-czona. Minutnik, czasy wyłączenia, cza-sy fun...
Strona 38 - Funkcja wycierania; Aktywacja; Tryb demonstracyjny; Oznaczenie modelu
Funkcje dodatkowe 38 Funkcja wycierania Przyciski dotykowe elementu Smart-Line można zablokować na 20 sekund,żeby np. usunąć zabrudzenia. Przyciskdotykowy nie zostaje zablokowany. Aktywacja Nacisnąć przycisk dotykowy . Na wyświetlaczu zegara sterującegoodliczany jest czas. Dezaktywacja Nacis...
Strona 39 - Zabezpieczenia
Zabezpieczenia 39 Blokada uruchomienia/Bloka-da Przerwa w zasilaniu powoduje dez-aktywację blokady. Państwa element SmartLine został wy-posażony w blokadę uruchomieniai blokadę, żeby nie można było w spo-sób niezamierzony włączyć elementuani zmienić jego ustawień. Blokadę uruchomienia uaktywnia się ...
Strona 40 - Przyciski dotykowe są zakryte
Zabezpieczenia 40 Wyłączenie ze względów bez-pieczeństwa Przyciski dotykowe są zakryte Państwa element SmartLine wyłączy sięautomatycznie, gdy jeden lub kilkaprzycisków dotykowych pozostaje za-kryte dłużej niż ok. 10 sekund, np. przezpalec, wykipiałą potrawę lub odłożoneprzedmioty. Nad przyciskiem d...
Strona 41 - Cewki indukcyjne
Zabezpieczenia 41 Zabezpieczenie przed prze-grzaniem Wszystkie cewki indukcyjne i obwodychłodzące elektronikę są wyposażonew zabezpieczenie przed przegrzaniem.Zanim dojdzie do przegrzania cewek in-dukcyjnych i/lub obwodów chłodzą-cych, funkcja zabezpieczenia przedprzegrzaniem podejmuje jedno z nastę...
Strona 42 - Programowanie; Zmiana programowania
Programowanie 42 Programowanie elementu SmartLinemożna dostosować do swoich osobi-stych preferencji. Można zmodyfikowaćkilka ustawień po kolei. Po wywołaniu programowania pojawiasię symbol oraz na wyświetlaczu zegara sterującego. Po kilku sekundachna wyświetlaczu zegara sterującego mi-ga na zm...
Strona 45 - Informacje dla instytutów testowych; Fabrycznie zaprogramowane jest 9 poziomów mocy.
Informacje dla instytutów testowych 45 Potrawy testowe wg EN 60350-2 Fabrycznie zaprogramowane jest 9 poziomów mocy. Do testów zgodnie z normą należy włączyć rozszerzony zakres poziomów mocy(patrz rozdział „Programowanie“). Danie testowe dna naczynia do goto- wania (mm) Przy- kryw- ka Poziom mocy ...
Strona 47 - Uwaga na uszkodzenia przez
Czyszczenie i konserwacja 47 Uwaga na uszkodzenia przez ostre przedmioty.Taśma uszczelniająca pomiędzy ele-mentem SmartLine i blatem robo-czym może zostać uszkodzona.Nie stosować do czyszczenia żad-nych ostrych przedmiotów. Przy czyszczeniu za pomocą płynudo mycia naczyń nie zostaną usunię-te wszy...
Strona 48 - Komunikaty w polach wskazań/na wyświetlaczu; Uaktywniona jest blokada uruchomienia lub blokada.
Co robić, gdy... 48 Większość usterek i błędów, do których dochodzi podczas codziennego użytko-wania, można usunąć samodzielnie. W wielu przypadkach pozwoli to zaoszczędzićczas i koszty, ponieważ nie ma wówczas potrzeby wzywania serwisu. Poniższa tabela powinna być pomocna w ustaleniu przyczyn ewent...
Strona 50 - Nieoczekiwane zachowania; Problem
Co robić, gdy... 50 Nieoczekiwane zachowania Problem Przyczyna i postępowanie Ustawiony poziom mo-cy miga. Na strefie grzejnej nie ma żadnego naczynia do goto-wania lub jest ono nieodpowiednie. Zastosować odpowiednie naczynie do gotowania(patrz rozdział „Indukcja“, punkt „Naczynia do go-towania“)....
Strona 52 - Niezadowalające rezultaty; Problemy ogólne lub usterki techniczne
Co robić, gdy... 52 Niezadowalające rezultaty Problem Przyczyna i postępowanie Przy włączonej automa-tyce zagotowywania za-wartość naczynia dogotowania nie dochodzido wrzenia. Podgrzewane są duże ilości produktów spożyw-czych. Zagotować przy najwyższym poziomie mocy,a następnie przełączyć ręcznie ...
Strona 54 - Wyposażenie dodatkowe; Ściereczka mikrofazowa
Wyposażenie dodatkowe 54 Firma Miele oferuje bogaty asortymentwyposażenia dodatkowego dostosowa-nego do Państwa urządzenia, jak rów-nież środki do czyszczenia i pielęgnacji. Te produkty można łatwo zamówić wsklepie internetowym Miele. Można je również nabyć w serwisieMiele (patrz na końcu tej instru...
Strona 55 - Serwis; Kontakt w przypadku wystąpienia usterki; Okres gwarancji wynosi 2 lata.
Serwis 55 Kontakt w przypadku wystąpienia usterki W razie wystąpienia usterek, których nie można usunąć samodzielnie, proszę po-wiadomić np. sprzedawcę Miele lub serwis Miele. Wizytę technika serwisowego Miele można zamówić online na stroniewww.miele.pl w zakładce Serwis. Dane kontaktowe serwisu Mie...
Strona 56 - Instalacja; Wskazówki bezpieczeństwa do zabudowy; Uszkodzenia przez nieprawidłowy montaż.; Okleiny blatu roboczego muszą być przyklejone klejem odpornym
Instalacja *INSTALLATION* 56 Wskazówki bezpieczeństwa do zabudowy Uszkodzenia przez nieprawidłowy montaż. Element SmartLine może zostać uszkodzony przez nieprawidłowy montaż.Montaż elementu SmartLine powinien być przeprowadzany wyłącznie przez wy-kwalifikowanego specjalistę. Niebezpieczeństwo po...
Strona 57 - Odstępy bezpieczeństwa
Instalacja *INSTALLATION* 57 Odstępy bezpieczeństwa Odstęp bezpieczeństwa nad elemen-tem SmartLine Pomiędzy elementem SmartLine iumieszczonym nad nim wyciągiem ku-chennym należy zachować odstęp bez-pieczeństwa określony przez producen-ta wyciągu. Gdy nad elementem SmartLine zainsta-lowane są łatwo z...
Strona 58 - z tyłu
Instalacja *INSTALLATION* 58 Odstęp bezpieczeństwa z tyłu/po bo-kach Z założenia element SmartLine powi-nien zostać zamontowany z dużą ilościąmiejsca po prawej i lewej stronie. Z tyłu elementu SmartLine musi być za-chowany podany poniżej odstęp mini-malny do wysokiej szafki stojącej lub ściany po...
Strona 59 - Dno pośrednie
Instalacja *INSTALLATION* 59 Odstęp minimalny pod elementemSmartLine Aby zagwarantować wentylację elemen-tu SmartLine, pod elementem wymaga-ny jest odstęp minimalny do piekarnika,dna pośredniego lub szuflady. Odstęp minimalny od dolnej krawędzielementu SmartLine do - górnej krawędzi piekarnika: 15 m...
Strona 60 - Odstęp bezpieczeństwa do okładziny niszy
Instalacja *INSTALLATION* 60 Odstęp bezpieczeństwa do okładziny niszy Jeśli nisza jest okładzinowana, należy zachować odstęp minimalny pomiędzy wy-cięciem w blacie roboczym i okładziną, ponieważ wysokie temperatury mogą do-prowadzić do zmian materiału okładziny lub nawet jego zniszczenia. W przypadk...
Strona 61 - Blat roboczy z płytek ceramicznych
Instalacja *INSTALLATION* 61 Wskazówki dotyczące zabudo-wy przylegającej Uszczelnienie pomiędzy elementemSmartLine i blatem roboczym Element SmartLine i blat roboczymogą zostać ew. uszkodzone w raziekonieczności demontażu elementu,jeśli zostanie on uszczelniony masąuszczelniającą.Nie stosować żadnyc...
Strona 62 - Kombinacja z wyciągiem nablatowym
Instalacja *INSTALLATION* 62 Zabudowa kilkuelementów SmartLine Szczeliny pomiędzy poszczególnymielementami SmartLine należy wypełnićmasą silikonową odporną na wysokietemperatury (min. 160 °C). Przy zabudo-wie zlicowanej należy dodatkowo wy-pełnić szczelinę pomiędzy elementem/elementami SmartLine i b...
Strona 64 - Zabudowa z wyciągiem nablatowym
Instalacja *INSTALLATION* 64 Zabudowa z wyciągiem nablatowym Przykładowe kombinacje Ilość x szerokość [mm] Wymiar B [mm] Elementy grzejne Wyciąg nabla- towy 1 x 378 1 x 120 481 2 x 378 1 x 120 862 1 x 3781 x 620 2 x 120 1226 3 x 378 2 x 120 1365 2 x 3781 x 620 2 x 120 1607 4 x 378 2 x 120 1746 1 x 6...
Strona 65 - Zabudowa bez wyciągu nablatowego
Instalacja *INSTALLATION* 65 Zabudowa bez wyciągu nablatowego Przykładowe kombinacje Ilość x szerokość [mm] Wymiar B [mm] Elementy grzejne 1 x 378 359 2 x 378 740 1 x 3781 x 620 982 3 x 378 1121 2 x 3781 x 620 1363 4 x 378 1502 2 x 3781 x 800 1554 2 x 3781 x 936 1680
Strona 66 - Listwy pośrednie – zabudowa przylegająca; Dostarczone klamry są wymagane wyłącznie do montażu CSDA 700x FL.
Instalacja *INSTALLATION* 66 Listwy pośrednie – zabudowa przylegająca W przypadku montażu kilku urządzeń należy umieścić pomiędzy nimi listwy po-średnie. Dostarczone klamry są wymagane wyłącznie do montażu CSDA 700x FL. Zabudowa 3 elementów i 2 listew pośrednich
Strona 68 - Zabudowa przylegająca; W przypadku
Instalacja *INSTALLATION* 68 Zabudowa przylegająca Przygotowanie blatu roboczego Wykonać wycięcie w blacie robo-czym. Zachować wymagane odstępybezpieczeństwa (patrz rozdział „Insta-lacja“, punkt „Odstępy bezpieczeń-stwa“). W przypadku blatów roboczych z drewna należy zabezpieczyć brzegi wycięcia...
Strona 69 - Zabudowa elementu SmartLine
Instalacja *INSTALLATION* 69 Zabudowa elementu SmartLine Nakleić dostarczoną wraz z urządze-niem taśmę uszczelniającą pod kra-wędzią elementu SmartLine. Nie na-pinać taśmy uszczelniającej przy na-klejaniu. Przeprowadzić przewód zasilającyprzez wycięcie w blacie roboczym dodołu. Włożyć element ...
Strona 70 - Blaty robocze z kamienia naturalnego
Instalacja *INSTALLATION* 70 Wskazówki dotyczące zabudo-wy zlicowanej Zabudowa zlicowana jest możliwa tyl-ko w blatach roboczych z kamienianaturalnego (granitu, marmuru), pełne-go drewna i wykładanych płytkami ce-ramicznymi. W przypadku blatów ro-boczych z innych materiałów należysię dowiedzieć u ic...
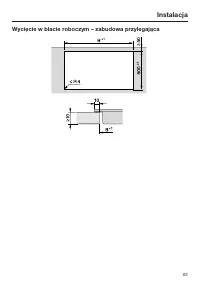
Strona 72 - Wycięcie w blacie roboczym – zabudowa zlicowana; Blat roboczy z kamienia naturalnego
Instalacja *INSTALLATION* 72 Wycięcie w blacie roboczym – zabudowa zlicowana B 0 50 A 524 50 0 + 1 + 1 ß R 4 B A 0 2 12 0 1 0 5,5 + 0,5 * / 7 + 0,5 0 2 12 0 1 0 5,5 + 0,5 * / 7 + 0,5 + 1 + 1 + 1 + 1 B A + 1 + 1 Blat roboczy z kamienia naturalnego Blat roboczy z drewna * 7 + 0,5 mm w przypadku CS 76...
Strona 75 - Listwy pośrednie – zabudowa zlicowana
Instalacja *INSTALLATION* 75 Listwy pośrednie – zabudowa zlicowana W przypadku montażu kilku urządzeń należy umieścić pomiędzy nimi listwy po-średnie. Dostarczone klamry są wymagane wyłącznie do montażu CSDA 700x FL. Zabudowa 3 elementów i 2 listew pośrednich
Strona 76 - Wymiary montażowe – zabudowa zlicowana
Instalacja *INSTALLATION* 76 Wymiary montażowe – zabudowa zlicowana Wszystkie wymiary podane są w mm. a Przód b Przewód przyłączeniowy L = 2000 mm c Frezowanie stopniowe (rysunki szczegółowe patrz rozdział „Instalacja“, punkt„Wycięcie w blacie roboczym – zabudowa zlicowana“) d Listwa drewniana 12 mm...
Strona 77 - Zabudowa zlicowana
Instalacja *INSTALLATION* 77 Zabudowa zlicowana Przygotowanie blatu roboczego Wykonać wycięcie w blacie robo-czym. Zachować wymagane odstępybezpieczeństwa (patrz rozdział „Insta-lacja“, punkt „Odstępy bezpieczeń-stwa“). W przypadku blatów roboczych z drewna należy zabezpieczyć brzegi wycięcia sp...
Strona 79 - Podłączenie elektryczne; Uszkodzenia przez nieprawidło-
Instalacja *INSTALLATION* 79 Podłączenie elektryczne Uszkodzenia przez nieprawidło- we podłączenie.Nieprawidłowo przeprowadzone pra-ce instalacyjne i konserwacyjne lubnaprawy mogą się stać przyczynąpoważnych zagrożeń dla użytkowni-ka.Firma Miele nie może zostać pocią-gnięta do odpowiedzialności za...
Strona 80 - Odłączanie od sieci
Instalacja *INSTALLATION* 80 Odłączanie od sieci Niebezpieczeństwo porażenia prądem.Przywrócenie zasilania podczas pracserwisowych i/lub konserwacyjnychmoże doprowadzić do porażenia prą-dem.Po rozłączeniu należy zabezpieczyćsieć przed ponownym włączeniem. Jeśli obwód elektryczny urządzenia mazosta...
Strona 81 - Karty produktów
Karty produktów 81 Poniżej są dołączone karty produktów modeli opisywanych w tej instrukcji użytko-wania i montażu. Informacje dotyczące elektrycznych płyt grzejnych dla gospo-darstw domowych w odniesieniu do rozporządzenia Komisji (UE) nr 66/2014 MIELE Identyfikator modelu CS 7612 Liczba pól lub ob...