Strona 2 - Spis treści; Wskazówki instalacyjne
Spis treści 2 Wskazówki instalacyjne .................................................................................................. 4 Warunki instalacyjne.......................................................................................................... 4 Warunki robocze.....................
Strona 4 - Warunki instalacyjne; Warunki robocze; Dla tego magla nieckowego wymagane jest zamocowanie do podłoża.; Podłączenie elektryczne
Wskazówki instalacyjne 4 Warunki instalacyjne Urządzenie może być ustawiane i uruchamiane wyłącznie przez serwis Miele lub wykwa-lifikowany personel autoryzowanego sprzedawcy. Instalacja magla musi zostać dokonana zgodnie z obowiązującymi zasadami i normami. Ponadto należy przestrzegać przepisów l...
Strona 5 - Przyłącze gazowe
Wskazówki instalacyjne 5 Wymagane napięcie przyłączeniowe, pobór mocy i dane dotyczące zabezpieczenia ze-wnętrznego są podane na tabliczce znamionowej magla.W przypadku podłączenia do napięcia odbiegającego od wartości podanej na tabliczceznamionowej może dojść do usterek w działaniu lub do uszkodze...
Strona 6 - Przewód odprowadzający gazy spalinowe; Ustalanie całkowitej długości rur i średnicy rur
Wskazówki instalacyjne 6 Przewód odprowadzający gazy spalinowe Króciec przydłączeniowy do odsysania spalin ( 120 mm) znajduje się z tyłu magla niecko- wego obok prawej podpory bocznej. Przestrzegać wskazówek instalacyjnych. Należy się upewnić, czy do pomieszczenia, w którym stoi magiel, stale dop...
Strona 7 - Długości zastępcze rur
Wskazówki instalacyjne 7 Długości zastępcze rur Kształtka Długości zastępcze rur PRI318/418/421 G (grzanie gazowe) kolano 90° r = 2 d 1,5 m kolano 45° r = 2 d 0,85 m kolano 90° r = d 2,55 m kolano 45° r = d 1,4 m kolano segmentowe 90° r = 2 d 2,0 m kolano segmentowe 45° r = 2 d kolano segmentowe 90°...
Strona 8 - Dopuszczalne długości łączne rur; Wymagania wobec przewodu wylotowego; Środki ostrożności w przypadku pojawienia się zapachu gazu
Wskazówki instalacyjne 8 Dopuszczalne długości łączne rur Prześwit rury o najmniejszej możliwej średnicy dla rur blaszanych Maksymalna dopuszczalna długość łączna rur wylotowych PRI318/418/421 G (grzanie gazowe) 70 mm 80 mm 90 mm 100 mm 110 mm 120 mm 10 m 130 mm 14,5 m 150 mm 30 m 180 mm 75,5 m 200 ...
Strona 9 - Na co zwrócić uwagę przed pierwszym uruchomieniem; Miejsce ustawienia
Wskazówki instalacyjne 9 Przed zakończeniem prac przy uruchomieniu, konserwacji, przebudowie i naprawie nale-ży sprawdzić wszystkie podzespoły gazowe, od zaworu gazowego po dysze palników,pod kątem szczelności. Szczególną uwagę należy zwrócić na króćce pomiarowe przy zaworze gazowym i przypalniku. K...
Strona 10 - Wymagana wielkość przepływu
Wskazówki instalacyjne 10 Wymagana wielkość przepływu Typ urządzenia Znamionowe obcią- żenie cieplne (Hi) Gaz ziemny (Lw) Gaz ziemny (E) Gaz płynny PRI318 22 kW 2,71 m³/h 2,33 m³/h 1,74 kg/h PRI418 28 kW 3,44 m³/h 2,97 m³/h 2,21 kg/h PRI421 30 kW 3,69 m³/h 3,18 m³/h 2,37 kg/h Dla wartości przyłączen...
Strona 11 - Odprowadzanie spalin
Wskazówki instalacyjne 11 Odprowadzanie spalin Ogrzewane gazem magle nieckowe są paleniskami gazowymi kategorii B 22 bez przerywa- cza ciągu z wentylatorem wyciągowym umieszczonym za wymiennikiem ciepła. - Mieszanina spalin i powietrza ogrzewanych gazem magli nieckowych musi być odprowa- dzana na ze...
Strona 12 - Przekroje przewodu wylotowego i dolotowego; Charakterystyka kanału spalinowego
Wskazówki instalacyjne 12 Przekroje przewodu wylotowego i dolotowego Model Przekrój króćca wylotowego PRI 318/418/421 Gas 113 cm² Charakterystyka kanału spalinowego PRI318 PRI418 PRI421 Przepływ spalin* 160 g/s 101 g/s 122 g/s Temperatura* 120 °C 130 °C 130 °C Zawartość CO 2 * 0,6 % 1,0 % 1,0 % Wyda...
Strona 13 - Na co zwrócić uwagę przy pierwszym uruchomieniu
Wskazówki instalacyjne 13 2. Na co zwrócić uwagę przy pierwszym uruchomieniu Sprawdzić, czy zostały uwzględnione punkty wymienione w rozdziale „1. Na co zwrócićuwagę przed pierwszym uruchomieniem“. Przy pierwszym uruchomieniu lub po przesta-wieniu należy bezwzględnie zachować następującą kolejność: ...
Strona 14 - Gaz ziemny; Gazowy zawór regulacyjny
Wskazówki instalacyjne 14 Wskazówki instalacyjne Prace instalacyjne przy podłączaniu i przestawianiu mogą być przeprowadzane wyłącz-nie przez serwis Miele lub autoryzowanego sprzedawcę firmy Miele. Ogrzewane gazem magle nieckowe Miele są fabrycznie odpowiednio przystosowane natylnej ściance urządzen...
Strona 15 - Zaślepka 2x
Wskazówki instalacyjne 15 Kontrola i ustawianie gazowego zaworu redukcyjnego Usunąć śruby na regulatorach ciśnienia. Poluzować śruby zamykające na króćcach pomiarowych. Przeprowadzić pomiar. Po zakończeniu pomiaru dokręcić z powrotem śruby zamykające. Sprawdzić ciśnienie przyłączeniowy na ...
Strona 16 - Ciśnienie przyłączeniowe i kategoria; Wartości ustawień dla gazu ziemnego
Wskazówki instalacyjne 16 Ciśnienie przyłączeniowe i kategoria Ogrzewane gazem magle nieckowe są dopuszczone do użytkowania dla następującychkrajów przeznaczenia, ciśnień przyłączeniowych i kategorii: Kraj przeznacze- nia Kategoria Ciśnienie przyłączeniowe (gaz ziemny) PN-C-96008:1998 Ciśnienie przy...
Strona 17 - Wymiary; Wymiary w milimetrach
PRI318 G (grzanie gazowe) 17 Wymiary 300 60 300 60 1750 1110 >350 >350 2469 1377 BWR>300 780 160 437 850 919 71 1240 300 0–20 Wymiary w milimetrach BWR Zestaw montażowy Zawracanie praniaOpcjonalne wyposażenie, umożliwiające odbieranie prania po maglowaniu z przodu.
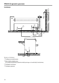
Strona 18 - Instalacja
PRI318 G (grzanie gazowe) 18 Instalacja 1 240 133– 153 360 > 5000 ~1415 1600 2 3 2 133–153 623 1590 215– 235 185– 205 4 1 1 Wymiary w milimetrach a Podłączenie elektryczne b Rura elektroinstalacyjnaDo przeprowadzenia przewodu elektrycznego w konstrukcji budowlanej. c Przyłącze wylotowe d Przyłącz...
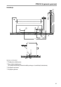
Strona 19 - Ustawienie; Przyłącze wylotowe
PRI318 G (grzanie gazowe) 19 Ustawienie A A 355 159 1768 5 4 159 464 355 350 5 5 5 Ø 10 ~70 A-A 5 3 2 Wymiary w milimetrach b Rura elektroinstalacyjnaDo przeprowadzenia przewodu elektrycznego w konstrukcji budowlanej. c Przyłącze wylotowe d Przyłącze gazowe e Otwór do wywiercenia/Punkt mocowania
Strona 20 - Dane techniczne; Warianty napięciowe/Dane elektryczne
PRI318 G (grzanie gazowe) 20 Dane techniczne Warianty napięciowe/Dane elektryczne 3NAC 380–415 V, 50–60 Hz Napięcie zasilające 3NAC 380-415 V Częstotliwość 50–60 Hz Pobór mocy 1,0 kW Wymagane zabezpieczenie (po stronie instalacji) 3 × 16 A Minimalny przekrój kabla przyłączeniowego 5 × 1,5 mm² Gwint ...