Miele PRI 421 [G LAM] - Instrukcja instalacji

Miele PRI 421 [G LAM]

Miele PRI 421 [G LAM] – Instrukcja instalacji, czytaj za darmo online w formacie PDF. Mamy nadzieję, że to pomoże rozwiązać wszelkie problemy, które mogą się pojawić. Jeśli masz dodatkowe pytania, skontaktuj się z nami za pomocą formularza kontaktowego.

1 Strona 1
2 Strona 2
3 Strona 3
4 Strona 4
5 Strona 5
6 Strona 6
7 Strona 7
8 Strona 8
9 Strona 9
10 Strona 10
11 Strona 11
12 Strona 12
13 Strona 13
14 Strona 14
15 Strona 15
16 Strona 16
17 Strona 17
18 Strona 18
19 Strona 19
20 Strona 20
21 Strona 21
22 Strona 22
23 Strona 23
24 Strona 24
25 Strona 25
26 Strona 26
27 Strona 27
28 Strona 28
29 Strona 29
30 Strona 30
31 Strona 31
32 Strona 32
Strona: / 32

Spis treści:

  • Strona 2 – Spis treści; Wskazówki instalacyjne
  • Strona 4 – Warunki instalacyjne; Warunki robocze; Dla tego magla nieckowego wymagane jest zamocowanie do podłoża.; Podłączenie elektryczne
  • Strona 5 – Przyłącze gazowe
  • Strona 6 – Przewód odprowadzający gazy spalinowe; Ustalanie całkowitej długości rur i średnicy rur
  • Strona 7 – Długości zastępcze rur
  • Strona 8 – Dopuszczalne długości łączne rur; Wymagania wobec przewodu wylotowego; Środki ostrożności w przypadku pojawienia się zapachu gazu
  • Strona 9 – Na co zwrócić uwagę przed pierwszym uruchomieniem; Miejsce ustawienia
  • Strona 10 – Wymagana wielkość przepływu
  • Strona 11 – Odprowadzanie spalin
  • Strona 12 – Przekroje przewodu wylotowego i dolotowego; Charakterystyka kanału spalinowego
  • Strona 13 – Na co zwrócić uwagę przy pierwszym uruchomieniu
  • Strona 14 – Gaz ziemny; Gazowy zawór regulacyjny
  • Strona 15 – Zaślepka 2x
  • Strona 16 – Ciśnienie przyłączeniowe i kategoria; Wartości ustawień dla gazu ziemnego
  • Strona 17 – Wymiary; Wymiary w milimetrach
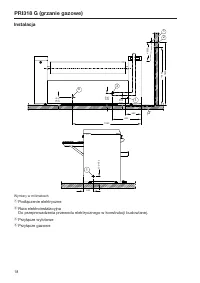
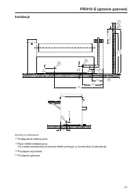
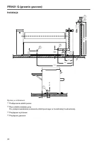
  • Strona 18 – Instalacja
  • Strona 19 – Ustawienie; Przyłącze wylotowe
  • Strona 20 – Dane techniczne; Warianty napięciowe/Dane elektryczne
Ładowanie instrukcji

Plan instalacyjny
Profesjonalny magiel nieckowy
(z grzaniem gazowym)
PRI318 G
PRI418 G
PRI421 G

Proszę

koniecznie

przeczytać instrukcję użytko-

wania przed ustawieniem – instalacją – urucho-
mieniem. Dzięki temu można uniknąć zagrożeń
i uszkodzeń.

pl-PL

M.-Nr 11 470 490

"Ładowanie instrukcji" oznacza, że należy poczekać, aż plik się załaduje i będzie można go czytać online. Niektóre instrukcje są bardzo obszerne, a czas ich ładowania zależy od prędkości Twojego internetu.

Inne instrukcje dla Miele PRI 421 [G LAM]

Podsumowanie

Strona 2 - Spis treści; Wskazówki instalacyjne

Spis treści 2 Wskazówki instalacyjne .................................................................................................. 4 Warunki instalacyjne.......................................................................................................... 4 Warunki robocze.....................

Strona 4 - Warunki instalacyjne; Warunki robocze; Dla tego magla nieckowego wymagane jest zamocowanie do podłoża.; Podłączenie elektryczne

Wskazówki instalacyjne 4 Warunki instalacyjne Urządzenie może być ustawiane i uruchamiane wyłącznie przez serwis Miele lub wykwa-lifikowany personel autoryzowanego sprzedawcy.  Instalacja magla musi zostać dokonana zgodnie z obowiązującymi zasadami i normami. Ponadto należy przestrzegać przepisów l...

Strona 5 - Przyłącze gazowe

Wskazówki instalacyjne 5 Wymagane napięcie przyłączeniowe, pobór mocy i dane dotyczące zabezpieczenia ze-wnętrznego są podane na tabliczce znamionowej magla.W przypadku podłączenia do napięcia odbiegającego od wartości podanej na tabliczceznamionowej może dojść do usterek w działaniu lub do uszkodze...

Inne modele Miele

Wszystkie inne Miele