Miele PRI 421 [EL LAM IB RF] - Instrukcja instalacji

Miele PRI 421 [EL LAM IB RF]

Miele PRI 421 [EL LAM IB RF] – Instrukcja instalacji, czytaj za darmo online w formacie PDF. Mamy nadzieję, że to pomoże rozwiązać wszelkie problemy, które mogą się pojawić. Jeśli masz dodatkowe pytania, skontaktuj się z nami za pomocą formularza kontaktowego.

1 Strona 1
2 Strona 2
3 Strona 3
4 Strona 4
5 Strona 5
6 Strona 6
7 Strona 7
8 Strona 8
9 Strona 9
10 Strona 10
11 Strona 11
12 Strona 12
13 Strona 13
14 Strona 14
15 Strona 15
16 Strona 16
17 Strona 17
18 Strona 18
19 Strona 19
20 Strona 20
21 Strona 21
22 Strona 22
Strona: / 22

Spis treści:

  • Strona 3 – Spis treści; Wskazówki instalacyjne
  • Strona 4 – Warunki instalacyjne; Warunki robocze; Dla tego magla nieckowego wymagane jest zamocowanie do podłoża.; Podłączenie elektryczne
  • Strona 5 – Przewód wylotowy
  • Strona 7 – Wymiary
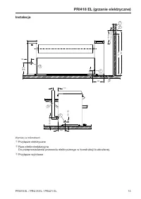
  • Strona 8 – Instalacja; Przyłącze elektryczne
  • Strona 9 – Ustawienie; Otwór do wywiercenia/Punkt mocowania
  • Strona 10 – Dane techniczne; Warianty napięciowe/Dane elektryczne; Wylot
Ładowanie instrukcji

Plan instalacyjny
Profesjonalny magiel nieckowy
(z grzaniem elektrycznym)
PRI318 EL
PRI418 EL
PRI421 EL

Przed ustawieniem - instalacją - uruchomieniem
należy

koniecznie

przeczytać instrukcję użytko-

wania. Dzięki temu można uniknąć zagrożeń i
uszkodzeń.

pl-PL

M.-Nr 11 464 580

"Ładowanie instrukcji" oznacza, że należy poczekać, aż plik się załaduje i będzie można go czytać online. Niektóre instrukcje są bardzo obszerne, a czas ich ładowania zależy od prędkości Twojego internetu.

Inne instrukcje dla Miele PRI 421 [EL LAM IB RF]

Podsumowanie

Strona 3 - Spis treści; Wskazówki instalacyjne

Spis treści 3 Wskazówki instalacyjne .................................................................................................. 4 Warunki instalacyjne.......................................................................................................... 4 Warunki robocze.....................

Strona 4 - Warunki instalacyjne; Warunki robocze; Dla tego magla nieckowego wymagane jest zamocowanie do podłoża.; Podłączenie elektryczne

Wskazówki instalacyjne 4 PRI318 EL / PRI418 EL / PRI421 EL Warunki instalacyjne Urządzenie może być ustawiane i uruchamiane wyłącznie przez serwis Miele lub wykwa-lifikowany personel autoryzowanego sprzedawcy.  Instalacja magla musi zostać dokonana zgodnie z obowiązującymi zasadami i normami. Ponad...

Strona 5 - Przewód wylotowy

Wskazówki instalacyjne PRI318 EL / PRI418 EL / PRI421 EL 5 Wymagane napięcie przyłączeniowe, pobór mocy i dane dotyczące zabezpieczenia ze-wnętrznego są podane na tabliczce znamionowej magla.W przypadku podłączenia do napięcia odbiegającego od wartości podanej na tabliczceznamionowej może dojść do u...

Inne modele Miele

Wszystkie inne Miele