Strona 2 - Spis treści; Język
Spis treści 2 Wskazówki bezpieczeństwa i ostrzeżenia ............................................................... 6 Ochrona środowiska naturalnego ............................................................................. 14 Przegląd ...............................................................
Strona 5 - Instalacja
Spis treści 5 Instalacja ......................................................................................................................... 101 Wymiary do zabudowy .................................................................................................. 101 Zabudowa w szafce stojącej...
Strona 6 - Wskazówki bezpieczeństwa i ostrzeżenia; Użytkowanie zgodne z przeznaczeniem
Wskazówki bezpieczeństwa i ostrzeżenia 6 Ten piekarnik spełnia wymagania obowiązujących przepisów bez-pieczeństwa. Nieprawidłowe użytkowanie może jednak doprowa-dzić do wyrządzenia szkód osobowych i rzeczowych.Przed uruchomieniem urządzenia należy uważnie przeczytać in-strukcję użytkowania i montażu...
Strona 7 - Dzieci w gospodarstwie domowym
Wskazówki bezpieczeństwa i ostrzeżenia 7 Ilość źródeł światła w tym piekarniku: 2, w klasie efektywności ener- getycznej F. Dzieci w gospodarstwie domowym Stosować blokadę uruchomienia, żeby dzieci nie mogły bez nadzo- ru włączać piekarnika. Dzieci poniżej 8 roku życia należy trzymać z daleka ...
Strona 8 - Bezpieczeństwo techniczne
Wskazówki bezpieczeństwa i ostrzeżenia 8 Bezpieczeństwo techniczne Nieprawidłowo przeprowadzone prace instalacyjne i konserwacyj- ne lub naprawy mogą się stać przyczyną poważnych zagrożeń dlaużytkownika. Prace instalacyjne i konserwacyjne oraz naprawy mogąbyć przeprowadzane wyłącznie przez fachowc...
Strona 10 - Prawidłowe użytkowanie
Wskazówki bezpieczeństwa i ostrzeżenia 10 Prawidłowe użytkowanie Niebezpieczeństwo zranień przez gorące powierzchnie. Piekarnik rozgrzewa się w czasie pracy. Można się oparzyć o grzałki, komorę u-rządzenia, wyposażenie i potrawę.Przy wsuwaniu lub wyjmowaniu gorących potraw oraz przy manipula-cji w...
Strona 12 - Dla urządzeń ze stali szlachetnej obowiązuje:; Czyszczenie i konserwacja
Wskazówki bezpieczeństwa i ostrzeżenia 12 Niebezpieczeństwo zranień o otwarte drzwiczki. O otwarte drzwiczki można się uderzyć lub potknąć. Nie pozostawiać drzwiczekotwartych bez potrzeby. Wytrzymałość drzwiczek wynosi maksymalnie 15 kg. Nie stawać ani nie siadać na otwartych drzwiczkach urządze...
Strona 13 - Wyposażenie
Wskazówki bezpieczeństwa i ostrzeżenia 13 Zarysowania mogą doprowadzić do zniszczenia szyby drzwiczek. Do czyszczenia szyby drzwiczek nie stosować żadnych środków szo-rujących, twardych gąbek lub szczotek, ani ostrych skrobaków meta-lowych. W ciepłych i wilgotnych obszarach występuje zwiększone ...
Strona 14 - Ochrona środowiska naturalnego; Utylizacja opakowania
Ochrona środowiska naturalnego 14 Utylizacja opakowania Opakowanie służy do manewrowaniai chroni urządzenie przed uszkodzeniamipodczas transportu. Materiały opakowa-niowe zostały specjalnie dobrane podkątem ochrony środowiska i technikiutylizacji i generalnie nadają się do po-nownego wykorzystania.Z...
Strona 15 - Przegląd; Piekarnik
Przegląd 15 Piekarnik a Elementy sterowania b Zamek drzwiczek c Grzałka grzania górnego/grilla z anteną odbiorczą dla bezprzewodowego piecze-niomierza d Otwory dla doprowadzenia pary e Rurka napełniania systemu wytwarzania pary f Bezprzewodowy pieczeniomierz g Kamera h Prowadnice boczne z 3 poziomam...
Strona 16 - Elementy sterowania
Elementy sterowania 16 a Przycisk wł./wył. w zagłębieniu do włączania i wyłączania piekarnika b Przycisk dotykowy do sterowania urządzeniem poprzezurządzenie mobilne c Czujnik zbliżeniowydo włączania oświetlenia w komorzeurządzenia i wyświetlacza oraz dopotwierdzania sygnałów dźwięko-wych przy...
Strona 17 - jest umieszczony w; Czujnik zbliżeniowy
Elementy sterowania 17 Przycisk wł./wył. Przycisk wł./wył. jest umieszczony w zagłębieniu i reaguje na dotknięcie pal-cem.Za pomocą tego przycisku włącza sięi wyłącza piekarnik. Czujnik zbliżeniowy Czujnik zbliżeniowy znajduje się po le-wej stronie u góry nad panelem stero-wania. Czujnik zbliżeni...
Strona 18 - Przyciski dotykowe; kowy; i nacisnąć ten przycisk dotykowy. Zaczyna się on wów-
Elementy sterowania 18 Przyciski dotykowe Przyciski dotykowe reagują na kontakt z palcem. Każde dotknięcie zostaje potwier-dzone dźwiękiem. Ten dźwięk przycisków można wyłączyć, wybierając ustawienie Głośność | Dźwięk przycisków | Wył. Jeśli przyciski dotykowe mają również zawsze reagować przy wył...
Strona 19 - Wyświetlacz dotykowy; Wyświetlacz dotykowy jest podzielony na kilka obszarów.; wierszu nagłówkowym; po lewej stronie wyświetlana jest ścieżka menu. Po-; Pośrodku; pokazywane jest aktualne menu z punktami menu. W tym obszarze moż-; dolnym wierszu; , w zależności od menu, wyświetlane są różne pola do obsługi,; lub
Elementy sterowania 19 Wyświetlacz dotykowy Powierzchnia dotykowa wyświetlacza może zostać zarysowana przez spiczastelub ostre przedmioty, jak np. długopis.Dotykać wyświetlacza dotykowego wyłącznie palcami.Proszę uważać, żeby pod wyświetlacz dotykowy nie dostała się woda. Wyświetlacz dotykowy jest p...
Strona 20 - Symbole; Na wyświetlaczu mogą być pokazywane następujące symbole:; Symbol; OK
Elementy sterowania 20 Symbole Na wyświetlaczu mogą być pokazywane następujące symbole: Symbol Znaczenie Ten symbol oznacza dodatkowe informacje i wskazówki dotycząceobsługi. To okienko informacyjne należy potwierdzić za pomocą OK . … Wskazanie na nadrzędne punkty menu, które ze względu na brakm...
Strona 21 - Zasady obsługi; pomarańczowy; Wybieranie punktu menu; Zmiana ustawienia na liście wyboru
Zasady obsługi 21 Piekarnik obsługuje się poprzez wyświe-tlacz dotykowy, naciskając wybranepunkty menu.Każde dotknięcie możliwej do wybraniaopcji powoduje zmianę koloru odpo-wiednich znaków (słowa i/lub symbolu)na kolor pomarańczowy . Pola do potwierdzania etapu obsługi sąpodświetlone na zielono (np...
Strona 22 - Wprowadzanie liter
Zasady obsługi 22 Wprowadzanie liter Litery wprowadza się przez klawiaturęekranową. Proszę wybierać krótkie,praktyczne nazwy. Naciskać żądane litery lub znaki. Wskazówka: Za pomocą znaku można złamać wiersz w przypadku długiej na-zwy programu. Nacisnąć Zapamiętaj . Nazwa zostaje zapamiętana. ...
Strona 23 - Tabliczka znamionowa; - instrukcja użytkowania i montażu do; Prowadnice boczne
Wyposażenie 23 Modele opisane w tej instrukcji użytko-wania i montażu są wymienione naokładce z tyłu. Tabliczka znamionowa Tabliczka znamionowa jest widoczna naramie frontowej przy otwartych drzwicz-kach.Znajduje się tam oznaczenie modelu,numer fabryczny oraz dane przyłącze-niowe (napięcie/częstotli...
Strona 24 - Blacha uniwersalna HUBB 91:; Grill obrotowy
Wyposażenie 24 Blacha uniwersalna i ruszt z zabezpie-czeniem przed wypadnięciem Blacha uniwersalna HUBB 91: Ruszt HBBR 92: Te elementy wyposażenia należy zawszewsuwać pomiędzy pręty jednego pozio-mu w prowadnicach bocznych.Wsuwać ruszt zawsze powierzchniąustawczą do dołu.Na krótszej stronie tego wyp...
Strona 25 - Wysuwy FlexiClip HFC 92; Niebezpieczeństwo zranień przez; Nie rozkładać; wysuw podczas monta-
Wyposażenie 25 Wysuwy FlexiClip HFC 92 Wysuwy FlexiClip można stosować napoziomach 1–3. Wysuwy FlexiClip należy najpierwwsunąć całkowicie do komory urządze-nia, zanim umieści się na nich jakiekol-wiek wyposażenie.Akcesoria zostaną wtedy automatycz-nie umieszczone pomiędzy wypustka-mi z przodu i z ty...
Strona 26 - Wsunąć całkowicie wysuwę FlexiClip.; Okrągłe formy do pieczenia; nadaje się dobrze do; perforowana blacha Gou-
Wyposażenie 26 Zatrzasnąć wysuwę FlexiClip na dol-nym pręcie poziomu (3.). Jeśli wysuwy FlexiClip blokują się pozakończeniu montażu, należy je jedno-krotnie mocno wyciągnąć. Postępować w następujący sposób, że-by zdemontować wysuwę FlexiClip: Wsunąć całkowicie wysuwę FlexiClip. Podważyć wysuwę...
Strona 27 - Kamień do pieczenia HBS 70
Wyposażenie 27 Kamień do pieczenia HBS 70 Kamień do pieczenia umożliwia uzyska-nie optymalnego rezultatu pieczenia wprzypadku potraw, które powinny posia-dać spód przypieczony na krucho, jakpizza, kołacz, chleb, bułki, pikantne pie-czywo itp.Kamień do pieczenia jest wykonany zżaroodpornej ceramiki i...
Strona 28 - Zabezpieczenia; czenia i AirFry
Wyposażenie 28 Akcesoria do czyszczenia i konserwacji - tabletki odkamieniające, plastikowy wężyk z uchwytem do odkamienianiapiekarnika - uniwersalna ściereczka mikrofazowa Miele- środek do czyszczenia piekarników Miele Zabezpieczenia - Blokada uruchomienia (patrz rozdział „Ustawienia“, punkt„Be...
Strona 29 - Pierwsze uruchomienie; czym swojego urządzenia; Dostępność połączenia Wi-Fi; lub z Google
Pierwsze uruchomienie 29 Miele@home Państwa piekarnik jest wyposażony wzintegrowany moduł Wi-Fi. Aby z niego korzystać, potrzebne są: - sieć Wi-Fi- aplikacja Miele- konto użytkownika Miele Konto użytkownika można utworzyćpoprzez aplikację Miele. Aplikacja Miele przeprowadzi Państwaprzez proces tworz...
Strona 30 - Ustawienia podstawowe
Pierwsze uruchomienie 30 Ustawienia podstawowe Przy pierwszym uruchomieniu należydokonać poniższych ustawień. Te usta-wienia mogą zostać zmienione w póź-niejszym terminie (patrz rozdział „Usta-wienia“). Niebezpieczeństwo zranień przez gorące powierzchnie.Piekarnik rozgrzewa się w czasie pra-cy.Pie...
Strona 33 - Ustawienia; Przegląd ustawień; Punkt menu; * Ustawienie fabryczne
Ustawienia 33 Przegląd ustawień Punkt menu Możliwe ustawienia Język ... | deutsch | english | ... Lokalizacja Godzina Wskazania Wł. * | Wył. | Wył. na noc Prezentacja analogowa * | cyfrowa Format czasu 24-godz. * | 12-godz. (am/pm) Ustawianie DataOświetlenie Wł.„Wł.“ na 15 sekund * Wył. Ekran s...
Strona 36 - Wywoływanie menu „Ustawienia“; Wskazania
Ustawienia 36 Wywoływanie menu „Ustawienia“ W menu Ustawienia można spersona- lizować piekarnik, dopasowując usta-wienia fabryczne do swoich potrzeb. Znajdują się Państwo w menu głównym. Wybrać Ustawienia . Wybrać żądane ustawienie. Teraz można sprawdzić lub zmienićustawienia. Ustawienia...
Strona 37 - Data; Jasność
Ustawienia 37 Data Tutaj ustawia się datę. Data jest pokazywana przy wyłączo-nym urządzeniu tylko w ustawieniu Go- dzina | Prezentacja | cyfrowa . Oświetlenie - Wł. Oświetlenie w komorze urządzeniapozostaje włączone podczas trwaniacałego procesu. - „Wł.“ na 15 sekund Oświetlenie w komorze urządzen...
Strona 38 - Głośność; Dźwięki sygnałów; Jednostki; Temperatura; Booster; Piroliza
Ustawienia 38 Głośność Dźwięki sygnałów Gdy sygnały dźwiękowe są włączone,sygnał rozlega się po osiągnięciu usta-wionej temperatury i po upływie usta-wionego czasu.Głośność sygnałów dźwiękowych jestprezentowana na pasku segmentowym. - maksymalna głośność - sygnały dźw...
Strona 39 - Kamera w komorze; Gdy zostanie wybrane ustawienie; Włączanie światła
Ustawienia 39 Woda kondensacyjna może spowo-dować uszkodzenia zabudowy me-blowej i blatu roboczego, a w piekar-niku może wystąpić korozja.Gdy w komorze urządzenia jest utrzy-mywana w cieple potrawa, przy usta-wieniu Sterowane czasem wzrasta wil- gotność, co prowadzi do zaparowaniapanelu sterowania, ...
Strona 40 - Bezpieczeństwo; Blokada uruchomienia; przynajmniej przez 6 se-; Blokada przycisków; Rozpoznawanie frontu; Wyłączyć funkcję rozpo-
Ustawienia 40 Bezpieczeństwo Blokada uruchomienia Blokada uruchomienia zapobiega nieza-mierzonemu włączeniu piekarnika.Przy uaktywnionej blokadzie uruchomie-nia można nadal natychmiast ustawićalarm i czas minutnika oraz korzystać zfunkcji MobileStart. Blokada uruchomienia pozostaje za-chowana takż...
Strona 41 - Zdalne sterowanie; Aktywacja MobileStart
Ustawienia 41 Istnieje kilka możliwości, żeby połączyćpiekarnik ze swoją siecią Wi-Fi. Zaleca-my łączenie piekarnika z siecią Wi-Fi zapomocą aplikacji Miele lub poprzezWPS. - Aktywacja To ustawienie jest widoczne tylkowtedy, gdy Miele@home jest zdezak-tywowane. Funkcja Wi-Fi zostaje z po-wrotem włąc...
Strona 42 - Wskazanie SuperVision
Ustawienia 42 Wskazanie SuperVision - Wł. Funkcja SuperVision jest włączona. Symbol jest pokazywany u góry po prawej stronie wyświetlacza. - Wył. Funkcja SuperVision jest wyłączona. Wskazania w trybie standby Funkcja SuperVision jest dostępna rów- nież w trybie czuwania. Warunkiemjest, żeby wskaza...
Strona 43 - Informacje prawne; Handel; Tryb pokazowy; Ustawienia fabryczne
Ustawienia 43 Aktualizację można zainstalować natych-miast lub przesunąć instalację na później.Po ponownym włączeniu piekarnika poja-wi się wówczas przypomnienie.Jeśli nie chcą Państwo instalować aktuali-zacji, proszę wyłączyć funkcję Aktualizacjazdalna (RemoteUpdate). Aktualizacja może potrwać kilk...
Strona 44 - Alarm i minutnik; Korzystanie z funkcji Alarm; Ustawianie alarmu
Alarm i minutnik 44 Za pomocą przycisku dotykowego można ustawić czas minutnika (np. dogotowania jajek) lub alarm, tzn. określo-ną godzinę. Jednocześnie można ustawić dwa alar-my, dwa czasy minutnika lub jedenalarm i jeden czas minutnika. Korzystanie z funkcji Alarm Alarm można wykorzystać do ...
Strona 45 - Korzystanie z funkcji Minutnik; Ustawianie czasu minutnika
Alarm i minutnik 45 Korzystanie z funkcji Minutnik Minutnik można ustawić do nadzoro- wania oddzielnych procesów, np. do go-towania jajek.Minutnik można również wykorzystać,gdy ustawione są równocześnie czasyautomatycznego włączenia lub wyłącze-nia procesu przyrządzania (np. jako przy-pomnienie, ...
Strona 46 - Menu główne i podmenu; Menu
Menu główne i podmenu 46 Menu Wartość proponowa- na Zakres Programy Termonawiew Plus 160 °C 30–250 °C Grzanie górne i dolne 180 °C 30–280 °C Pieczenie Plus Pieczenie Plus + Autopieczenie 160 °C 130–230 °C Pieczenie Plus + Termonaw. Plus 160 °C 130–250 °C Pieczenie Plus + Inte...
Strona 48 - Wskazówki dotyczące oszczędzania energii; Procesy przyrządzania
Wskazówki dotyczące oszczędzania energii 48 Procesy przyrządzania - W miarę możliwości do przyrządzania potraw należy korzystać z programówautomatycznych. - Wyjąć z komory urządzenia całe wy- posażenie, które nie będzie potrzebnepodczas procesu pieczenia. - Z reguły należy wybrać najniższą tem- pera...
Strona 49 - Tryb oszczędzania energii
Wskazówki dotyczące oszczędzania energii 49 Wykorzystanie ciepła resztko-wego - W przypadku procesów przyrządzania z temperaturami przekraczającymi140 °C i czasami przyrządzania dłuż-szymi niż 30 minut, na ok. 5 minutprzed końcem procesu można zredu-kować temperaturę do minimalnejmożliwej do ustawie...
Strona 50 - Obsługa; Ustawianie czasów przyrządzania
Obsługa 50 Włączyć piekarnik. Pojawia się menu główne. Wsunąć potrawę do komory gotowa-nia. Wybrać Programy . Wybrać żądany program. Wyświetlony zostaje program i tempe-ratura proponowana. Zmienić zaproponowaną temperaturę,jeśli potrzeba. Temperatura proponowana zostaniezaakceptowana w...
Strona 53 - Włączanie funkcji Rozgrzewanie; Crisp function; Włączanie Crisp function; Zmiana programu
Obsługa 53 Włączanie funkcji Rozgrzewanie Funkcja Rozgrzewanie może być stoso- wana w każdym programie i musi zostaćwłączona oddzielnie dla każdego proce-su. Przykład: Został wybrany program i wy-magane ustawienia jak np. temperatura.Funkcja Rozgrzewanie ma zostać włączo- na dla tego procesu. Rozw...
Strona 54 - Pieczenie Plus; Odpowiednie produkty; ciasta drożdżowego
Pieczenie Plus 54 Państwa piekarnik jest wyposażony wsystem wytwarzania pary do wspoma-gania procesów przyrządzania wilgocią.Przy pieczeniu, smażeniu lub gotowaniuw programie Pieczenie Plus zoptyma- lizowany dopływ pary i powietrza gwa-rantuje równomierne przyrządzenie iprzyrumienienie.Wspomagan...
Strona 55 - Wybieranie uderzeń pary
Pieczenie Plus 55 Wybieranie uderzeń pary Wybrać Automatycznie , Ręcznie lub Z timerem . - Automatycznie Piekarnik wyzwala 1 uderzenie paryautomatycznie po zakończeniu fazynagrzewania. - Ręcznie Wyzwalają Państwo samodzielnie 1, 2lub 3 uderzenia pary poprzez wyświe-tlacz dotykowy. - Z timerem Nale...
Strona 56 - Wyzwalanie uderzeń pary; Automatycznie
Pieczenie Plus 56 Włącza się grzanie w komorze urządze-nia i wentylator chłodzący. Pojawia siętemperatura docelowa i temperatura ak-tualna.Można śledzić wzrost temperatury. Popierwszym osiągnięciu wybranej tempe-ratury rozlega się sygnał. Gdy zostało wybrane Z timerem , przed wyzwoleniem można spraw...
Strona 57 - Pomijanie odparowania wody resztkowej
Pieczenie Plus 57 Odparowanie wody resztkowej w mia-rę możliwości należy uruchomić na-tychmiast, żeby w następnym progra-mie na potrawę była odparowywanawyłącznie świeża woda. Niebezpieczeństwo zranień przez parę wodną.Para wodna może doprowadzić dosilnych oparzeń.Nie otwierać drzwiczek podczas ...
Strona 58 - Kategorie; Wskazówki użytkowe
Programy automatyczne 58 Liczne programy automatyczne prowa-dzą pewnie i komfortowo do uzyskaniaoptymalnych rezultatów gotowania. Kategorie W celu lepszej orientacji programy auto-matyczne są podzielone na katego- rie. Wystarczy wybrać program automa-tyczny pasujący do Państwa potrawy ipostępować...
Strona 59 - Szukanie
Programy automatyczne 59 Szukanie (w zależności od języka)W punkcie Programy automatyczne moż- na wyszukiwać według nazw kategoriii programów automatycznych.Chodzi przy tym o wyszukiwanie teksto-we, w którym można również wyszuki-wać części wyrazów.Znajdują się Państwo w menu głównym. Wybrać Progr...
Strona 60 - towe; Rozmrażanie; Zagrożenie zdrowia przez namna-; Wskazówki; - Mrożonki bez opakowania rozmrażać
Zastosowania specjalne 60 W tym rozdziale znajdują się informacjedotyczące następujących zastosowań: - Rozmrażanie- Suszenie- Podgrzewanie naczyń- Wyrastanie ciasta- Pieczenie delikatne- Program szabasowy- Utrzymywanie ciepła- Pasteryzacja- Produkty głęboko mrożone/Dania go- towe Rozmrażanie Gdy mro...
Strona 61 - Suszenie; Wyjmowanie suszu
Zastosowania specjalne 61 Suszenie Suszenie lub odpestkowywanie jest tra-dycyjnym sposobem konserwowaniaowoców, niektórych warzyw i ziół.Warunkiem jest, żeby owoce i warzywabyły świeże, dojrzałe, i nie miały żad-nych wgnieceń. Obrać i odpestkować produkt do su-szenia, jeśli potrzeba, i go rozdrobn...
Strona 62 - Podgrzewanie naczyń
Zastosowania specjalne 62 Podgrzewanie naczyń Dzięki podgrzaniu naczynia produktyspożywcze nie stygną tak szybko. Stosować naczynia odporne tempera-turowo. Wsunąć ruszt na poziom 1 i postawićna nim naczynie do podgrzania. W za-leżności od wielkości naczynia możnaje również ustawić na dnie komory u...
Strona 64 - Program szabasowy; Stosowanie Program szabasowy
Zastosowania specjalne 64 Korzystanie z programu Grzanie górnei dolne Proszę się orientować po danych w ta-belach ustawień na końcu tego doku-mentu. Zastosować blachę uniwersalną z na-łożonym rusztem. Wsunąć blachę uniwersalną z rusz-tem na poziom 1. Wybrać Programy . Wybrać program Grzani...
Strona 65 - nie
Zastosowania specjalne 65 Na wyświetlaczu pojawia się Program szabasowy i ustawiona temperatura. Grzanie w komorze gotowania włączasię ok. 30 sekund po zamknięciu drzwi-czek. Oświetlenie w komorze gotowaniapozostaje włączone podczas trwania ca-łego procesu.Godzina nie jest wyświetlana. Czujnikzbliże...
Strona 66 - Pasteryzacja; zawsze; Przygotowanie owoców i warzyw; Wybrać program; Pasteryzacja owoców i ogórków; Owoce
Zastosowania specjalne 66 Pasteryzacja Zagrożenie zdrowia przez namna- żanie drobnoustrojów.Przy jednokrotnej pasteryzacji roślinstrączkowych i mięsa nie następuje za-bicie wystarczającej ilości przetrwalni-ków bakterii jadu kiełbasianego. Możeto spowodować wzmożone wydziela-nie toksyn wywołującyc...
Strona 67 - Wyjmowanie słoików po pasteryzacji
Zastosowania specjalne 67 Wyjmowanie słoików po pasteryzacji Niebezpieczeństwo zranień przez gorące powierzchnie.Po pasteryzacji słoiki są bardzo gorą-ce.Przy wyjmowaniu słoików zakładaćrękawice do gorących garnków. Wyjąć słoiki z komory urządzenia. Pozostawić słoiki przykryte ścierką naok. 24...
Strona 68 - MyMiele; Dodawanie wpisów; Kasowanie wpisów
MyMiele 68 W menu MyMiele można zapamię- tać często używane zastosowania.Szczególnie w przypadku programówautomatycznych nie trzeba wówczasprzechodzić przez wszystkie poziomymenu, żeby uruchomić program. Wskazówka: Punkty menu wpisane w MyMiele można również ustawić jako ekran startowy (patrz r...
Strona 69 - Programy własne; Tworzenie programów własnych
Programy własne 69 Można utworzyć i zapamiętać do 20programów własnych. - Istnieje możliwość kombinacji nawet do 10 etapów programu, żeby dokład-nie opisać przebieg ulubionych lubczęsto używanych przepisów. W każ-dym etapie można w tym celu wybraćustawienia, takie jak np. program,temperatura i czas ...
Strona 70 - Zmiana etapów programu
Programy własne 70 Uruchamianie programów wła-snych Wsunąć potrawę do komory urządze-nia. Wybrać Programy własne . Wybrać żądany program. W zależności od ustawień programo-wych wyświetlane są następujące punk-ty menu: - Uruchomić teraz Program zostanie uruchomiony na-tychmiast. Od razu włą...
Strona 72 - Pieczenie wypieków; Porady dotyczące wypieków; - Ciasta w formach prostokątnych lub; Stosowanie papieru do pieczenia; Z reguły po upływie najkrótszego po-
Pieczenie wypieków 72 Delikatne traktowanie produktówspożywczych służy zdrowiu.Ciasta, pizzę, frytki itp. należy przyru-mienić wyłącznie na złoty kolor, a niepiec je na ciemny brąz. Porady dotyczące wypieków - Ustawić czas trwania programu. Pie- czenie wypieków nie powinno byćprogramowane ze zbyt du...
Strona 73 - Wskazówki dotyczące programów
Pieczenie wypieków 73 danego czasu należy sprawdzić, czypotrawa jest już gotowa. W tym celuwbić w ciasto patyczek drewniany. Jeśli do patyczka nie przyczepiają siężadne wilgotne okruchy ciasta, potrawajest gotowa. Wskazówki dotyczące programów Przegląd wszystkich programów z przy-należnymi wartościa...
Strona 74 - Pieczenie mięs
Pieczenie mięs 74 Porady dotyczące pieczeniamięs - Można stosować każde naczynie z materiału odpornego temperaturowo,jak np. brytfanna, garnek do pieczenia,forma szklana, rękaw lub torebka dopieczenia, garnek rzymski, blacha uni-wersalna, ruszt i/lub blacha do pie-czenia i grillowania ( jeśli występ...
Strona 76 - Pieczeniomierz; Sposób działania
Pieczenie mięs 76 Pieczeniomierz Za pomocą pieczeniomierza można do-kładnie nadzorować temperaturę procesu. Sposób działania Metalową końcówkę pieczeniomierzanależy wbić całkowicie w potrawę, aż pouchwyt. W metalowej końcówce znaj-duje się czujnik temperatury, który mie-rzy temperaturę we wnętrzu po...
Strona 77 - - Nie stosować metalowych naczyń do
Pieczenie mięs 77 Ważne wskazówki dotyczące użytko-wania W celu zapewnienia optymalnego spo-sobu działania proszę bezwzględnieprzestrzegać poniższych wskazówek. Metalowa końcówka pieczeniomierzamoże się odłamać.Nie wykorzystywać pieczeniomierzado przenoszenia potrawy. - Nie stosować metalowych naczy...
Strona 78 - Stosowanie pieczeniomierza; , ponieważ łączny czas zależy; Wskazanie czasu pozostałego
Pieczenie mięs 78 Stosowanie pieczeniomierza Wyjąć pieczeniomierz ze schowka wdrzwiczkach. Wbić metalową końcówkę pieczenio-mierza całkowicie w potrawę, aż pouchwyt. Jeśli przyrządza się równocześnie kilkakawałków mięsa, pieczeniomierz należywbić w najgrubszy kawałek.Uchwyt powinien być skierowa...
Strona 79 - Grillowanie; Porady dotyczące grillowania; Wybieranie temperatury
Grillowanie 79 Niebezpieczeństwo zranień przez gorące powierzchnie.Gdy grilluje się przy otwartychdrzwiczkach, gorące powietrze z ko-mory urządzenia nie jest więcej auto-matycznie wyprowadzane przez wen-tylator chłodzący i schładzane. Ele-menty sterowania stają się gorące.Zamykać drzwiczki przy gr...
Strona 80 - W przypadku mięsa
Grillowanie 80 Wybieranie czasu przyrządzania Płaskie plastry mięsa lub ryb grillowaćok. 6–8 minut na stronę.Zwrócić uwagę na to, żeby plastry by-ły podobnej grubości, tak żeby czasytrwania nie różniły się zbytnio międzysobą. Z reguły po upływie najkrótszego cza-su należy sprawdzić, czy potraw...
Strona 81 - Grillowanie na grillu obrotowym
Grillowanie 81 Grillowanie na grillu obrotowym Grill obrotowy można stosować w pro-gramach Grill obrotowy duży i Grill ob- rotowy mały . Maksymalne obciążenie grilla obroto-wego wynosi 5 kg. Wsunąć uchwyty na rożen po bokachna blachę uniwersalną, aż się zatrza-sną. Zamocować potrawę pośr...
Strona 83 - Usuwanie normalnych zabrudzeń
Czyszczenie i konserwacja 83 Usuwanie normalnych zabru-dzeń Wokół komory urządzenia znajdujesię, służąca jako uszczelnienie wobecszyby drzwiczek, delikatna uszczelkaz włókna szklanego, która może zo-stać uszkodzona przez tarcie lub szo-rowanie.W miarę możliwości nie czyścićuszczelki z włókna szklane...
Strona 84 - niach
Czyszczenie i konserwacja 84 Czyszczenie komory urządzeniaz funkcją Piroliza Zamiast ręcznie, komorę urządzeniamożna wyczyścić za pomocą funkcji Piroliza . Przy czyszczeniu pirolitycznym komoragotowania jest nagrzewana do ponad400 °C. Istniejące zabrudzenia zostanąrozłożone przez wysoką temperat...
Strona 86 - Kończenie czyszczenia pirolitycznego; Potwierdzić wskazówkę za pomocą; Rozciąganie wysuw FlexiClip
Czyszczenie i konserwacja 86 Kończenie czyszczenia pirolitycznego Gdy tylko upłynie czas pozostały, na wy-świetlaczu pojawia się wskazówka, żedrzwiczki zostaną odblokowane.Gdy tylko drzwiczki zostaną odblokowa-ne, pojawia się Gotowe i rozlega się sy- gnał. Potwierdzić wskazówkę za pomocą OK . Wy...
Strona 87 - Przebieg procesu odkamieniania; nia; Przygotowanie procesu odkamieniania; Dalsze tabletki odkamie-
Czyszczenie i konserwacja 87 Odkamienianie System wytwarzania pary należy regular-nie odkamieniać, w zależności od twardo-ści wody.Odkamienianie można przeprowadzićw każdej chwili.Po określonej liczbie cykli programowychpojawi się jednak automatycznie wezwa-nie do odkamienienia systemu wytwarza-nia ...
Strona 88 - faza działania; pierwszego płukania
Czyszczenie i konserwacja 88 Wsunąć blachę uniwersalną do oporuna najwyższy poziom, żeby zebraćśrodek odkamieniający po użyciu. Po-twierdzić wskazówkę za pomocą OK . Ustawić naczynie z odkamieniaczemna dnie komory urządzenia. Zamocować plastikowy wężyk na koń-cówce rurki do napełniania. Drugi ...
Strona 89 - trzecim płukaniu; Kończenie procesu odkamieniania
Czyszczenie i konserwacja 89 Wyjąć z naczynia plastikowy wężyk inapełnić naczynie ok. 1 l świeżej wodywodociągowej. Wstawić naczynie z powrotem do ko-mory urządzenia, zamocować plasti-kowy wężyk w naczyniu. Potwierdzić za pomocą OK . Postępować dokładnie tak samo przy trzecim płukaniu . Pozo...
Strona 90 - Zdejmowanie drzwiczek; Otworzyć całkowicie drzwiczki.
Czyszczenie i konserwacja 90 Zdejmowanie drzwiczek Drzwiczki ważą ok. 14 kg. Drzwiczki urządzenia są połączone z za-wiasami za pomocą zaczepów.Zanim będzie można przystąpić do zdję-cia drzwiczek z zaczepów, należy naj-pierw odblokować jarzma blokujące przyzawiasach po obu stronach drzwiczek. Otwor...
Strona 91 - Rozbieranie drzwiczek
Czyszczenie i konserwacja 91 Rozbieranie drzwiczek Drzwiczki składają się z otwartego sys-temu 4 szyb szklanych powleczonychwarstwą częściowo odbijającą ciepło.Podczas pracy urządzenia przezdrzwiczki prowadzone jest dodatkowopowietrze, tak że zewnętrzna szyba po-zostaje chłodna.Jeśli w przestrzeni p...
Strona 92 - Podważyć; lekko; wewnętrzną szybę
Czyszczenie i konserwacja 92 Podważyć lekko wewnętrzną szybę drzwiczek i wyciągnąć ją z plastikowejlistwy. Wyjąć uszczelkę. Podważyć lekko górną z obu środko-wych szyb drzwiczek i ją wyciągnąć. Podważyć lekko dolną z obu środko-wych szyb drzwiczek i ją wyciągnąć. Wyczyścić szyby drzwiczek ...
Strona 93 - Drzwiczki są z powrotem złożone.
Czyszczenie i konserwacja 93 Obrócić zaczepy szyb drzwiczek dowewnątrz, tak żeby przylegały do dol-nej z obu środkowych szyb. Założyć górną z obu środkowych szybw taki sposób, żeby numer materiało-wy był czytelny (bez odbicia lustrza-nego).Szyba drzwiczek musi się opierać nazaczepach. Założyć ...
Strona 94 - Zakładanie drzwiczek
Czyszczenie i konserwacja 94 Zakładanie drzwiczek Chwycić drzwiczki po obu stronachi nasadzić je na zaczepy zawiasów.Uważać, żeby nie przekrzywić przytym drzwiczek. Otworzyć całkowicie drzwiczki. Gdy nie zostaną zablokowane jarzmablokujące, drzwiczki mogą spaść z za-czepów i ulec uszkodzeniu.Bez...
Strona 95 - Montaż; odbywa się w odwrotnej kolej-
Czyszczenie i konserwacja 95 Wyciągnąć prowadnicę boczną z przo-du z mocowania (1.) i ją wyjąć (2.). Montaż odbywa się w odwrotnej kolej- ności. Zamontować starannie poszczególneelementy. Opuszczanie grzałki grzania gór-nego/grilla Gdy sufit komory urządzenia jest szcze-gólnie mocno zabrudzony, ...
Strona 98 - pojawia
Co robić, gdy... 98 Problem Przyczyna i postępowanie Na wyświetlaczupokazywane jest Błąd i jeden z nie- wymienionych tu-taj kodów błędów. Problem, którego nie można usunąć samodzielnie. Wezwać serwis Miele. Na wyświetlaczupojawia się komu-nikat Komunikacja z pieczeniomierzem za-kłócona, zmienić po...
Strona 100 - Serwis; Gwarancja
Serwis 100 Na stronie www.miele.pl/serwis moż-na uzyskać informacje dotyczące sa-modzielnego usuwania usterek i częścizamiennych Miele. Kontakt w przypadku wystąpie-nia usterki W razie wystąpienia usterek, których niemożna usunąć samodzielnie, proszę po-wiadomić np. sprzedawcę Miele lub ser-wis Miel...
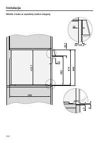
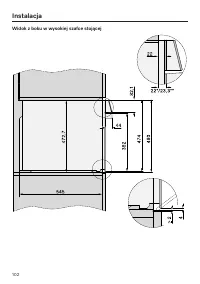
Strona 101 - Wymiary do zabudowy; Wymiary podane są w mm.; Zabudowa w szafce stojącej lub w szafce podblatowej
Instalacja *INSTALLATION* 101 Wymiary do zabudowy Wymiary podane są w mm. Zabudowa w szafce stojącej lub w szafce podblatowej Jeśli piekarnik ma zostać zabudowany pod płytą grzejną, proszę przestrzegaćwskazówek dotyczących zabudowy płyty grzejnej, jak również wysokości zabudo-wy płyty grzejnej.Listw...
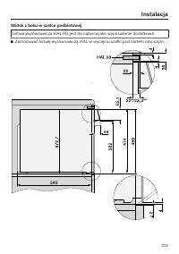
Strona 103 - Widok z boku w szafce podblatowej
Instalacja *INSTALLATION* 103 Widok z boku w szafce podblatowej Listwa wyrównawcza HAL 90 jest do nabycia jako wyposażenie dodatkowe. Zamocować listwę wyrównawczą HAL w wycięciu szafki pod blatem roboczym.
Strona 104 - Przyłącza i wentylacja; Widok z przodu
Instalacja *INSTALLATION* 104 Przyłącza i wentylacja a Widok z przodu b Przewód przyłączeniowy, długość = 2000 mm c Bez przyłączy w tym obszarze d Przekrój wentylacyjny min. 150 cm ²
Strona 105 - Zabudowa piekarnika; Usunąć boczne pałąki transportowe.
Instalacja *INSTALLATION* 105 Zabudowa piekarnika Piekarnika należy używać wyłączniew stanie zabudowanym, żeby zagwa-rantować jego bezpieczną pracę. Do bezusterkowej pracy piekarnikwymaga wystarczającego dopływupowietrza chłodzącego. Wymaganepowietrze chłodzące nie może zostaćnadmiernie ogrzane prze...
Strona 106 - Podłączenie elektryczne; Niebezpieczeństwo zranień!; do gniazda; , po stronie instalacji musi; dane przyłączeniowe
Instalacja *INSTALLATION* 106 Podłączenie elektryczne Niebezpieczeństwo zranień! Nieprawidłowo przeprowadzone pra-ce instalacyjne i konserwacyjne oraznaprawy mogą być przyczyną poważ-nych zagrożeń dla użytkownika, zaktóre Miele nie ponosi odpowiedzial-ności. Podłączenie do sieci elektrycznej mo-że...
Strona 108 - Tabele ustawień; Ciasto ucierane; CF
Tabele ustawień 108 Ciasto ucierane Ciasto/wypiek (wyposażenie) [°C] [min] CF Muffiny (1 blacha) 150–160 – 2 25–35 – Muffiny (2 blachy) 150–160 – 1+3 30–40 2 – Babeczki (1 blacha)* 140 – 1 30–40 – 160 1 – 2 20–30 – Babeczki (2 blachy)* 150 – 1+3 30–40 – Ciasto piaskowe (forma pro...
Strona 109 - Ciasto zagniatane
Tabele ustawień 109 Ciasto zagniatane Ciasto/wypiek (wyposażenie) [°C] [min] CF Placuszki (1 blacha) 140–150 – 1 20–30 – 150–160 – 2 25–35 – Placuszki (2 blachy) 140–150 – 1+3 25–35 2 – Ciasteczka wyciskane (1 blacha)* 140 – 1 35–45 – 160 1 – 2 20–30 – Ciasteczka wyciskane (2 bla...
Strona 110 - Ciasto drożdżowe
Tabele ustawień 110 Ciasto drożdżowe Ciasto/wypiek (wyposażenie) [°C] [min] CF Guglhupf (forma do babki, 24 cm) 160–170 1 45–55 – 160–170 1 50–60 – Strucla bożonarodzeniowa 150–160 – 1 50–60 – 160–170 1 45–55 – Ciasto z kruszonką z/bez owoców(blacha) 160–170 – 1 50–60 ...
Strona 111 - Ciasto serowo-olejowe; Ciasto biszkoptowe
Tabele ustawień 111 Ciasto serowo-olejowe Ciasto/wypiek [°C] [min] CF Placek owocowy (blacha) 160–170 – 2 40–50 – 170–180 – 2 40–50 – Kieszonki jabłkowe/ślimaki rodzynko-we (1 blacha) 160–170 2 25–35 Kieszonki jabłkowe/ślimaki rodzynko-we (2 blachy) 150–160 1+3 25–35 1 P...
Strona 112 - Ciasto ptysiowe, ciasto francuskie, wypieki z białka
Tabele ustawień 112 Ciasto ptysiowe, ciasto francuskie, wypieki z białka Ciasto/wypiek [°C] [min] CF Ptysie (1 blacha) 170–180 – 1 30–40 – 160–170 – 1 40–50 1 2 Kieszonki z ciasta francuskiego (1 bla-cha) 170–180 – 2 20–30 – Kieszonki z ciasta francuskiego(2 blachy) 170–180 – 1+3...
Strona 113 - Pikantne przekąski; Potrawa
Tabele ustawień 113 Pikantne przekąski Potrawa (wyposażenie) [°C] [min] CF Kruche ciasto pikantne (blacha) 220–230 3 1 30–40 180–190 – 1 40–50 Ciasto cebulowe (blacha) 180–190 3 2 25–35 – 170–180 – 2 30–40 Pizza, ciasto drożdżowe (blacha) 170–180 2 30–40 210–220 3...
Strona 114 - Wołowina; Burgery, kotlety mielone
Tabele ustawień 114 Wołowina Potrawa (wyposażenie) [°C] [min] [°C] Duszona pieczeń wołowa, ok. 1 kg(brytfanna z pokrywą) 2 150–160 3 1 120–130 5 – 2 170–180 3 1 120–130 5 – 2 170–180 – 1 160–180 6 – Polędwica wołowa, ok. 1 kg(blacha uniwersalna) 2 180–190 3 1 25–60 45–75 Po...
Strona 115 - Cielęcina
Tabele ustawień 115 Cielęcina Potrawa (wyposażenie) [°C] [min] [°C] Duszona pieczeń cielęca, ok. 1,5 kg(brytfanna z pokrywą) 2 160–170 3 1 120–130 4 – 2 170–180 3 1 120–130 4 – Polędwica cielęca, ok. 1 kg(blacha uniwersalna) 2 160–170 3 1 30–60 45–75 Polędwica cielęca „rare“,...
Strona 116 - Wieprzowina; Kiełbasa pieczona
Tabele ustawień 116 Wieprzowina Potrawa (wyposażenie) [°C] [min] [°C] Pieczeń wieprzowa/karkówka,ok. 1 kg (brytfanna z pokrywą) 160–170 1 130–140 5 80–90 180–190 1 140–150 5 80–90 Pieczeń wieprzowa z tłuszczykiem,ok. 2 kg (brytfanna) 180–190 1 140–150 6,7,8 80–90 190–200 ...
Strona 117 - Jagnięcina, dziczyzna
Tabele ustawień 117 Jagnięcina, dziczyzna Potrawa (wyposażenie) [°C] [min] [°C] Udziec jagnięcy z kością, ok. 1,5 kg(brytfanna z pokrywą) 170–180 – 1 100–120 3 64–82 Karkówka jagnięca bez kości(blacha uniwersalna) 1 180–190 2 1 10–20 53–80 Karkówka jagnięca bez kości(ruszt i blacha...
Strona 119 - Informacje dla instytutów testowych; Potrawy testowe
Informacje dla instytutów testowych 119 Potrawy testowe wg EN 60350-1 Potrawy testowe (wyposażenie) [°C] [min] CF Babeczki (1 blacha uniwersalna 1 ) 140 – 1 30–40 – 160 4 – 2 20–30 – Babeczki (2 blachy uniwersalne 1 ) 150 – 1+3 30–40 – Ciasteczka wyciskane (1 blacha uni-wersalna 1 ) ...
Strona 120 - Klasa efektywności energetycznej; - Pomiar odbywa się w programie; Karta produktu do piekarników dla gospodarstw domowych
Informacje dla instytutów testowych 120 Klasa efektywności energetycznej Ustalenie klasy efektywności energetycznej odbywa się wg EN 60350-1. Klasa efektywności energetycznej: APrzy przeprowadzaniu pomiaru należy przestrzegać następujących wskazówek: - Pomiar odbywa się w programie Termonawiew Eco ...
Strona 121 - Dane techniczne; Deklaracja zgodności; nazwy produktu lub numeru fabrycznego; Prawa autorskie i licencje dla modułu komunikacyjnego
Dane techniczne 121 Deklaracja zgodności Niniejszym Miele oświadcza, że ten piekarnik spełnia wymagania Dyrektywy2014/53/WE. Pełny tekst deklaracji zgodności WE jest dostępny pod jednym z poniższych adre-sów internetowych: - Produkty, Pobieranie, na stronie www.miele.pl- Serwis, Materiały informacyj...
Strona 122 - Prawa autorskie i licencje
Dane techniczne 122 Prawa autorskie i licencje Do obsługi i sterowania urządzeniem Miele używa oprogramowania własnego luboprogramowania innych producentów, które nie jest objęte tzw. licencją open sour-ce. Oprogramowanie i jego elementy są chronione prawem autorskim. W związku ztym należy respektow...