Zanussi F1245 W- Instrukcja obsługi

Zanussi F1245 W

Zanussi F1245 W– Instrukcja obsługi, czytaj za darmo online w formacie PDF. Mamy nadzieję, że to pomoże rozwiązać wszelkie problemy, które mogą się pojawić. Jeśli masz dodatkowe pytania, skontaktuj się z nami za pomocą formularza kontaktowego.

1 Strona 1
2 Strona 2
3 Strona 3
4 Strona 4
5 Strona 5
6 Strona 6
7 Strona 7
8 Strona 8
9 Strona 9
10 Strona 10
11 Strona 11
12 Strona 12
Strona: / 12

Spis treści:

  • Strona 2 – Polski, Instrukcja monta; Informacje ogólne; Zawarto
  • Strona 3 – Przył; Pompa obiegowa i zawór mieszaj; Czujnik temperatury
  • Strona 4 – Schemat ogólny
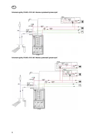
  • Strona 8 – czenia elektryczne; czanie zasilania
  • Strona 10 – Programowanie ECS 40
Ładowanie instrukcji

PL

IHB 0935-1

031431

PL




ECS 40







Instrukcja monta

Ŝ

u Grupy mieszania do

NIBE F1145, F1245

"Ładowanie instrukcji" oznacza, że należy poczekać, aż plik się załaduje i będzie można go czytać online. Niektóre instrukcje są bardzo obszerne, a czas ich ładowania zależy od prędkości Twojego internetu.

Podsumowanie

Strona 2 - Polski, Instrukcja monta; Informacje ogólne; Zawarto

PL 2 Polski, Instrukcja monta Ŝ u – ECS 40 Informacje ogólne To wyposa Ŝ enie dodatkowe jest u Ŝ ywane podczas montowania F1145/F1245 w domach, w których mo Ŝ e by ć do 4 ró Ŝ nych systemów grzewczych wymagaj ą cych ró Ŝ nych temperatur w ruroci ą gach zasilaj ą cych, na przykład w przypadkach kiedy...

Strona 3 - Przył; Pompa obiegowa i zawór mieszaj; Czujnik temperatury

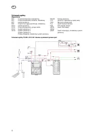
PL 3 Przył ą cza rurowe Pompa obiegowa i zawór mieszaj ą cy Dodatkowa pompa obiegowa (GP20) umieszczona jest w dodatkowym systemie grzewczym zgodnie ze schematem ogólnym. Zawór mieszaj ą cy (QN25) umieszczony jest na ruroci ą gu zasilaj ą cym za pomp ą ciepła, przed pierwszym grzejnikiem w systemie ...

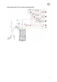
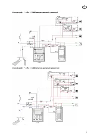
Strona 4 - Schemat ogólny

PL 4 Schemat ogólny Wyja ś nienia BT1 BT2 BT3 BT6 EP21 EP22 EP23 GP20 Czujnik temperatury zewn ę trznej Czujnik temperatury zasilania, dodatkowy system grzewczy Czujnik ruroci ą gu powrotnego, dodatkowy system grzewczy Czujnik temperatury, gor ą ca woda System grzewczy 2 System grzewczy 3 System grz...

Inne modele Zanussi

Wszystkie inne Zanussi