Strona 5 - Kontrola przed dostawą i numery
SPIS TREŚCI Wstęp..........................................................................135Bezpieczeństwo.......................................................... 143Montaż........................................................................ 149Przeznaczenie......................................
Strona 10 - Wyświetlacz
Wyświetlacz Informacje dotyczące stanu produktu wyświetlają się na wyświetlaczu tablicy rozdzielczej. 2 3 4 5 6 1 9 10 11 16 12 13 15 17 20 19 18 7 21 14 8 1. Wskaźnik nachylenia (nie dotyczy tego produktu)2. Wskaźnik temperatury płynu chłodzącego silnik Uwaga: Po zapaleniu się wskaźnika temperatury...
Strona 12 - Tabliczka znamionowa
określony w Dane techniczne na stronie 194 oraz na etykiecie. Należy zawsze stosować atestowane ochronniki słuchu. Aktywować produkt. Zatrzymać silnik. Obroty silnika – wysoka prędkość. Prędkość obrotowa silnika – niska. Paliwo. Noże są załączone. Noże są wyłączone. Poziom oleju. Kod do przeskanowan...
Strona 13 - Bezpieczeństwo; Definicje dotyczące bezpieczeństwa
12. Maksymalne obciążenie osi tylnej (GAWR)13. Maksymalna masa z obciążeniem (GCWR) Emisje Euro V OSTRZEŻENIE: Ingerencja w silnik powoduje unieważnienie europejskiego zatwierdzenia typu produktu. Uszkodzenie produktu Nie odpowiadamy za uszkodzenia naszego produktu, w przypadku gdy: • produkt jest n...
Strona 14 - Zasady bezpieczeństwa dotyczące dzieci; Instrukcje bezpieczeństwa dotyczące
• Nie wolno pozostawiać urządzenia z włączonym silnikiem bez nadzoru. Zawsze wyłączać noże, zaciągać hamulec postojowy, wyłączać silnik i wyjmować kluczyk przed pozostawieniem maszyny bez nadzoru. • Używać produktu tylko przy świetle dziennym lub przy dobrym oświetleniu. Omijać na bezpieczną odległo...
Strona 16 - Koszenie trawy na pochyłościach
Kontrola kluczyka zapłonu• Uruchomić i zatrzymać silnik, aby przeprowadzić kontrolę kluczyka zapłonu. Patrz Uruchamianie silnika na stronie 157 oraz Wyłączanie silnika na stronie 160. • Silnik musi uruchomić się po obróceniu kluczyka zapłonu do położenia start. • Silnik musi wyłączyć się natychmiast...
Strona 18 - Bezpieczeństwo transportu
OSTRZEŻENIE: Przed rozpoczęciem użytkowania produktu przeczytać następujące ostrzeżenia. • W przypadku przebywania w pobliżu akumulatorów używać rękawic ochronnych. • W pobliżu akumulatora nie wolno nosić zegarków, biżuterii ani innych metalowych przedmiotów. • Trzymać akumulator poza zasięgiem dzie...
Strona 19 - Montaż; Montaż zespołu tnącego Combi 132,
Montaż Montaż zespołu tnącego Combi 132, Combi 155Uwaga: Przed zamocowaniem zespołu tnącego należy upewnić się, że jest on ustawiony na poziomym podłożu. 1. Ustawić dźwignię podnośnika w położeniu (B), aby opuścić ramiona podnośnika. B A OSTRZEŻENIE: Nie przestawiać dźwigni podnośnika do położenia k...
Strona 21 - Demontaż i montaż kabiny
9. Ustawić dźwignię podnośnika w położeniu (C), aby opuścić ramiona podnośnika. C D OSTRZEŻENIE: Nie przestawiać dźwigni podnośnika do położenia koszenia (D). Siła układu hydraulicznego może spowodować poważne obrażenia. 10. Zatrzymać silnik.11. Wykręcić 2 śruby i zdjąć klapę serwisową. 12. Zdjąć gu...
Strona 23 - Składanie i rozkładanie konstrukcji
20. Przymocować zawiesia do uszu do podnoszenia kabiny. 21. Ostrożnie podnieść kabinę owiniętą zawiesiami za pomocą podnośnika. 22. Podnieść kabinę o 10 cm powyżej urządzenia. UWAGA: Upewnić się, że kabina jest uniesiona nad śruby. 23. Ostrożnie przesunąć kabinę do przodu.24. Ustawić kabinę na wspor...
Strona 24 - Przeznaczenie; Wstęp
• Gdy konstrukcja ROPS jest rozłożona, należy zawsze używać pasa bezpieczeństwa. • Upewnić się, że konstrukcja ROPS jest prawidłowo rozłożona i nie jest uszkodzona. Przeznaczenie Wstęp OSTRZEŻENIE: Przed użyciem urządzenia należy przeczytać ze zrozumieniem rozdział poświęcony bezpieczeństwu. Uzupełn...
Strona 27 - Uruchamianie silnika; Obsługa produktu
2. Pociągnąć przycisk WOM w celu załączenia napędu ostrzy zespołu tnącego. Uruchamianie silnika 1. Nacisnąć i obrócić główny wyłącznik do położenia ON. 2. Zaciągnąć hamulec postojowy.3. Nacisnąć przycisk WOM w celu rozłączenia napędu zespołu tnącego. 4. Przesunąć dźwignię gazu do położenia środkoweg...
Strona 28 - Ustawianie położenia pedału jazdy do przodu; Regulacja nacisku ramion podnośnika
3. Delikatnie nacisnąć jeden z pedałów. Prędkość wzrasta wraz z naciskiem wywieranym na pedał. Użyć pedału (A) do jazdy do przodu, a pedału (B) do jazdy do tyłu. B A 4. Zwolnić pedał, aby zahamować. Aby zahamować mocniej, wcisnąć drugi pedał przyspieszenia. 5. Pociągnąć przycisk WOM, aby włączyć nap...
Strona 29 - Regulacja wysokości koszenia (Combi
5. Wymontować pokrętło regulacji wysokości cięcia z boku zespołu tnącego. 6. Ustawić pokrętło regulacji wysokości cięcia w 1 z otworów płytki regulacyjnej. Uwaga: Wysokość cięcia jest przedstawiona numerami 1–7. Należy zapoznać się z poniższą tabelą. Numer Wysokość koszenia, mm/cale 1 30/1,2 2 40/1,...
Strona 30 - Obsługa układu ogrzewania kabiny; Wyłączanie silnika
Numer Wysokość koszenia, mm/cale 6 93/3,7 7 112/4,4 4. Regulacja równoległości zespołu tnącego. Patrz Regulacja równoległości zespołu tnącego na stronie 169. Obsługa układu ogrzewania kabiny 1. Włączyć (A) i wyłączyć (B) układ ogrzewania kabiny za pomocą zaworu na przewodzie elastycznym z prawej str...
Strona 31 - Przekładnia tylna
Zaciąganie i zwalnianie hamulca postojowego 1. Aby włączyć hamulec postojowy, przesunąć dźwignię hamulca postojowego całkowicie do przodu. 2. Aby wyłączyć hamulec postojowy, przesunąć dźwignię hamulca postojowego całkowicie do tyłu. Włączanie lub wyłączanie gniazda zasilania 12 V • Nacisnąć włącznik...
Strona 32 - Przekładnia przednia; Przegląd
Przekładnia przednia • Aby otworzyć zawór obejściowy, obrócić nakrętkę zabezpieczającą (A) o ¼–½ obrotu w lewo, a następnie śrubę zaworu (B) o 2 obroty w lewo. A B • Aby zamknąć zawór obejściowy, zamknąć śrubę zaworu (B) i dokręcić momentem 8 Nm, a następnie dokręcić nakrętkę blokującą (A) momentem ...
Strona 34 - Czyszczenie maszyny od zewnątrz; Czyszczenie silnika i tłumika
Przegląd Co- dzien- nie Co ty- dzień Pierw- sze 50 godz. Czas między przeglą- dami (w godzinach) 100 200 400 800 Sprawdzić pasek klinowy w zespole tnącym. X X Wymienić pasek klinowy w zespole tnącym. X Sprawdzić poziom oleju w przekładni zębatej stożkowej. X Wymienić olej w przekładni zębatej stożko...
Strona 35 - Demontaż osłon; Demontaż i montaż przedniej pokrywy
Demontaż osłon Demontaż i montaż przedniej pokrywy kolumny kierownicy 1. Wykręcić 2 śruby i przechylić przednią pokrywę kolumny kierownicy do przodu. 2. Odłączyć przewody. 3. Przytrzymać przednią pokrywę kolumny kierownicy w pozycji pionowej i wymontować. 4. Zamontować w odwrotnej kolejności. Otwier...
Strona 36 - Wymiana reflektorów; Wymiana lampy świateł mijania i świateł
Demontaż pokrywy z prawej strony 1. Wykręcić 5 śrub i zdjąć pokrywę boczną. Demontaż klapy serwisowej 1. Obrócić 2 śruby o ¼ obrotu i zdjąć klapę serwisową. Demontaż płyty pokrywy 1. Wykręcić 2 śruby i zdjąć płytę pokrywy. Demontaż pokrywy przekładni 1. Odkręcić 4 śruby. 2. Unieść i zdjąć pokrywę pr...
Strona 38 - Wymiana świateł ostrzegawczych (P 525DX; Sprawdzanie hamulca postojowego
Wymiana świateł tylnych (P 525DX Cabin) 1. W celu wymiany świateł tylnych należy skontaktować się z autoryzowanym warsztatem obsługi technicznej. Wymiana świateł ostrzegawczych (P 525DX Cabin) 1. Poluzować nakrętkę motylkową. 2. Wymontować światło.3. Podłączyć nową lampę. Sprawdzanie hamulca postojo...
Strona 40 - Wymiana papierowego filtra w filtrze głównym
Przegląd układu paliwowego 1 3 4 2 5 6 1. Zbiornik oleju napędowego2. Elektryczny wskaźnik poziomu paliwa3. Filtr wstępny4. Filtr paliwa5. Elastyczny przewód powrotny paliwa6. Przewód paliwowy Wymiana filtrów paliwa Wymiana papierowego filtra w filtrze głównym 1. Podnieś pokrywę silnika. Patrz Otwie...
Strona 41 - Czyszczenie i wymiana filtra powietrza
2. Wyciągnąć filtr paliwa z zacisku.3. Poluzować śruby opasek zaciskowych przewodów.4. Odsunąć opaski zaciskowe przewodów filtra wstępnego paliwa za pomocą szczypiec z płaskimi końcówkami. 5. Wyciągnąć filtr wstępny paliwa z końcówek przewodów elastycznych. Istnieje ryzyko niewielkiego wycieku paliw...
Strona 42 - Przegląd układu elektrycznego
Czyszczenie i wymiana filtra wejściowego układu ogrzewania kabiny 1. Poluzować 2 pokrętła pokrywy układu wentylatora i zdjąć pokrywę. 2. Wyciągnąć uchwyt filtra.3. Wyjąć filtr wejściowy.4. Ostrożnie oczyścić filtr wejściowy za pomocą szczotki. 5. Jeśli nie uda się oczyścić filtra wejściowego, należy...
Strona 43 - Bezpieczniki; Wymiana bezpiecznika
Bezpieczniki 1 3 5 7 8 2 4 6 9 10 11 12 13 14 21 20 15 16 17 18 19 1. Zasilanie 12 V modułu sterującego kosiarki, 20 A2. Zasilanie wyświetlacza silnika wysokoprężnego, 5 A3. Zasilanie zapłonu, 5 A4. J14 + 12 V, obrotowe światło sygnalizacyjne, 10 A5. J16 + 12 V, dodatkowy przełącznik, dodatkowe wyjś...
Strona 44 - Ładowanie akumulatora
a) Wymontować prawą pokrywę, aby wymienić bezpieczniki 1–9. Patrz Demontaż pokrywy z prawej strony na stronie 166. b) Wymontować pokrywę w dachu kabiny, aby wymienić bezpieczniki 10–14. c) Otworzyć pokrywę silnika, aby wymienić bezpieczniki 15–19. Patrz Otwieranie pokrywy silnika na stronie 165. Bez...
Strona 45 - Awaryjne uruchamianie silnika; Podłączanie kabli rozruchowych; Ciśnienie w oponie
Awaryjne uruchamianie silnika Jeśli akumulator jest zbyt słaby, aby uruchomić silnik, można skorzystać z kabli wspomagających w celu uruchomienia w trybie awaryjnym. Produkt ma instalację 12 V z ujemną masą. Produkt używany do rozruchu awaryjnego musi również mieć instalację 12 V z ujemną masą. Podł...
Strona 46 - Wymiana paska w zespole tnącym
może spowodować poważne obrażenia ciała lub śmierć. 3. Zamontować podporę serwisową do czerwonego punktu mocowania poniżej dolnej płyty. 4. Pociągnąć sworzeń na drugim końcu podpory. Przymocować podporę serwisową do czerwonego oznaczenia na sztywnym przewodzie w zespole tnącym. 5. Uruchomić silnik.6...
Strona 50 - Przegląd układu hydraulicznego
Przegląd układu hydraulicznego 1c 2a 3a 2b 2c 3b 2d 3d 3c 1a 1b 2b 3c 3a 3c 2c 3b 2d 1a 2b 2c 2a 3f 5b 5a 3f 4b 4a 2d 3e 3e 3d 3b 7 1b 2a 3a 6a 3d 6b 3e 3f 7 4b 4a 5a 5b 6b 6a 1a: Zbiornik hydrauliczny – pompa1b: Zbiornik hydrauliczny – filtr1c: Zbiornik hydrauliczny – chłodnica oleju hydraulicznego...
Strona 53 - Skrócona instrukcja konserwacji — zespoły tnące Combi; Symbole użyte w skróconej instrukcji
Skrócona instrukcja konserwacji — zespoły tnące Combi Symbole użyte w skróconej instrukcji konserwacji Wymiana filtra Wymiana oleju Kontrola wzrokowa lub kontrola poziomu oleju Wtłoczenie smaru do smarowniczki Smarowanie olejem Kontrola stanu i naprężenia paska napędowego Wymiana paska napędowego Wy...
Strona 55 - Rozwiązywanie problemów
Smarowanie przegubu przegubowego układu sterowania 1. Nasmarować łożysko przegubowego układu sterowania, gdy wszystkie koła urządzenia spoczywają na podłożu. Smarować przez smarowniczkę (A), aż smar będzie wydostawał się z otworu (B). A B 2. Podnieść urządzenie, aby uwolnić ciśnienie w przegubowym u...
Strona 58 - Wyświetlacz — rozwiązywanie problemów
Problem Przyczyna Rezultat koszenia jest niezadowala- jący Noże są tępe. Patrz Sprawdzanie noży na stronie 177. Trawa jest długa lub mokra. Patrz Uzyskiwanie dobrych rezultatów koszenia na stronie 161. Zespół tnący jest przekrzywiony. Zator z trawy w zespole tnącym. Patrz Ustawianie zespołu kosząceg...
Strona 60 - Transport, przechowywanie i utylizacja; Transportowanie; Bezpieczne mocowanie produktu na
Transport, przechowywanie i utylizacja Transportowanie • Produkt jest ciężki. Należy uważać na zagrożenie zmiażdżeniem. Podczas załadunku lub rozładunku produktu z pojazdu albo przyczepy należy zachować szczególną ostrożność. • Nie podnosić produktu. Oczka transportowe nie są zatwierdzonymi punktami...
Strona 61 - Holowanie produktu; Przechowywanie
10. Przymocować trzecią taśmę do 1 z oczek transportowych. 11. Przymocować czwartą taśmę do drugiego oczka transportowego. 12. Przymocować taśmę do przestrzeni ładunkowej.13. Dociągnąć taśmę do przodu w celu przymocowania produktu do przestrzeni ładunkowej. 14. Umieścić kliny kół z przodu i z tyłu t...
Strona 62 - Utylizacja
• Sprawdzić maszynę pod kątem zużytych lub uszkodzonych części i dokręcić luźne śruby i nakrętki. • Przechowywać produkt w czystym, suchym miejscu i przykryć go dla dodatkowej ochrony. • Należy przechowywać produkt w zamkniętym pomieszczeniu z dala od dzieci i innych nieupoważnionych osób. • Podczas...
Strona 63 - Dane techniczne
Dane techniczne Dane techniczne P 520DX P 525DX / P 525DX Cabin Wymiary Patrz Wymiary produktu (P 520DX/P 525DX) na stronie 198 i Wymiary produktu (P 525DX Cabin) na stronie 199. Masa bez zespołu tnącego, przy pustych zbiornikach, kg 649 677 921 (kabina P 525DX) Wymiary opon 20 × 8 - 10 20 × 10 - 10...
Strona 66 - Dane częstotliwości radiowej
Poziomy drgań 17 P 520DX P 525DX P 525DX Cabin Combi 155 1,3 1,7 1,3 Combi 132 X 1,4 1,5 1,4 Combi 155 X 1,3 1,7 1,3 Poziom wibracji na fotelu, m/s 2 Combi 132 0,3 0,4 0,3 Combi 155 0,3 0,4 0,3 Combi 132 X 0,3 0,4 0,3 Combi 155 X 0,3 0,4 0,3 Zespół tnący Combi 132 Combi 155 Combi 132 X Combi 155 X S...
Strona 69 - Wymiary wspornika kabiny
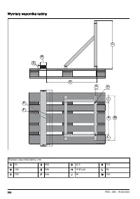
Wymiary wspornika kabiny A B D C M K J L E F H G A Wymiary wspornika kabiny, mm A 50 D 800 G 22,5 K 515 B 100 E 880 H 15 Ø (x4) L 89 C 755 F 844 J 96 M 700 200 1593 - 008 - 19.02.2024
Strona 70 - Gwarancja przekładni
Akcesoria Ta publikacja nie zawiera instrukcji konserwacji wyposażenia opcjonalnego ani akcesoriów. Takie instrukcje można znaleźć w instrukcji obsługi danego wyposażenia/akcesorium. Serwis Wykonywać coroczny przegląd w autoryzowanym centrum serwisowym, aby upewnić się, że produkt pracuje bezpieczni...
Strona 71 - Deklaracja zgodności; Deklaracja zgodności UE
Deklaracja zgodności Deklaracja zgodności UE Firma Husqvarna AB, SE-561 82 Huskvarna, Szwecja, tel.: +46-36-146500, deklarujemy z pełną odpowiedzialnością, że produkt: Opis Kosiarka samobieżna Marka Husqvarna Typ/model P 520DX, P 525DX, P 525DX Cabin Identyfikacja Numery seryjne z roku 2022 i nowsze...
Strona 72 - Zarejestrowane znaki handlowe
Zarejestrowane znaki handlowe Nazwa handlowa Bluetooth ® i logo są zastrzeżonymi znakami towarowymi stanowiącymi własność Bluetooth SIG, inc. Każde wykorzystanie takich znaków przez Husqvarna odbywa się w ramach umowy licencyjnej. 1593 - 008 - 19.02.2024 203